Retour
Disponibilité Immédiate
À Acheter Locaux Commerciaux 1 200 m² LIBERCOURT (62820)
Ajouter au comparateur
Vous souhaitez faciliter votre recherche ?
Créez un compte
Présentation du bien
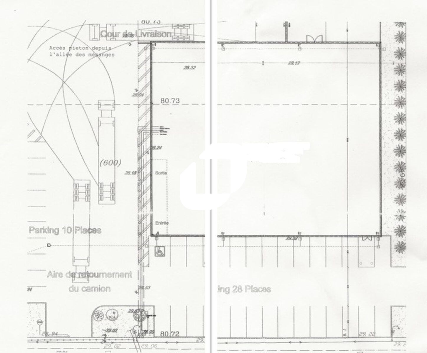
Immprove vous propose à la vente, à Libercourt, ce magnifique local commercial indépendant d'une surface de 1.200 m². Idéalement situé sur l'axe Douai/Lens/Lille et à quelques centaines de mètres de l'autoroute A1, ce site dispose d'un emplacement stratégique pour votre future implantation. Les locaux se composent : d'un espace de vente de 750 m² disposant d'une grande vitrine de 11,5m, d'une réserve de 300 m² disposant de chambres froides positives et négatives, d'un espace bureaux/locaux sociaux(2 bureaux, sanitaires et vestiaires séparés H/F, salle d'archive et salle de pause). Grand parking avec 40 places. Disponibilité immédiate.
Surface totale
Nature
Divisibilité
Etat des locaux
1 200 m²
Locaux Commerciaux
Non
Bon état
Prix & Conditions
Vente :
1 100 000.00 € (HD)
916.67 € /m² (HD)
Impôt foncier :
11.67
Conditions vente :
Loi Carrez et affectation juridique en cours de détermination
Prestations & équipements du bien
Le bâtiment
Bâtiment indépendant
Façade en bardage
Les espaces de travail
Fibre optique . 1 Quai
Espace ouvert
Bureaux cloisonnés
Espace détente
Local technique
Sanitaires privatifs
Plinthes périphériques
Eclairage Led
Câblage informatique et téléphonique
Prises RJ45
Le confort au quotidien
Courant triphasé
Belle hauteur sous plafond
Les accès
Accès véhicules légers
Accès poids lourds
Accès PMR
Accès privatif sur rue
Aire de chargement
Portail d'accès motorisé
Dimensions porte : 2.5 (H) x 2 (L) mètres
Sécurité du site
Site clos
Prestations spécifiques
Tarif jaune
Hauteur libre : 5 mètres
Chauffage aérothermes gaz + électrique
Autres
Volet métallique
Porte battante plain-pied
Locaux sociaux
Locaux E.R.P.
Vitrine
Faux-plafonds
Baie de brassage
Loi Carrez et affectation juridique en cours de détermination
Répartition & surfaces des espaces
Tableau des divisibilités
| Type | Étage | Surface | Prix achat (€/m² HT HC) |
Charges (achat) (€/m² HT HC) |
|---|---|---|---|---|
| Locaux Commerciaux | 1 200 m² | 916.67 | Prix sur demande |
Performance énergétique du bien (DPE)


Informations non contractuelles
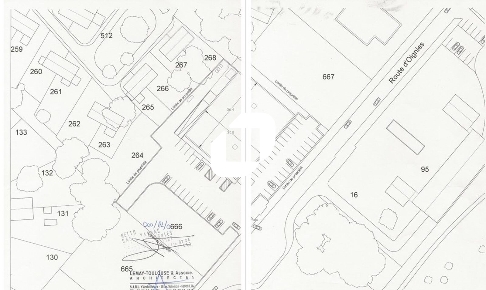
Localisation & accès
Transports en commun à proximité
Gare de Libercourt à 500 mètres
150
Accès routier
A1 à 2.5 km
Adresses
approximatives
Adresses
précises
Nos nouveaux biens qui pourraient vous intéresser
Locaux Commerciaux - 1 000m²
NOISY LE SEC (93130)
NOISY LE SEC (93130)
2 550 000.00€ HT HC
Disponibilité : Immédiate
Surface : 1 000 m²
Locaux Commerciaux - 922.82m² Divisibles à partir de 231.85 m²
MONTOIR DE BRETAGNE (44550)
MONTOIR DE BRETAGNE (44550)
1 102 349.12€ HT HC
Disponibilité : Juin 2028
Surface : divisibles à partir de 231.85 m²
Locaux Commerciaux - 424m² Divisibles à partir de 71 m²
AGDE (34300)
AGDE (34300)
759 999.51€ HT HC
Disponibilité : Immédiate
Surface : divisibles à partir de 71 m²
Locaux Commerciaux - 430m²
NANTES (44300)
NANTES (44300)
800 002.10€ HT HC
Disponibilité : Octobre
Surface : 430 m²
Les entrepreneurs ayant consulté cette offre ont aussi consulté celles ci
Locaux Commerciaux - 1 000m²
NOISY LE SEC (93130)
NOISY LE SEC (93130)
2 550 000.00€ HT HC
Disponibilité : Immédiate
Surface : 1 000 m²
Locaux Commerciaux - 922.82m² Divisibles à partir de 231.85 m²
MONTOIR DE BRETAGNE (44550)
MONTOIR DE BRETAGNE (44550)
1 102 349.12€ HT HC
Disponibilité : Juin 2028
Surface : divisibles à partir de 231.85 m²
Bureaux et Locaux Commerciaux - 328m²
LEVALLOIS PERRET (92300)
LEVALLOIS PERRET (92300)
2 144 998.64€ HT HC
Disponibilité : 1er juillet 2026
Surface : 328 m²