Retour
Disponibilité Immédiate
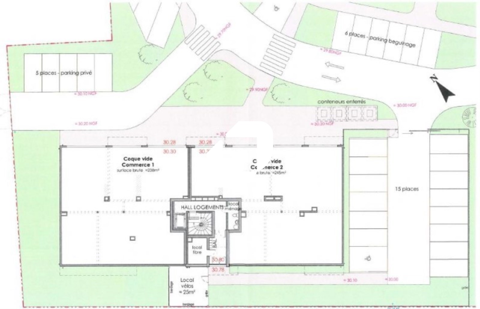
À Acheter Locaux Commerciaux 483 m² divisibles à partir de 238 m² 63 RUE PASTEUR VENDIN LE VIEIL (62880)
Ajouter au comparateur
Vous souhaitez faciliter votre recherche ?
Créez un compte
Présentation du bien
Immprove vous propose à la vente, des cellules commerciales neuves sur la commune dynamique de Vendin-le-Vieil. Ces surfaces sont situées sur l’axe principal permettant une belle visibilité, à proximité du centre ville et des grands axes routiers et autoroutiers vous permettant de rejoindre facilement la commune de Lens en 10 min, la ville de d’Arras en 25 min et la métropole Lilloise ainsi que Douai en seulement 30 minutes. Belle opportunité pour votre future implantation. Disponibilité immédiate.
Surface totale
Nature
Divisibilité
Etat des locaux
483 m²
Locaux Commerciaux
Oui à partir de 238 m²
Brut de béton
Prix & Conditions
Vente :
900.00 € (HD)
900.00 € /m² (HD)
Divisibles à partir de 238 m²
Conditions vente :
Loi Carrez et affectation juridique en cours de détermination
Prestations & équipements du bien
Le bâtiment
Parties communes de qualité
Les espaces de travail
Fibre optique
Accueil
Espace ouvert
Le confort au quotidien
Cour . Locaux livrés bruts de béton
Les accès
Accès véhicules légers
Accès PMR
Accès privatif sur rue
Autres
Aire de manoeuvre
Fluides en attente
Possibilité de locaux E.R.P.
Loi Carrez et affectation juridique en cours de détermination
Répartition & surfaces des espaces
Tableau des divisibilités
| Type | Étage | Surface | Prix achat (€/m² HT HC) |
Charges (achat) (€/m² HT HC) |
|---|---|---|---|---|
| Locaux Commerciaux | Rez-de-Chaussée | 238 m² | 900.00 | Prix sur demande |
| Locaux Commerciaux | Rez-de-Chaussée | 245 m² | 900.00 | Prix sur demande |
Performance énergétique du bien (DPE)


Informations non contractuelles
Localisation & accès
Transports en commun à proximité
à proximité
Accès routier
Accès autoroutiers à proximité
Adresses
approximatives
Adresses
précises
Nos nouveaux biens qui pourraient vous intéresser
Locaux Commerciaux - 1 000m²
NOISY LE SEC (93130)
NOISY LE SEC (93130)
2 550 000.00€ HT HC
Disponibilité : Immédiate
Surface : 1 000 m²
Locaux Commerciaux - 922.82m² Divisibles à partir de 231.85 m²
MONTOIR DE BRETAGNE (44550)
MONTOIR DE BRETAGNE (44550)
1 102 349.12€ HT HC
Disponibilité : Juin 2028
Surface : divisibles à partir de 231.85 m²
Locaux Commerciaux - 424m² Divisibles à partir de 71 m²
AGDE (34300)
AGDE (34300)
759 999.51€ HT HC
Disponibilité : Immédiate
Surface : divisibles à partir de 71 m²
Locaux Commerciaux - 430m²
NANTES (44300)
NANTES (44300)
800 002.10€ HT HC
Disponibilité : Octobre
Surface : 430 m²
Les entrepreneurs ayant consulté cette offre ont aussi consulté celles ci
Locaux Commerciaux - 1 000m²
NOISY LE SEC (93130)
NOISY LE SEC (93130)
2 550 000.00€ HT HC
Disponibilité : Immédiate
Surface : 1 000 m²
Locaux Commerciaux - 922.82m² Divisibles à partir de 231.85 m²
MONTOIR DE BRETAGNE (44550)
MONTOIR DE BRETAGNE (44550)
1 102 349.12€ HT HC
Disponibilité : Juin 2028
Surface : divisibles à partir de 231.85 m²
Bureaux et Locaux Commerciaux - 328m²
LEVALLOIS PERRET (92300)
LEVALLOIS PERRET (92300)
2 144 998.64€ HT HC
Disponibilité : 1er juillet 2026
Surface : 328 m²