Retour
Disponibilité Immédiate
À Acheter Locaux d'Activités 522.50 m² MAGNY LES HAMEAUX (78114)
Ajouter au comparateur
Vous souhaitez faciliter votre recherche ?
Créez un compte
Présentation du bien
Zone de Gomberville à Magny-les-Hameaux - IMMPROVE vous propose à l’acquisition une surface d’activités avec bureaux entièrement rénovée. A proximité des commerces, profitez d’une surface d’activités avec mezzanine, showroom et bureaux, bénéficiant d’une cuisine aménagée, d’espace lumineux et de deux places de stationnement en extérieur.
Surface totale
Nature
Divisibilité
Etat des locaux
522.50 m²
Locaux d'Activités
Non
Rénové
Prix & Conditions
Vente :
595 000.00 € (HD)
1 138.76 € /m² (HD)
Impôt foncier :
11.57
Taxe bureaux :
5.82
Prestations & équipements du bien
Le bâtiment
Immeuble ancien
Façade en bardage
Les espaces de travail
Fibre optique
Locaux rénovés
Accueil
Bureaux cloisonnés
Salle de réunion
Espace détente avec cuisine
Sanitaires privatifs
Faux plafonds avec led, sol PVC et moquette dans les bureaux
Cloisonnement amovible
Plinthes périphériques
Câblage informatique et fibre
Les accès
Accès véhicules légers
Accès privatif sur rue
Porte sectionnelle de plain-pied
Dimensions porte : 4 (H) x 3 (L) m
Prestations spécifiques
Chauffage convecteurs électrique
Chauffage par convecteur électrique
Hauteur libre : 3 sous mezzanine et 5,50 m²
Triphasé, tarif bleu 59A
Autres
Mezzanine de 96.41 m²
Locaux aménagés en :
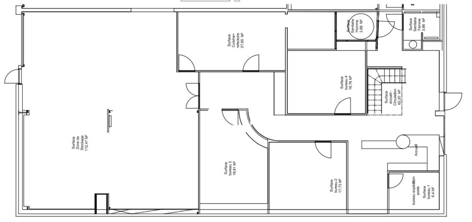
Répartition & surfaces des espaces
Tableau des divisibilités
| Type | Étage | Surface | Prix achat (€/m² HT HC) |
Charges (achat) (€/m² HT HC) |
|---|---|---|---|---|
| Activités | 523 m² | 1 138.76 | 8.25 |
Performance énergétique du bien (DPE)


Informations non contractuelles
Localisation & accès
Transports en commun à proximité
Arrêt de bus : Parc d’Activité de Gomberville
Accès routier
Autoroute A86
Nationales N184 / N10
Adresses
approximatives
Adresses
précises
Nos nouveaux biens qui pourraient vous intéresser
Locaux d'Activités - 201.60m²
REIMS (51100)
REIMS (51100)
50 904 000.00€ HT HC
Disponibilité : Immédiate
Surface : 201.60 m²
Locaux d'Activités - 743m²
CESTAS (33610)
CESTAS (33610)
870 000.99€ HT HC
Disponibilité : Immédiate
Surface : 743 m²
Locaux d'Activités - 3 659m²
AIZENAY (85190)
AIZENAY (85190)
3 191 928.65€ HT HC
Disponibilité : Immédiate
Surface : 3 659 m²
Locaux d'Activités - 4 000m²
SAINT PATHUS (77178)
SAINT PATHUS (77178)
3 375 000.00€ HT HC
Disponibilité : Immédiate
Surface : 4 000 m²
Les entrepreneurs ayant consulté cette offre ont aussi consulté celles ci
Locaux d'Activités - 201.60m²
REIMS (51100)
REIMS (51100)
50 904 000.00€ HT HC
Disponibilité : Immédiate
Surface : 201.60 m²
Locaux d'Activités - 1 794m²
SAINT PRIEST (69800)
SAINT PRIEST (69800)
Prix sur demande
Disponibilité : Octobre 2027
Surface : 1 794 m²
Locaux d'Activités - 1 980m²
FLEURIEUX SUR L'ARBRESLE (69210)
FLEURIEUX SUR L'ARBRESLE (69210)
Prix sur demande
Disponibilité : Immédiate
Surface : 1 980 m²
Locaux d'Activités - 743m²
CESTAS (33610)
CESTAS (33610)
870 000.99€ HT HC
Disponibilité : Immédiate
Surface : 743 m²