Retour
Disponibilité Immédiate
À Acheter Locaux d'Activités 2 348 m² 8 RUE DU DOCTEUR JEAN CHARCOT MORANGIS (91420)
Ajouter au comparateur
Vous souhaitez faciliter votre recherche ?
Créez un compte
Présentation du bien
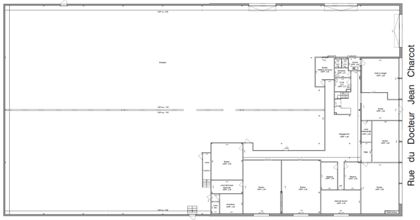
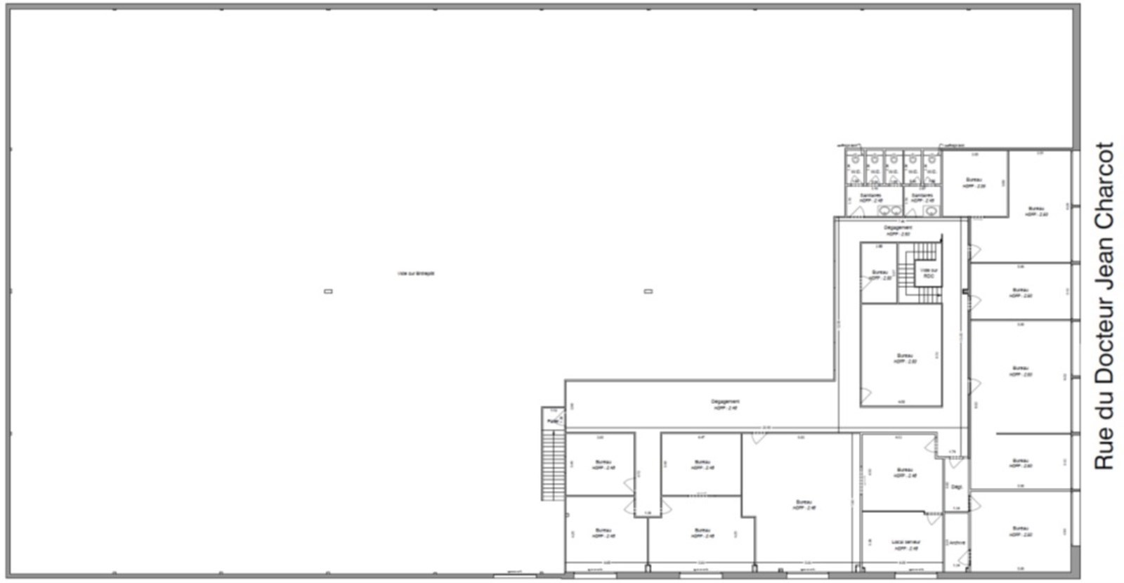
Dans la zone d’activité de Morangis, à proximité entre l’autoroute A6 et la nationale N7, IMMPROVE vous propose à la vente un bâtiment d’activité indépendant avec 2 portes à quai et une porte sectionnelle de plain pied et accessible par 3 portails. Les bureaux sont dans un bon état et l’entrepôt sera rénové pour la vente. Ce local, sera parfait pour accueillir le siège social de votre entreprise.
Surface totale
Nature
Divisibilité
2 348 m²
Locaux d'Activités
Non
Prix & Conditions
Vente :
3 169 800.00 € (HD)
1 350.00 € /m² (HD)
Impôt foncier :
31500.00
Taxe bureaux :
15928
Prestations & équipements du bien
Le bâtiment
Bâtiment indépendant
Façade en bardage
Parties communes rénovées récemment
Les espaces de travail
Fibre optique
Accueil
Espace détente
Cuisine
Faux plafonds
Bureaux cloisonnés décloisonnement
Plinthes périphériques
Câblage informatique et téléphonique
Prises RJ45
Sanitaires privatifs
Le confort au quotidien
Moquette
Chauffage par climatisation réversible
Les accès
Double accès
Sécurité du site
Site clos
Autres
possible
Répartition & surfaces des espaces
Tableau des divisibilités
| Type | Étage | Surface | Prix achat (€/m² HT HC) |
Charges (achat) (€/m² HT HC) |
|---|---|---|---|---|
| Activités | 2 348 m² | 1 350.00 | Prix sur demande |
Performance énergétique du bien (DPE)


Informations non contractuelles
Localisation & accès
Adresses
approximatives
Adresses
précises
Nos nouveaux biens qui pourraient vous intéresser
Locaux d'Activités - 2 514m²
MORANGIS (91420)
MORANGIS (91420)
0.00€ HT HC
Disponibilité : Selon les lots – nous consulter
Surface : 2 514 m²
Les entrepreneurs ayant consulté cette offre ont aussi consulté celles ci
Locaux d'Activités - 1 980m²
FLEURIEUX SUR L'ARBRESLE (69210)
FLEURIEUX SUR L'ARBRESLE (69210)
Prix sur demande
Disponibilité : Immédiate
Surface : 1 980 m²
Locaux d'Activités - 743m²
CESTAS (33610)
CESTAS (33610)
870 000.99€ HT HC
Disponibilité : Immédiate
Surface : 743 m²
Locaux d'Activités - 507.70m²
SCHWEIGHOUSE SUR MODER (67590)
SCHWEIGHOUSE SUR MODER (67590)
Prix sur demande
Disponibilité : Immédiate
Surface : 507.70 m²
Locaux d'Activités - 253.85m²
SCHWEIGHOUSE SUR MODER (67590)
SCHWEIGHOUSE SUR MODER (67590)
Prix sur demande
Disponibilité : Immédiate
Surface : 253.85 m²