Retour
Disponibilité Juin 2026
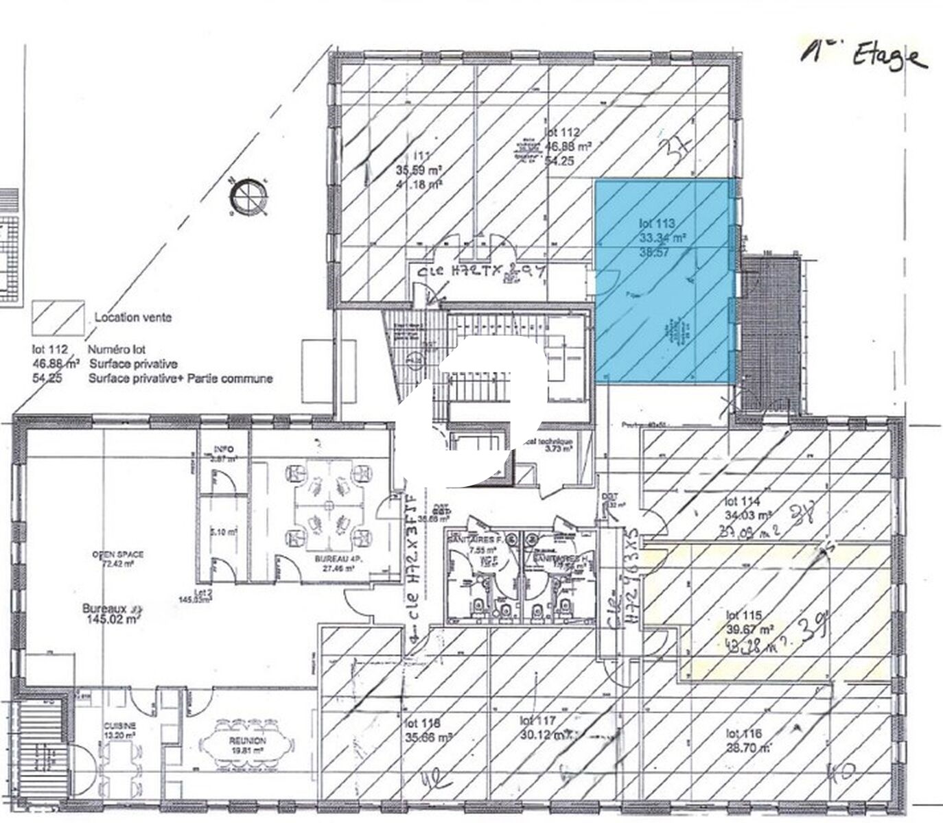
À Acheter ou à Louer Bureaux 43.28 m² HELIOCENTRE 104 RUE DE HOCHFELDEN STRASBOURG (67200)
Ajouter au comparateur
Vous souhaitez faciliter votre recherche ?
Créez un compte
Présentation du bien
IMMPROVE vous propose des bureaux à vendre ou à louer à Strasbourg Cronenbourg, sur l'axe rue d'Hochfelden. Les bureaux sont situés au 1er étage pour une surface de 43 m² environ.
L'immeuble est accessible par la ligne de bus G, à 5 mn de la gare de Strasbourg.
Surface totale
Nature
Divisibilité
Etat des locaux
43.28 m²
Bureaux
Non
Très bon état
Prix & Conditions
Loyer :
145 € /m²/an (HT/HC)
519 € /mois (HT/HC)
6 235 € /an (HT/HC)
Vente :
104 321 € (HD)
2 410.36 € /m² (HD)
Impôt foncier :
400.00
Dépôt de garantie :
3 mois de loyer HT HC
Conditions location :
. Possibilité places de parking en sous-sol : 720 € HT/an
Conditions vente :
Loi Carrez et affectation juridique en cours de détermination
Prestations & équipements du bien
Le confort au quotidien
Climatisation réversible
Les accès
Accès PMR
Sécurité du site
Accès par badge
Accessibilité
Ascenseur
Autres
Espaces lumineux
Câblage RJ45
VMC double flux
Sanitaires en parties communes
. Possibilité places de parking en sous-sol : 720 € HT/an Loi Carrez et affectation juridique en cours de détermination
Répartition & surfaces des espaces
Tableau des divisibilités
| Type | Étage | Surface | Loyer (€/m²/an HT HC) |
Charges (€/m²/an HT HC) |
Prix achat (€/m² HT HC) |
Charges (achat) (€/m² HT HC) |
|---|---|---|---|---|---|---|
| Bureaux | 1er étage | 43 m² | 145.00 | 50.00 | 2 426.06 | 50.00 |
Performance énergétique du bien (DPE)


Informations non contractuelles
Localisation & accès
Transports en commun à proximité
Ligne G
Accès routier
9 mn du centre
Adresses
approximatives
Adresses
précises
Nos nouveaux biens qui pourraient vous intéresser
Bureaux - 890m² Divisibles à partir de 240 m²
STRASBOURG (67000)
STRASBOURG (67000)
Prix sur demande
Disponibilité : Septembre 2026
Surface : divisibles à partir de 240 m²
Les entrepreneurs ayant consulté cette offre ont aussi consulté celles ci
Bureaux - 168m²
SAINTE FOY LES LYON (69110)
SAINTE FOY LES LYON (69110)
Prix sur demande
Disponibilité : Immédiate
Surface : 168 m²
Bureaux - 380m²
VIGNEUX DE BRETAGNE (44360)
VIGNEUX DE BRETAGNE (44360)
Prix sur demande
Disponibilité : A convenir
Surface : 380 m²
Bureaux - 295m²
BOULOGNE BILLANCOURT (92100)
BOULOGNE BILLANCOURT (92100)
Prix sur demande
Disponibilité : Immédiate
Surface : 295 m²