À Acheter Bureaux 7 535.84 m² divisibles à partir de 110.44 m² LE SKY 12 AVENUE EMILE BAUDOT PALAISEAU (91120)
Présentation du bien
Prix & Conditions
Prestations & équipements du bien
Fibre optique
Eclairage à LED encastrés dans le faux plafonds.
Terrasses / balcons
Chauffage et refroidissement par climatisation réversible
Carrelage en RDC, sol souple en étage pour les parties communes
Terrasses / Balcons : dalles sur plots
Interphone et digicode
Ascenseur 630 kg / 8 personnes
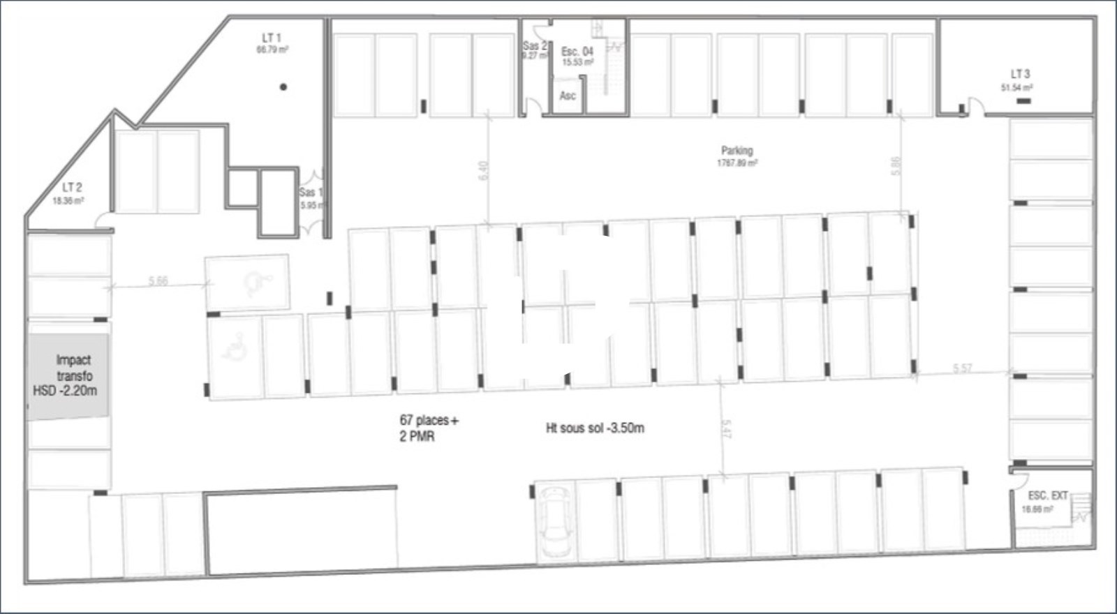
Projet prévoyant la réalisation d'un immeuble d'environ 8 500 m² de bureaux sur 8 niveaux et de trois parkings souterrain
Possibilité de location de parking supplémentaires dans les bâtiments voisins
Classification ERP & Conformité PMR
Façade en mur rideau et baies vitrées toute hauteur et ouvrantes, avec brise-soleil
Hall cathédrale
Isolation thermique suivant RT2012
Menuiseries PVC plaxé gris sombre
Vitrage SP10 ou SP615 en RDC
Abris vélos
Espaces verts . Sanitaires en parties communes
Bureaux livrés en open-space (cloisonnement possible)
Faux plafond en dalles 60x60 blanches micro-perforées
Murs peints
Goulottes périphériques double compartiments
Revêtement de sol en dalle PVC pour les parties privatives
Point d’eau en attente
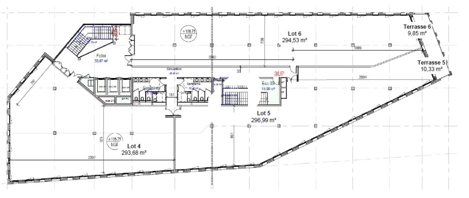
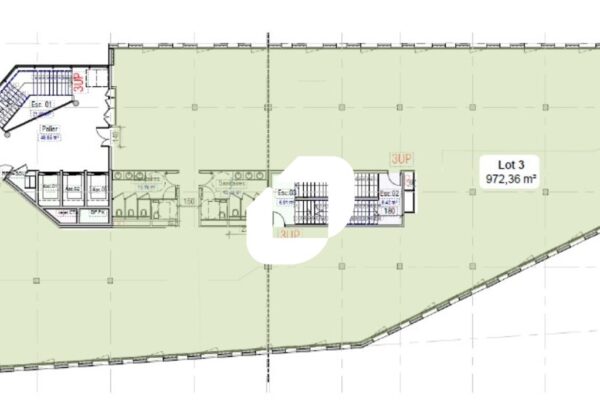
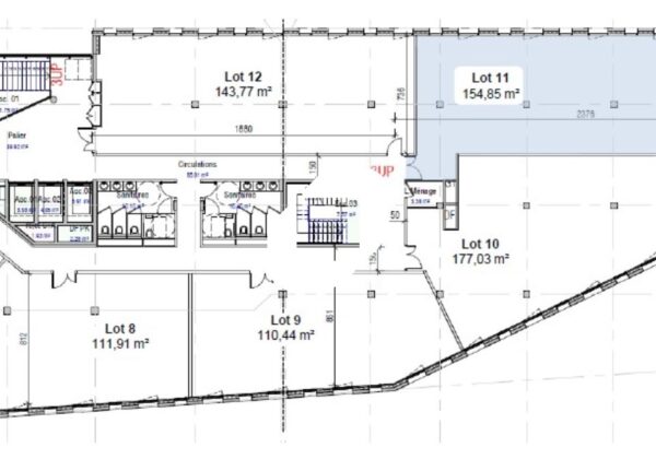
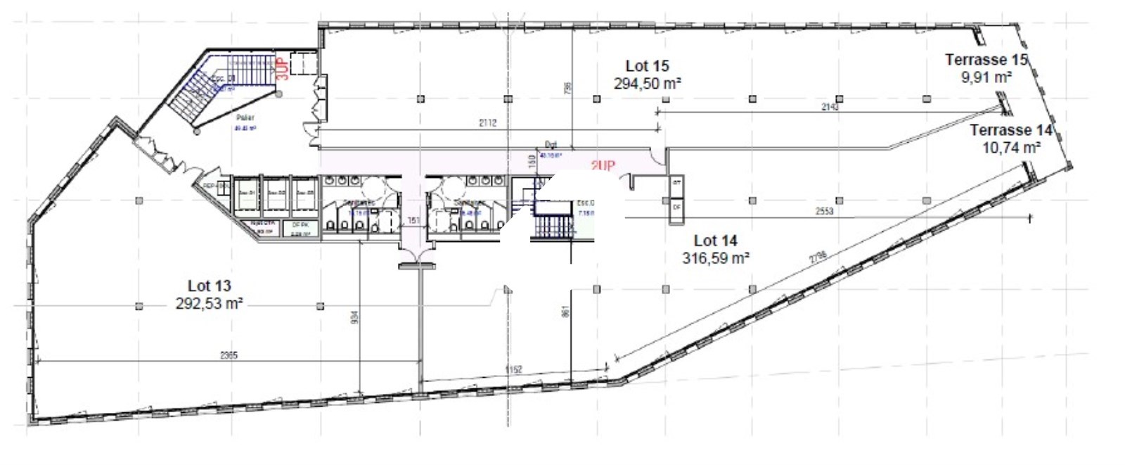
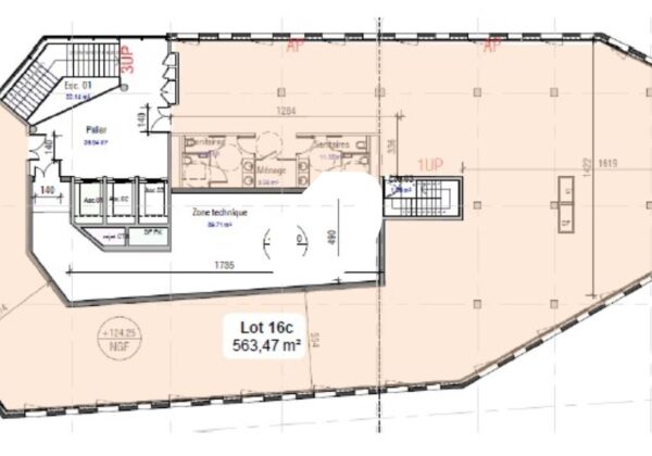
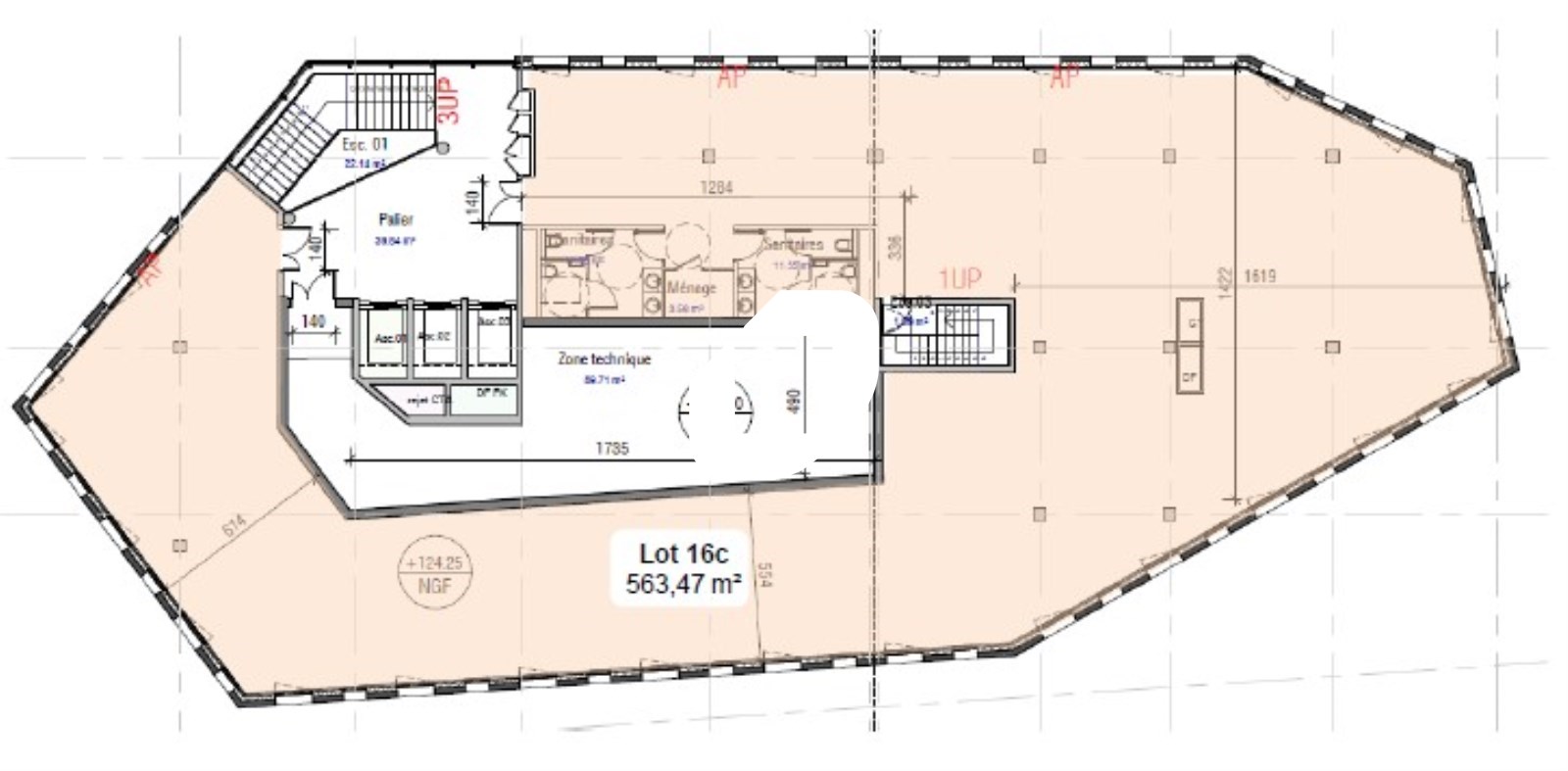
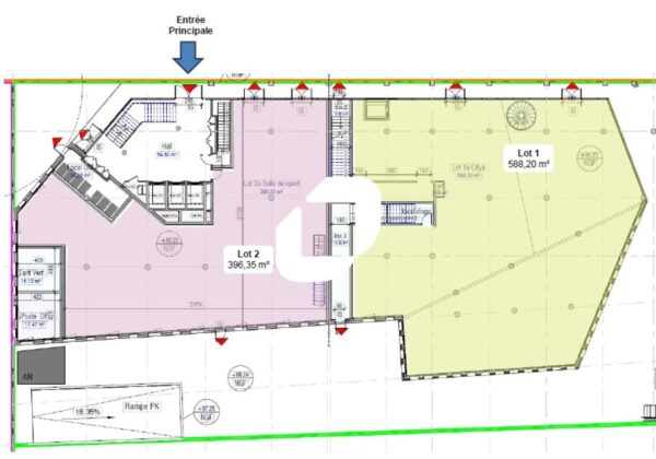
Répartition & surfaces des espaces
Tableau des divisibilités
| Type | Étage | Surface | Prix achat (€/m² HT HC) |
Charges (achat) (€/m² HT HC) |
|---|---|---|---|---|
| Bureaux | Rez-de-Chaussée | 588 m² | 4 087.45 | 19.00 |
| Bureaux | Rez-de-Chaussée | 396 m² | 3 969.44 | 19.00 |
| Bureaux | 1er étage | 171 m² | 4 084.57 | 19.00 |
| Bureaux | 1er étage | 579 m² | 3 779.36 | 19.00 |
| Bureaux | 2ème étage | 972 m² | 3 768.65 | 19.00 |
| Bureaux | 3ème étage | 294 m² | 3 927.22 | 19.00 |
| Bureaux | 3ème étage | 297 m² | 3 935.53 | 19.00 |
| Bureaux | 3ème étage | 295 m² | 3 936.70 | 19.00 |
| Bureaux | 4ème étage | 150 m² | 4 097.35 | 19.00 |
| Bureaux | 4ème étage | 112 m² | 4 103.98 | 19.00 |
| Bureaux | 4ème étage | 110 m² | 4 017.95 | 19.00 |
| Bureaux | 4ème étage | 177 m² | 4 065.62 | 19.00 |
| Bureaux | 4ème étage | 155 m² | 3 965.44 | 19.00 |
| Bureaux | 4ème étage | 144 m² | 3 959.17 | 19.00 |
| Bureaux | 5ème étage | 293 m² | 3 983.74 | 19.00 |
| Bureaux | 5ème étage | 317 m² | 3 979.36 | 19.00 |
| Bureaux | 5ème étage | 295 m² | 3 992.55 | 19.00 |
| Bureaux | 6ème étage | 988 m² | 4 058.99 | 19.00 |
| Bureaux | 7ème étage | 641 m² | 4 330.43 | 19.00 |
| Bureaux | 8ème étage | 563 m² | 4 158.38 | 19.00 |
Performance énergétique du bien (DPE)


Informations non contractuelles
Localisation & accès
Transports en commun à proximité
Gare TGV Massy Palaiseau
Accès routier
T12 Massy - Evry
(Horizon 2023/2024)
N20, N188
A10, A6
Orly - 20'
Adresses
approximatives
Adresses
précises
Nos nouveaux biens qui pourraient vous intéresser
Les entrepreneurs ayant consulté cette offre ont aussi consulté celles ci
NOISY LE GRAND (93160)
SAINT PATHUS (77178)
TRAPPES (78190)