Retour
Disponibilité Immédiate
À Louer Bureaux 594 m² divisibles à partir de 220 m² 2-10 RUE DE LA RENAISSANCE ANTONY (92160)
Ajouter au comparateur
Vous souhaitez faciliter votre recherche ?
Créez un compte
Présentation du bien
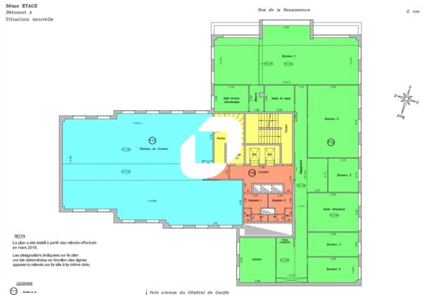
On vous propose à la location dans le bâtiment A du renaissance, un plateau de 596 m² de bureaux situé au 2ème étage divisible en deux surfaces de 236 et 338 m².
Idéalement situé, l'immeuble est aux abords du Parc de Sceaux, tout en bénéficiant de la proximité du RER B et du TRAM 10. 13 parkings sont disponibles en sous sol.
Surface totale
Nature
Divisibilité
Etat des locaux
594 m²
Bureaux
Oui à partir de 220 m²
Bon état
Prix & Conditions
Loyer :
150 € /m²/an (HT/HC)
2 750 € /mois (HT/HC)
33 000 € /an (HT/HC)
Divisibles à partir de 220 m²
Impôt foncier :
24.00
Taxe bureaux :
21.99
Dépôt de garantie :
3 mois de loyer HT HC
Conditions location :
Taxe additionnelle sur les parkings : 4.77 Euros / m²/ HT
Prestations & équipements du bien
Le bâtiment
Immeuble de bureaux de standing
Les espaces de travail
Locaux en bon état
Luminaires LED
Cuisine aménagée
Cloisonnement amovible
Pré- câblage informatique
Le confort au quotidien
Sol Parquet
Climatisation
Les accès
Accès PMR
Sécurité du site
Contrôle d'accès
Accessibilité
Ascenseurs
Services & espaces partagés
Restaurant inter-entreprise
Prestations spécifiques
Chauffage immeuble
Autres
Façade murs rideaux
Parc de Sceaux, commerces, hôtels et services à proximité
Sanitaires Hommes et femmes sur palier privatif
Faux plafond
Taxe additionnelle sur les parkings : 4.77 Euros / m²/ HT
Répartition & surfaces des espaces
Tableau des divisibilités
| Type | Étage | Surface | Loyer (€/m²/an HT HC) |
Charges (€/m²/an HT HC) |
|---|---|---|---|---|
| Bureaux | 2ème étage | 220 m² | 150.00 | 74.00 |
| Bureaux | 2ème étage | 374 m² | 150.00 | 74.00 |
Performance énergétique du bien (DPE)


Informations non contractuelles
Localisation & accès
Transports en commun à proximité
SNCF gare de La Croix de Berny Fresnes
12
379
N62
Adresses
approximatives
Adresses
précises
Nos nouveaux biens qui pourraient vous intéresser
Bureaux - 575m² Divisibles à partir de 217 m²
ANTONY (92160)
ANTONY (92160)
4 833.00€/mois HT HC
Disponibilité : Après travaux
Surface : divisibles à partir de 217 m²
Les entrepreneurs ayant consulté cette offre ont aussi consulté celles ci
Bureaux - 83.60m²
BUSSY SAINT GEORGES (77600)
BUSSY SAINT GEORGES (77600)
1 288.00€/mois HT HC
Disponibilité : Immédiate
Surface : 83.60 m²
Bureaux - 6 934m² Divisibles à partir de 173 m²
LYON (69009)
LYON (69009)
Prix sur demande
Disponibilité : Selon les lots – nous consulter
Surface : divisibles à partir de 173 m²