Retour
Disponibilité juin/juillet 2026
À Louer Bureaux 301 m² divisibles à partir de 118 m² LEVALLOIS PERRET (92300)
Ajouter au comparateur
Vous souhaitez faciliter votre recherche ?
Créez un compte
Présentation du bien
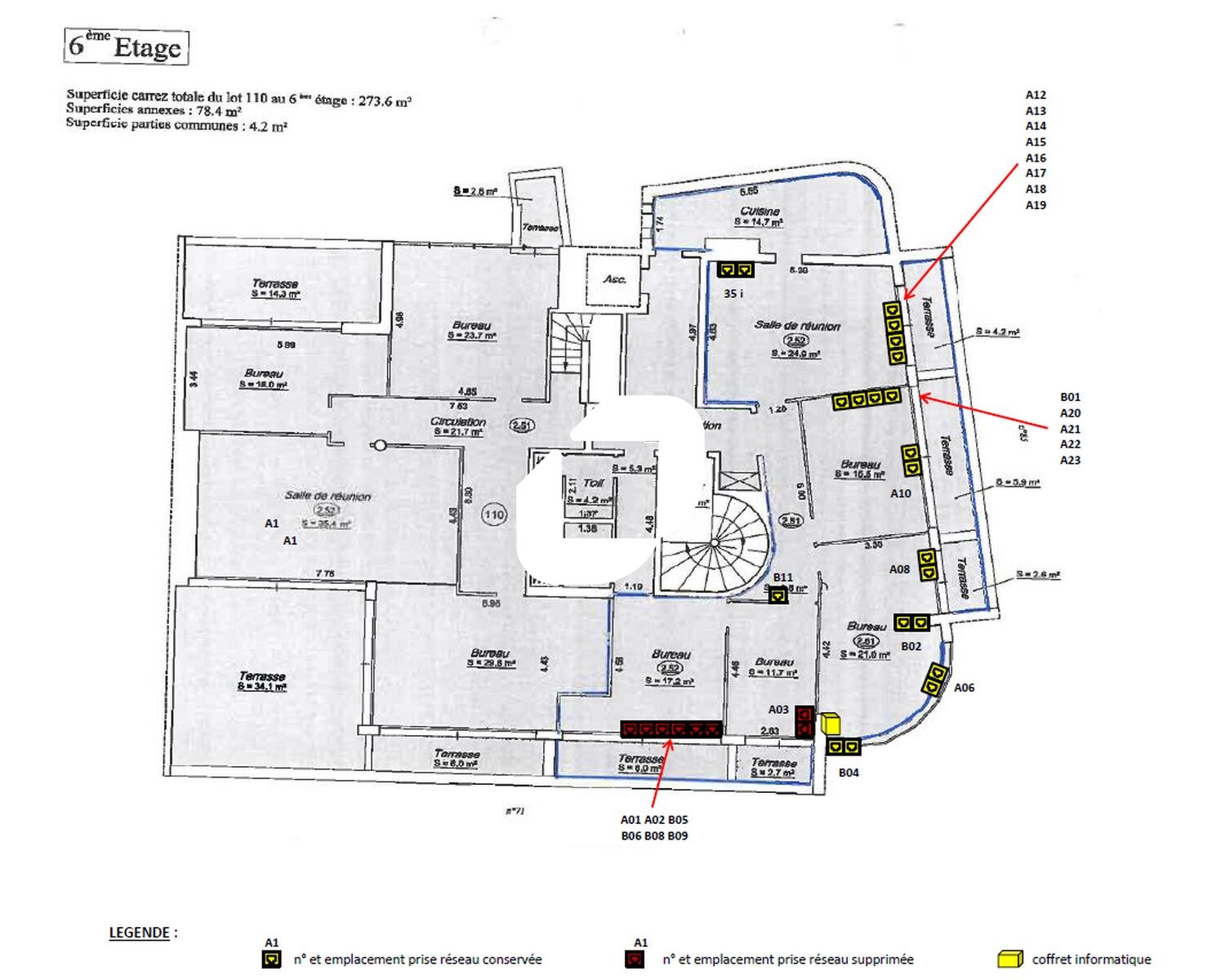
Au sein d'un immeuble de bureaux moderne, au dernier étage, Immprove vous propose un très beau plateau de bureaux, très lumineux, déjà cloisonné, disposant de nombreuses terrasses et balcons ( environ 79m² d'espaces extérieurs) et de la climatisation. Le métro est situé à 8 minutes à pied. Possibilité de diviser à partir de 118 m² environ selon le plan. A visiter sans plus tarder !
Surface totale
Nature
Divisibilité
Etat des locaux
301 m²
Bureaux
Oui à partir de 118 m²
Bon état
Prix & Conditions
Loyer :
350 € /m²/an (HT/HC)
3 441 € /mois (HT/HC)
41 300 € /an (HT/HC)
Divisibles à partir de 118 m²
Impôt foncier :
35.00
Dépôt de garantie :
3 mois de loyer HT HC
Prestations & équipements du bien
Les espaces de travail
Cuisine aménagée
Fibre optique
Le confort au quotidien
Climatisation réversible
Extérieur
Salles de réunion d’angle et donnant sur la grande terrasse
Autres
Surface très lumineuse et prestigieuse au dernier étage
Cloisonnement idéal
Superbes espaces extérieurs d’environ 79 m² bénéficiant à toute la surface
Doubles sanitaires
Surface plug & play
12 emplacements de stationnement en sous-sol
Répartition & surfaces des espaces
Tableau des divisibilités
| Type | Étage | Surface | Loyer (€/m²/an HT HC) |
Charges (€/m²/an HT HC) |
|---|---|---|---|---|
| Parkings | 1 200.00 | Prix sur demande | ||
| Bureaux | 6ème étage | 118 m² | 350.00 | Prix sur demande |
| Bureaux | 6ème étage | 183 m² | 350.00 | Prix sur demande |
Performance énergétique du bien (DPE)


Informations non contractuelles
Localisation & accès
Transports en commun à proximité
Clichy-Levallois (Gare SNCF)
SNCF gare de Asnières-sur-Seine (TER)
SNCF gare de Clichy - Levallois (L)
Bécon-les-Bruyères
165
274
Accès routier
A 13 (Entrée), A 13 (Sortie), A 86 (Entrée Porte de Clichy), A 86 (Sortie Porte de Clichy)
Adresses
approximatives
Adresses
précises
Nos nouveaux biens qui pourraient vous intéresser
Bureaux - 577m² Divisibles à partir de 141 m²
LEVALLOIS PERRET (92300)
LEVALLOIS PERRET (92300)
3 642.50€/mois HT HC
Disponibilité : Selon les lots
Surface : divisibles à partir de 141 m²
Bureaux - 90m²
LEVALLOIS PERRET (92300)
LEVALLOIS PERRET (92300)
3 000.00€/mois HT HC
Disponibilité : Immédiate
Surface : 90 m²
Bureaux - 205m² Divisibles à partir de 98 m²
LEVALLOIS PERRET (92300)
LEVALLOIS PERRET (92300)
3 210.00€/mois HT HC
Disponibilité : Immédiate
Surface : divisibles à partir de 98 m²
Bureaux - 95.59m²
LEVALLOIS PERRET (92300)
LEVALLOIS PERRET (92300)
4 544.17€/mois HT HC
Disponibilité : Immédiate
Surface : 95.59 m²
Les entrepreneurs ayant consulté cette offre ont aussi consulté celles ci
Bureaux - 105m²
SAINT JEAN DE VEDAS (34430)
SAINT JEAN DE VEDAS (34430)
1 458.36€/mois HT HC
Disponibilité : Immédiate
Surface : 105 m²
Bureaux - 330.50m²
PARIS (75013)
PARIS (75013)
10 642.50€/mois HT HC
Disponibilité : Immédiate
Surface : 330.50 m²