À Acheter ou à Louer Entrepôts 6 500 m² RUE CLEMENT ADER BRIE COMTE ROBERT (77170)
Présentation du bien
Prix & Conditions
Prestations & équipements du bien
• Eclairage par projecteurs LED en façade et candélabres
• Eclairage LED commandé par interrupteurs et capteurs de présence
• Eclairage par LED et zénithal naturel (2% y compris désenfumage)
• Stores intérieurs. Plateau non cloisonné, avec moquette et faux-plafond
• Portail avec contrôle d’accès, horloge et interphone
• Accès piéton par porte vitrée avec contrôle d’accès et visiophone
• Ventilation double-flux. Chauffage et rafraichissement de type VRV
• Hauteur libre : 7,50 m. Charge au sol, répartie : 3 T/m²
• Chauffage piloté par thermostats et destratificateurs
Extérieurs :
• Réseaux depuis la limite de terrain jusqu’au bâtiment
• Prise de recharge VL : fourreau depuis le TGBT individuel
• Eaux pluviales vers noues paysagères créées
• Abri 2 roues Bureaux :
• Surcharges : 500 kg/m² au RdC, 350 kg/m² à l’étage
Activités :
• Porte d’accès livraison de plain-pied : 3,50 m de hauteur
• Protection des descentes des eaux pluviales
• Deux chevêtres prévus
Divers :
• Deux sanitaires aux normes PMR au RdC par cellule
• Alarme incendie (Code du Travail). Déclenchement manuel.
• Mesures conservatoires pour installation photovoltaïque en toiture
Label environnemental : BREEAM® Good
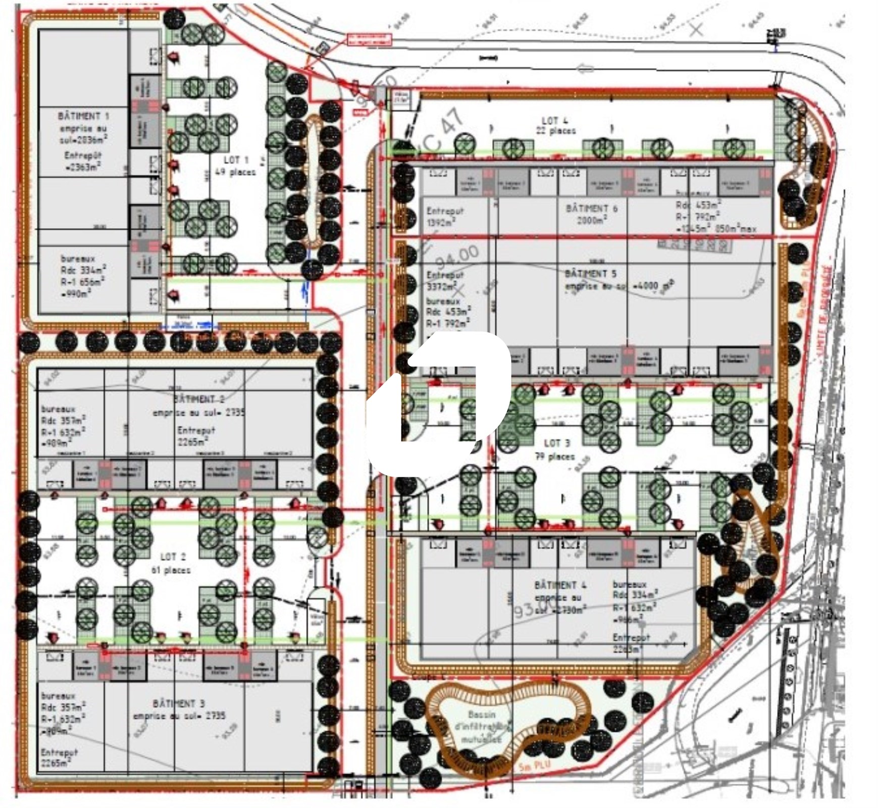
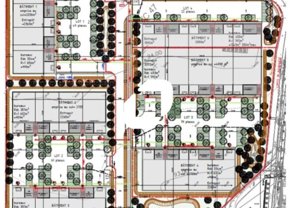
Répartition & surfaces des espaces
Tableau des divisibilités
| Type | Étage | Surface | Loyer (€/m²/an HT HC) |
Charges (€/m²/an HT HC) |
Prix achat (€/m² HT HC) |
Charges (achat) (€/m² HT HC) |
|---|---|---|---|---|---|---|
| Activités | 6 500 m² | 120.00 | Prix sur demande | Prix sur demande | Prix sur demande |
Performance énergétique du bien (DPE)


Informations non contractuelles
Localisation & accès
Transports en commun à proximité
Gare de Lyon à 1h
Accès routier
A105 /A5 / N04
Adresses
approximatives
Adresses
précises
Nos nouveaux biens qui pourraient vous intéresser
PIERRELATTE (26700)
BLANQUEFORT (33290)
ALFORTVILLE (94140)
VILLEPARISIS (77270)
Les entrepreneurs ayant consulté cette offre ont aussi consulté celles ci
PIERRELATTE (26700)
BLANQUEFORT (33290)
LA CHAPELLE SAINT MESMIN (45380)
SARAN (45770)