Retour
Disponibilité 12 mois après accord
À Acheter ou à Louer Entrepôts 18 100 m² MONTBARTIER (82700)
Ajouter au comparateur
Vous souhaitez faciliter votre recherche ?
Créez un compte
Présentation du bien
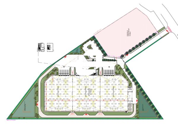
Immprove vous propose en BEFA ou VEFA sur la commune de Montbartier un projet de développement d’un site logistique neuf de 18 000 m².
Au pied de l’A20 et de l’A62, le site propose des prestations de qualités, nombreux quais, places PL et VL et grande hauteur. Autorisation 1510.
Surface totale
Nature
Divisibilité
Etat des locaux
18 100 m²
Entrepôts
Non
Restructuré
Prix & Conditions
Loyer :
60 € /m²/an (HT/HC)
90 500 € /mois (HT/HC)
1 086 000 € /an (HT/HC)
Vente :
Prix sur demande
Dépôt de garantie :
3 mois de loyer HT HC
Prestations & équipements du bien
Les espaces de travail
Bâtiment logistique neuf classe A et indépendant
Bureaux en open space et cloisonnés
Les accès
Aire de manœuvre 35 m
18 portes à quai
Sécurité du site
Site clos et sécurisé
Prestations spécifiques
Hauteur libre : 11.50 m
Sprinklers
Autres
Accès VL / PL
Locaux sociaux
Dallage : 5T/m²
RIA
Autorisation 1510
Certification BREEAM “Very good”
Surface terrain : 4 ha
Répartition & surfaces des espaces
Tableau des divisibilités
| Type | Étage | Surface | Loyer (€/m²/an HT HC) |
Charges (€/m²/an HT HC) |
Prix achat (€/m² HT HC) |
Charges (achat) (€/m² HT HC) |
|---|---|---|---|---|---|---|
| Entrepôts | 18 100 m² | 60.00 | Prix sur demande | Prix sur demande | Prix sur demande |
Performance énergétique du bien (DPE)


Informations non contractuelles
Localisation & accès
Transports en commun à proximité
Gare SNCF - Gare de Montbartier (5km)
Accès routier
A20 ; A62
D820
Adresses
approximatives
Adresses
précises
Nos nouveaux biens qui pourraient vous intéresser
Entrepôts - 57 000m²
PIERRELATTE (26700)
PIERRELATTE (26700)
Prix sur demande
Disponibilité : 12 mois après accord
Surface : 57 000 m²
Entrepôts - 4 886m²
BLANQUEFORT (33290)
BLANQUEFORT (33290)
Prix sur demande
Disponibilité : Immédiate
Surface : 4 886 m²
Entrepôts - 2 000m²
ALFORTVILLE (94140)
ALFORTVILLE (94140)
Prix sur demande
Disponibilité : Immédiate
Surface : 2 000 m²
Entrepôts - 5 180m² Divisibles à partir de 619 m²
VILLEPARISIS (77270)
VILLEPARISIS (77270)
Prix sur demande
Disponibilité : Immédiate
Surface : divisibles à partir de 619 m²
Les entrepreneurs ayant consulté cette offre ont aussi consulté celles ci
Entrepôts - 57 000m²
PIERRELATTE (26700)
PIERRELATTE (26700)
Prix sur demande
Disponibilité : 12 mois après accord
Surface : 57 000 m²
Entrepôts - 4 886m²
BLANQUEFORT (33290)
BLANQUEFORT (33290)
Prix sur demande
Disponibilité : Immédiate
Surface : 4 886 m²
Entrepôts - 4 700m²
LA CHAPELLE SAINT MESMIN (45380)
LA CHAPELLE SAINT MESMIN (45380)
Prix sur demande
Disponibilité : 9 mois après accord
Surface : 4 700 m²
Entrepôts - 4 500m²
SARAN (45770)
SARAN (45770)
Prix sur demande
Disponibilité : 9 mois après accord
Surface : 4 500 m²