À Acheter ou à Louer Entrepôts 9 958 m² divisibles à partir de 5 168 m² ZI DU BOIS DU TEMPLE PUISEUX EN FRANCE (95380)
Présentation du bien
Prix & Conditions
Prestations & équipements du bien
Eclairage 100% LED, délivrant : ? 200 lux en zone de préparation ? 150 lux dans les allées
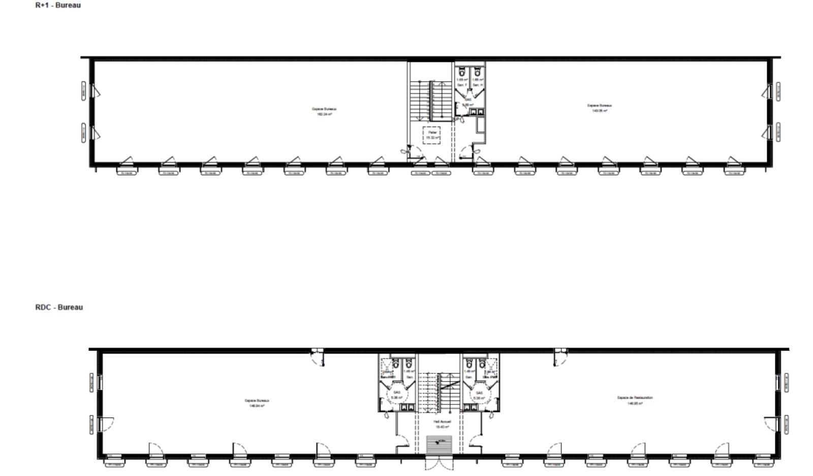
Bureaux RDC, R+1 aménagés en open space
Eclairage par LED :
Revêtement carrelage au RDC et dans les locaux sociaux ? Revêtement sol souple dans les parties bureaux
Portes de quais manuelles 2,80 m x 3,00 m compris section hublots transparents.
Quais niveleurs intégrés 2,20 m x 2,50 m, charge statique 9 t à lèvre rabattable compris guides-roues
Chauffage des cellules par rooftop en toiture assurant une température de +5°C
ICPE : 1510
Chauffage-rafraichissement des bureaux par système réversible de type PAC ou équivalent
Ventilation double flux compris centrale de traitement d’air
BATIMENT
Charpente béton
Hauteur de stockage de 9,5 mètres sous poutres
Eclairage zénithal : 2 %
Dallage sans joints dimensionné pour :
3 t/m² de charge uniformément répartie,
6,3 t sous platine de racks de 15 x 15 cm²
3 t par roue de chariot
Portes de plain-pied électriques 4,00 m x 4,00 m compris hublots transparents.
PROTECTION INCENDIE Mise en place de détection d’une incendie et RIA, selon règles R5 de l’APSAD.
BUREAUX – LOCAUX SOCIAUX
Isolation et double vitrage des bureaux selon calcul RE2020
300 lux dans les bureaux
200 lux dans les locaux sociaux
LOCAUX TECHNIQUES
Local transfo de 600 kVa alimenté par un tarif vert
Réserve de puissance de 25% pour process
Local TGBT
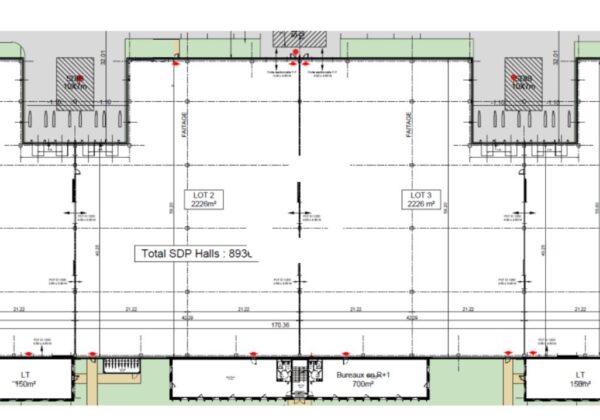
Répartition & surfaces des espaces
Tableau des divisibilités
| Type | Étage | Surface | Loyer (€/m²/an HT HC) |
Charges (€/m²/an HT HC) |
Prix achat (€/m² HT HC) |
Charges (achat) (€/m² HT HC) |
|---|---|---|---|---|---|---|
| Parkings | Prix sur demande | Prix sur demande | Prix sur demande | Prix sur demande | ||
| Parkings | Prix sur demande | Prix sur demande | Prix sur demande | Prix sur demande | ||
| Entrepôts | Rez-de-Chaussée | 8 934 m² | Prix sur demande | Prix sur demande | 1 850.00 | Prix sur demande |
| Locaux spécifiques | Rez-de-Chaussée | 300 m² | 120.00 | Prix sur demande | 1 850.00 | Prix sur demande |
| Locaux techniques | Rez-de-Chaussée | 24 m² | 120.00 | Prix sur demande | 1 850.00 | Prix sur demande |
| Bureaux | 1er étage | 700 m² | 120.00 | Prix sur demande | 1 850.00 | Prix sur demande |
Performance énergétique du bien (DPE)


Informations non contractuelles
Localisation & accès
Transports en commun à proximité
SNCF gare de Louvres
Accès routier
A1
N104
Roissy (12 km - 14 min)
Adresses
approximatives
Adresses
précises
Nos nouveaux biens qui pourraient vous intéresser
PUISEUX EN FRANCE (95380)
Les entrepreneurs ayant consulté cette offre ont aussi consulté celles ci
PIERRELATTE (26700)
BLANQUEFORT (33290)
LA CHAPELLE SAINT MESMIN (45380)
SARAN (45770)