Retour
Locaux d'Activités - 328.50m² à Acheter ou à Louer
. Porte sectionnelle électrique 3 m x 3,5 m
. Portes métalliques 2,04 m x 0,93 m
. 2 portails motorisés
. Clôture treillis
. Espaces verts et plantations
. Noues d’infiltration
. Raccordement aux réseaux
. Boites aux lettres à l’entrée du site
. Toiture équipée de panneaux photovoltaïques
Locaux d'Activités - 328.50m² à Acheter ou à Louer
GENAY (69730)
DESCRIPTION
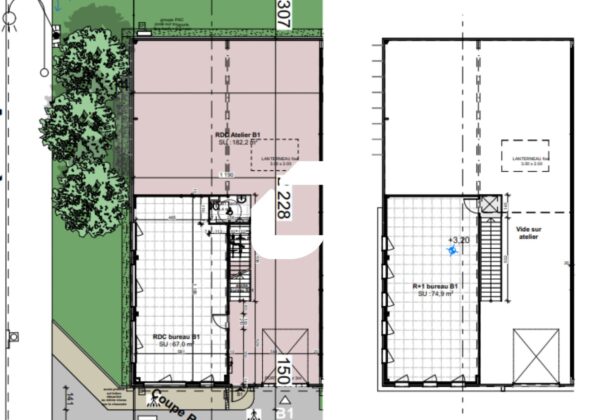
Immprove vous propose, au cœur d’un parc d’activités clos et sécurisé sur la commune de Genay, une cellule neuve de 328 m², disponible à la location ou à la vente. Idéale pour vos opérations industrielles ou artisanales, elle combine un espace atelier ou de stockage fonctionnel avec une partie bureaux bien aménagés.
En savoir plus
. Voirie lourde PL et légère VL en enrobés. Porte sectionnelle électrique 3 m x 3,5 m
. Portes métalliques 2,04 m x 0,93 m
. 2 portails motorisés
. Clôture treillis
. Espaces verts et plantations
. Noues d’infiltration
. Raccordement aux réseaux
. Boites aux lettres à l’entrée du site
. Toiture équipée de panneaux photovoltaïques
Consommations énergétiques


Informations non contractuelles
Tableau des divisibilités
| Type | Étage | Surface | Loyer (€/m²/an HT HC) |
Charges (€/m²/an HT HC) |
Prix achat (€/m² HT HC) |
Charges (achat) (€/m² HT HC) |
|---|---|---|---|---|---|---|
| Activités | 329 m² | 120.02 | 1 800.00 | 2 039.57 | Prix sur demande |
Caractéristiques
- Surface 328.50 m²
- Etat des locaux Bon état
Adresses
approximatives
Adresses
précises
Les entrepreneurs ayant consulté cette offre ont aussi consulté celles ci
Les services Immprove
Une gamme complète de services qui facilitent vos démarches et destinée à satisfaire vos attentes