Retour
Locaux d'Activités - 190m² à Acheter ou à Louer
. Double accès
. Contrôle d'accès
. Télésurveillance
. Site clos
. Fibre optique
. Façade mur rideau
. Façade en pierres
. Accès poids lourds
. Accès PMR
. Aire de chargement
. Accès sécurisé par badge
. Climatisation réversible . Accueil
. Espace ouvert
. Bureaux cloisonnés
. Salle de réunion
. Espace détente
. Local technique
. Sanitaires privatifs
. Locaux traversants
. Locaux lumineux
. Double exposition
. Décloisonnement possible
. Locaux rationnels et modulables
. Faux plafonds
. Moquette
. Cloisonnement amovible
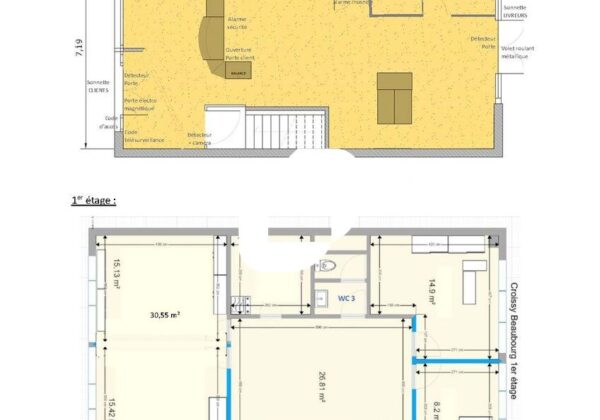
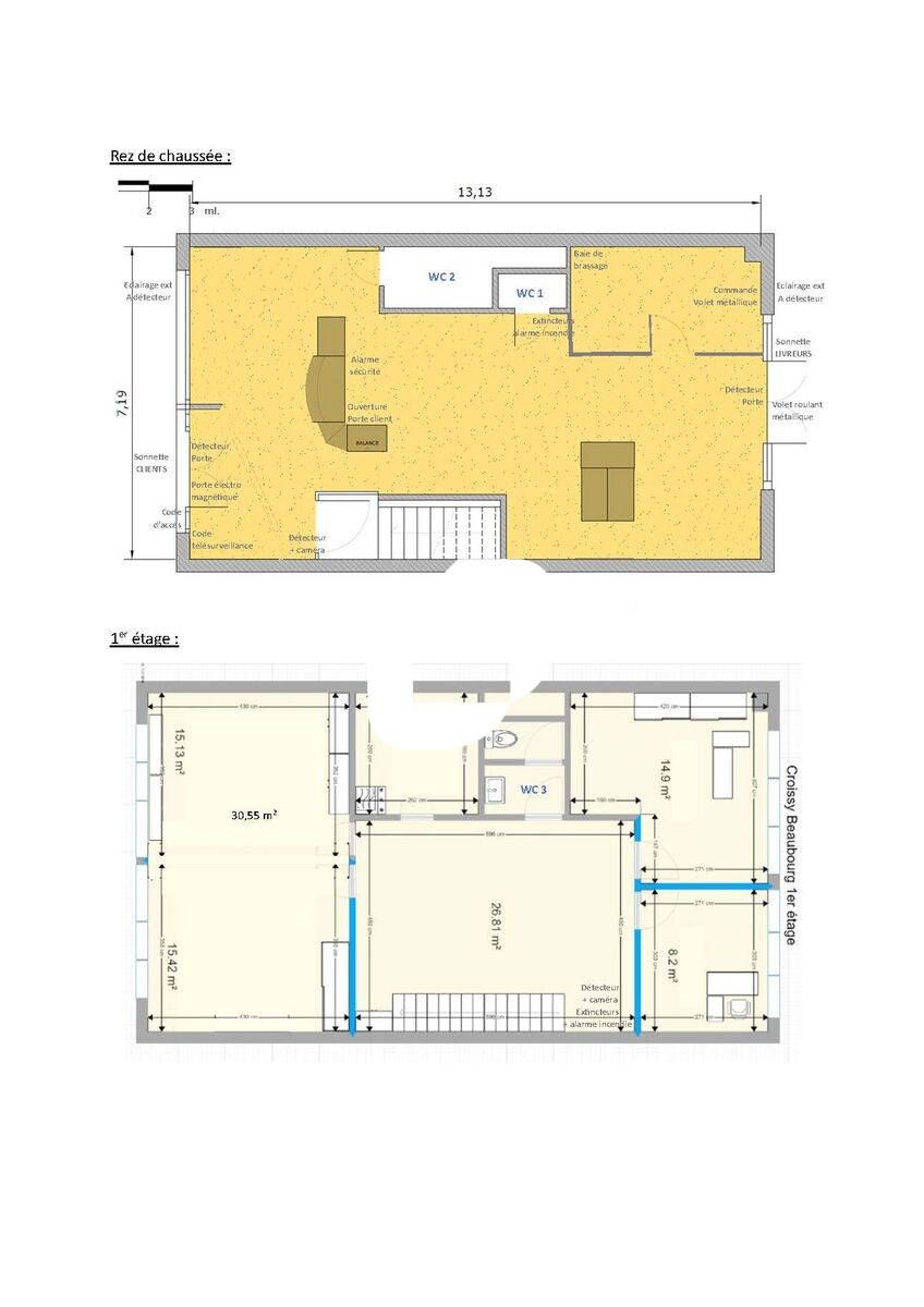
Locaux d'Activités - 190m² à Acheter ou à Louer
CROISSY BEAUBOURG (77183)
DESCRIPTION
Idéalement situé au cœur de la zone d’activité dynamique de Croissy-Beaubourg, à proximité immédiate des grands axes routiers, IMMPROVE vous propose une opportunité rare à la vente ou à la location : un local mixte d’environ 190 m², parfaitement adapté à une activité professionnelle ou à des bureaux.
Réparti sur deux niveaux, ce bien offre des espaces fonctionnels, modulables et lumineux, permettant d’optimiser votre organisation et le développement de votre activité.
Implanté au sein d’un parc sécurisé et entièrement clôturé, le site bénéficie d’un accès par code ainsi que d’un système de vidéosurveillance, garantissant confort et sérénité au quotidien.
Atout supplémentaire : 5 places de stationnement privatives ainsi que 2 emplacements dédiés aux livraisons viennent compléter ce bien, facilitant l’accueil de vos collaborateurs, clients et fournisseurs.
Une adresse stratégique et un cadre sécurisé pour accompagner la croissance de votre entreprise.
Contactez-nous dès maintenant pour organiser une visite et découvrir tout le potentiel de ce local.
En savoir plus
. Accès véhicules légers. Double accès
. Contrôle d'accès
. Télésurveillance
. Site clos
. Fibre optique
. Façade mur rideau
. Façade en pierres
. Accès poids lourds
. Accès PMR
. Aire de chargement
. Accès sécurisé par badge
. Climatisation réversible . Accueil
. Espace ouvert
. Bureaux cloisonnés
. Salle de réunion
. Espace détente
. Local technique
. Sanitaires privatifs
. Locaux traversants
. Locaux lumineux
. Double exposition
. Décloisonnement possible
. Locaux rationnels et modulables
. Faux plafonds
. Moquette
. Cloisonnement amovible
Consommations énergétiques


Informations non contractuelles
Tableau des divisibilités
| Type | Étage | Surface | Loyer (€/m²/an HT HC) |
Charges (€/m²/an HT HC) |
Prix achat (€/m² HT HC) |
Charges (achat) (€/m² HT HC) |
|---|---|---|---|---|---|---|
| Activités | Rez-de-Chaussée | 100 m² | 164.21 | 44.21 | 2 210.53 | 44.21 |
| Bureaux | 1er étage | 90 m² | 164.21 | 44.21 | 2 210.53 | 44.21 |
Caractéristiques
Loi Carrez et affectation juridique en cours de détermination
- Surface 190 m²
- Etat des locaux Bon état
Adresses
approximatives
Adresses
précises
Les entrepreneurs ayant consulté cette offre ont aussi consulté celles ci
Les services Immprove
Une gamme complète de services qui facilitent vos démarches et destinée à satisfaire vos attentes