Retour
Disponibilité Immédiate
À Louer Bureaux privatifs 1 612 m² | 200 postes PARIS (75009)
Ajouter au comparateur
Vous souhaitez faciliter votre recherche ?
Créez un compte
Présentation du bien
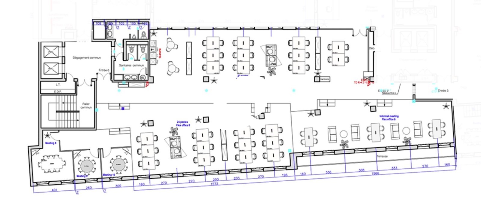
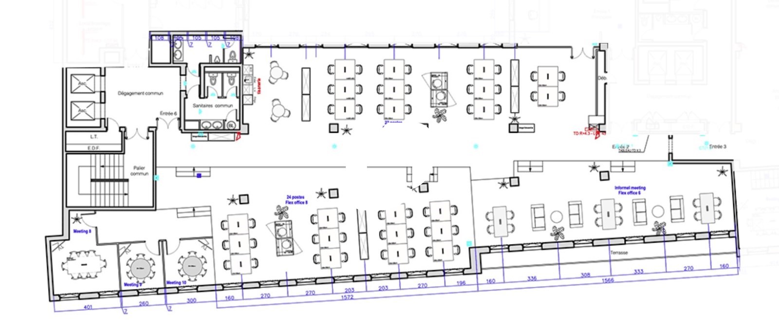
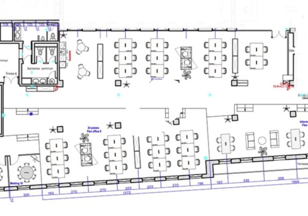
À proximité immédiate du boulevard Haussmann, Immprove vous propose un plateau privatif disponible en septembre en contrat de prestations de services avec une terrasse. Loyer comprenant les charges, les taxes, l’électricité, le chauffage, internet et tous les services de l’immeuble. Possibilité d’aménager et de décorer les locaux selon la charte graphique de votre société.
https://my.matterport.com/show/?m=pzTs7mUHeip
Surface totale
Nature
Divisibilité
Nombre de postes
Etat des locaux
1 612 m²
Bureaux
Non
200
Rénové
Prix & Conditions
Loyer :
875 € /m²/an (HT/HC)
117 541 € /mois (HT/HC)
1 410 500 € /an (HT/HC)
Dépôt de garantie :
3 mois de loyer HT HC
Conditions location :
Taxe foncière, taxe bureaux, TEOM, quote part RIE compris dans le loyer.
Le loyer est une somme forfaitaire incluant toutes les charges et la fiscalité
Le loyer est une somme forfaitaire incluant toutes les charges et la fiscalité
Prestations & équipements du bien
Les espaces de travail
• 2 Open Spaces
Locaux rationnels et modulables
Câblage informatique et téléphonique
Prises RJ45
Le confort au quotidien
Balcon filant
Locaux lumineux
Double exposition
Parquet
Extérieur
• 1 Terrasse
Autres
• 3 Salles de réunion
• 3 Espaces détente
Taxe foncière, taxe bureaux, TEOM, quote part RIE compris dans le loyer.
Le loyer est une somme forfaitaire incluant toutes les charges et la fiscalité
Répartition & surfaces des espaces
Tableau des divisibilités
| Type | Étage | Surface | Loyer (€/m²/an HT HC) |
Charges (€/m²/an HT HC) |
|---|---|---|---|---|
| Bureaux | 4ème étage | 1 612 m² | 875.00 | Prix sur demande |
Performance énergétique du bien (DPE)


Informations non contractuelles
Localisation & accès
Transports en commun à proximité
42
27
20
95
29
N16
N15
68
21
66
43
32
45
94
26
BUS
Adresses
approximatives
Adresses
précises
Nos nouveaux biens qui pourraient vous intéresser
Bureaux - 1 622.82m²
PARIS (75002)
PARIS (75002)
100 146.67€/mois HT HC
Disponibilité : Immédiate
Surface : 1 622.82 m²
Bureaux - 1 640.90m²
PARIS (75016)
PARIS (75016)
138 617.50€/mois HT HC
Disponibilité : 1er juin 2026
Surface : 1 640.90 m²
Bureaux - 1 679m²
PARIS (75017)
PARIS (75017)
107 026.67€/mois HT HC
Disponibilité : 1er septembre 2026
Surface : 1 679 m²
Les entrepreneurs ayant consulté cette offre ont aussi consulté celles ci
Bureaux - 348.02m²
BIEVRES (91570)
BIEVRES (91570)
3 480.00€/mois HT HC
Disponibilité : 1er juillet 2026
Surface : 348.02 m²
Bureaux - 288.28m²
BIEVRES (91570)
BIEVRES (91570)
2 880.00€/mois HT HC
Disponibilité : 1er juillet 2026
Surface : 288.28 m²
Bureaux et Activités - 4 645.22m² Divisibles à partir de 249.90 m²
VILLIERS SUR MARNE (94350)
VILLIERS SUR MARNE (94350)
54 180.00€/mois HT HC
Disponibilité : Immédiate
Surface : divisibles à partir de 249.90 m²
Bureaux - 447m²
MOUSSY LE NEUF (77230)
MOUSSY LE NEUF (77230)
4 097.50€/mois HT HC
Disponibilité : Immédiate
Surface : 447 m²