Retour
Bureaux Coworking - 850m²
. Jusqu'à 158 postes de travail et 51 bureaux privés
. Décloisonnement et aménagements sur mesure
. Divisible par lot de 50 postes / 200 m²
. 2 terrasses
. Salles de réunion tout équipée (4 à 20 personnes)
. Accès à tous les salons d'affaire IWG
. Espace Evènementiel avec Café connecté
. Salle de conférence de 150 personnes
. Espace Medialab : logiciels dernier cri et espace réalité virtuelle
. Show-room technologique et scientifique made in Paris-Saclay
. Un Restaurant terrasse avec livraison d'étage
. Contrat flexibles : choix dans la durée du contrat
. Prix tout inclus : domiciliation d'entreprise, gestion courrier, réception et personnel d'accueil, charges, nettoyage et maintenance
. Accès internet haut débit inclus
. Espaces de travail additionnels : salle de réunion, bureaux et coworking à la carte
. Rooftop accessible à tous les clients
. Mobilier moderne inclus
. Business lounge
. Espace de pauses
. Cuisine et sanitaires
Bureaux Coworking - 850m²
LE PLAYGROUND PARIS SACLAY - 3 BOULEVARD THOMAS GOBERT PALAISEAU (91120)
DESCRIPTION
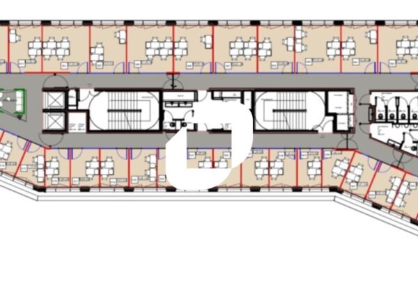
Situé sur le plateau de Paris-Saclay, à seulement quelques minutes de la N118 et desservi à terme par la ligne 18 du métro, Immprove vous présente Le Playground Paris-Saclay. Un immeuble neuf de bureaux à louer dans un éco système dédiée à la R&D. Plusieurs formules All inclusive et flexibles pour ce plateau de 850 m² pouvant accueillir jusqu'à 158 personnes.
En savoir plus
. Plateau de 850 m² privatisable :. Jusqu'à 158 postes de travail et 51 bureaux privés
. Décloisonnement et aménagements sur mesure
. Divisible par lot de 50 postes / 200 m²
. 2 terrasses
. Salles de réunion tout équipée (4 à 20 personnes)
. Accès à tous les salons d'affaire IWG
. Espace Evènementiel avec Café connecté
. Salle de conférence de 150 personnes
. Espace Medialab : logiciels dernier cri et espace réalité virtuelle
. Show-room technologique et scientifique made in Paris-Saclay
. Un Restaurant terrasse avec livraison d'étage
. Contrat flexibles : choix dans la durée du contrat
. Prix tout inclus : domiciliation d'entreprise, gestion courrier, réception et personnel d'accueil, charges, nettoyage et maintenance
. Accès internet haut débit inclus
. Espaces de travail additionnels : salle de réunion, bureaux et coworking à la carte
. Rooftop accessible à tous les clients
. Mobilier moderne inclus
. Business lounge
. Espace de pauses
. Cuisine et sanitaires
Consommations énergétiques


Informations non contractuelles
Tableau des divisibilités
| Type | Étage | Surface | Loyer (€/m²/an HT HC) |
Charges (€/m²/an HT HC) |
Prix achat (€/m² HT HC) |
Charges (achat) (€/m² HT HC) |
|---|---|---|---|---|---|---|
| Coworking | 5ème étage | 850 m² | 5 400.00 | Prix sur demande | Prix sur demande | Prix sur demande |
Caractéristiques
- Surface 850 m²
- Etat des locaux Neuf
- CoWorking postes 158
Adresses
approximatives
Adresses
précises
Les services Immprove
Une gamme complète de services qui facilitent vos démarches et destinée à satisfaire vos attentes