Retour
Disponibilité T2 2028
Bureaux 7 547 m² divisibles à partir de 814 m² VOY 207 CHEMIN DU GRAND REVOYET SAINT GENIS LAVAL (69230)
Ajouter au comparateur
Vous souhaitez faciliter votre recherche ?
Créez un compte
Présentation du bien
ENSEMBLE IMMOBILIER MIXTE EN VEFA - SAINT-GENIS-LAVAL (ZAC DU VALLON)
IMMPROVE vous propose un ensemble immobilier innovant et polyvalent en VEFA, idéalement situé à Saint-Genis-Laval, au cœur de la ZAC DU VALLON.
Surface totale
Nature
Divisibilité
Etat des locaux
7 547 m²
Bureaux
Oui à partir de 814 m²
Neuf
Prix & Conditions
Loyer :
Prix sur demande
Prix sur demande
Prix sur demande
Divisibles à partir de 814 m²
Conditions vente :
. Le prix de vente contient le prix des surfaces des bureaux, QP PC , des parkings, des terrasses, locaux divers
Détail prix unitaire :
Bureaux : 3 385 € HT/m²
QP PC : 3 385 € HT/m²
Parking : 19 000 € HT/U
Terrasses privatives : 850 € HT/m²
Locaux divers : 2 150 € HT/m²
Détail prix unitaire :
Bureaux : 3 385 € HT/m²
QP PC : 3 385 € HT/m²
Parking : 19 000 € HT/U
Terrasses privatives : 850 € HT/m²
Locaux divers : 2 150 € HT/m²
Prestations & équipements du bien
Le confort au quotidien
Revêtement moquette haut de gamme
Prestations spécifiques
Chauffage et rafraîchissement
Extérieur
1 650 m² de terrasses paysagées accessibles et 3 000 m² d’espaces verts privatifs
Autres
Certification BREEAM Very Good
220 m² d’espace vélo avec douches et vestiaires
Faux plafond acoustique
Halls sécurisés et privatifs
. Le prix de vente contient le prix des surfaces des bureaux, QP PC , des parkings, des terrasses, locaux divers
Détail prix unitaire :
Bureaux : 3 385 € HT/m²
QP PC : 3 385 € HT/m²
Parking : 19 000 € HT/U
Terrasses privatives : 850 € HT/m²
Locaux divers : 2 150 € HT/m²
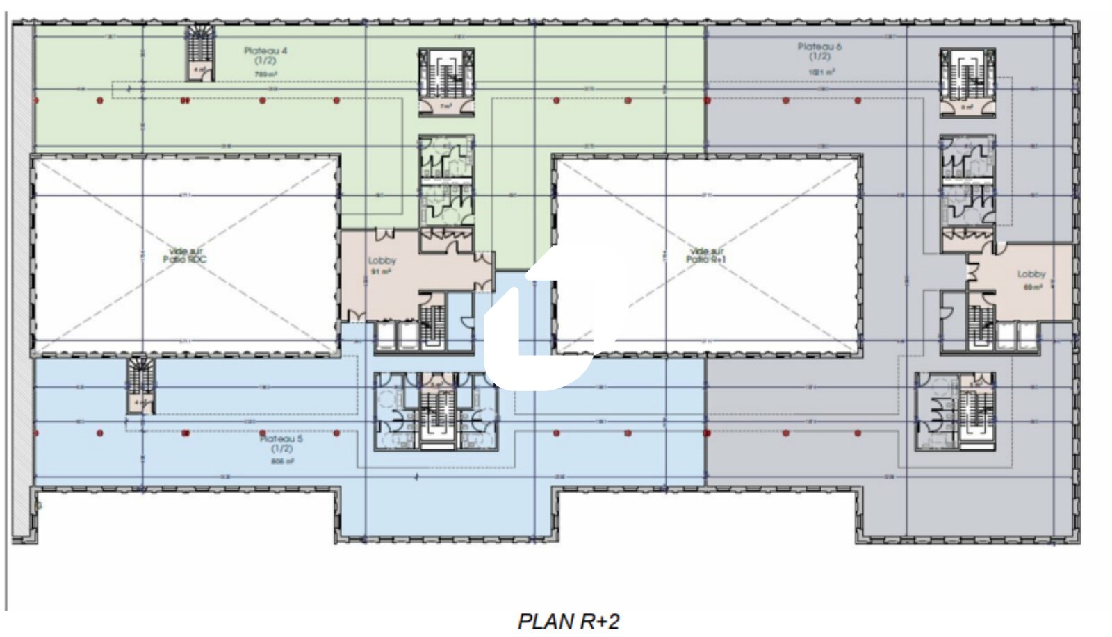
Répartition & surfaces des espaces
Tableau des divisibilités
| Type | Étage | Surface | Loyer (€/m²/an HT HC) |
Charges (€/m²/an HT HC) |
Prix achat (€/m² HT HC) |
Charges (achat) (€/m² HT HC) |
|---|---|---|---|---|---|---|
| Bureaux | 1er étage | 814 m² | Prix sur demande | Prix sur demande | 3 902.12 | Prix sur demande |
| Bureaux | 1er étage | 1 180 m² | Prix sur demande | Prix sur demande | 3 807.74 | Prix sur demande |
| Bureaux | RDC / R+1 | 1 318 m² | Prix sur demande | Prix sur demande | 3 657.94 | Prix sur demande |
| Bureaux | R + 2 / R + 3 | 1 172 m² | Prix sur demande | Prix sur demande | 3 848.09 | Prix sur demande |
| Bureaux | R + 2 / R + 3 | 1 233 m² | Prix sur demande | Prix sur demande | 3 856.12 | Prix sur demande |
| Bureaux | R + 2 / R + 3 | 1 830 m² | Prix sur demande | Prix sur demande | 3 743.17 | Prix sur demande |
Performance énergétique du bien (DPE)


Informations non contractuelles
Localisation & accès
Transports en commun à proximité
17
88
Accès routier
A7
Adresses
approximatives
Adresses
précises
Les entrepreneurs ayant consulté cette offre ont aussi consulté celles ci
Bureaux et Activités - 4 840.70m² Divisibles à partir de 51.28 m²
VILLENEUVE LES MAGUELONE (34750)
VILLENEUVE LES MAGUELONE (34750)
Prix sur demande
Disponibilité : Selon les lots – nous consulter
Surface : divisibles à partir de 51.28 m²