Retour
Disponibilité Immédiate
À Louer Activités et Bureaux 2 244 m² divisibles à partir de 1 113 m² GENNEVILLIERS (92230)
Ajouter au comparateur
Vous souhaitez faciliter votre recherche ?
Créez un compte
Présentation du bien
IMMPROVE vous propsoe à la location un magnifique local à usage mixte d'activité et de bureaux situé à proxilmité des Quais de Seine et de la gare RER C Les Grésillons". Belle hauteur sous plafond, accès gros porteur.
Surface totale
Nature
Divisibilité
Etat des locaux
2 244 m²
Activités et Bureaux
Oui à partir de 1 113 m²
Très bon état
Prix & Conditions
Loyer :
175 € /m²/an (HT/HC)
16 231 € /mois (HT/HC)
194 775 € /an (HT/HC)
Divisibles à partir de 1 113 m²
Impôt foncier :
15.00
Taxe bureaux :
17.56
Dépôt de garantie :
3 mois de loyer HT HC
Prestations & équipements du bien
Les espaces de travail
Fibre optique
Les accès
Contrôle d'accès sur portails
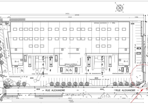
• 1 porte à quai par lots : 2,8 m x 3,0 m
• Site clos, contrôle d’accès sur portails.
Sécurité du site
Site clos
Prestations spécifiques
Chauffage collectif • Dallage quartzé anti poussière industriel. Résistance au sol : 3T/m²
Autres
Gaz
• Menuiseries extérieures aluminium
• 1 porte de plain pied par lot : 4 m x 4,5 m
• Murs séparatifs parpaings ou placostil entre les lots assurant le coupe feux
• Toiture isolante multicouche
• Désenfumage selon réglementation
• L’activité est chauffé par l’intermédiaire d’aerothermes gaz à
détente direct
• Performance : +12°C intérieur par -7°C Exterieur
• Clôtures en treillis soudé vert
• Voirie lourde pour permettre le passage de poids lourd
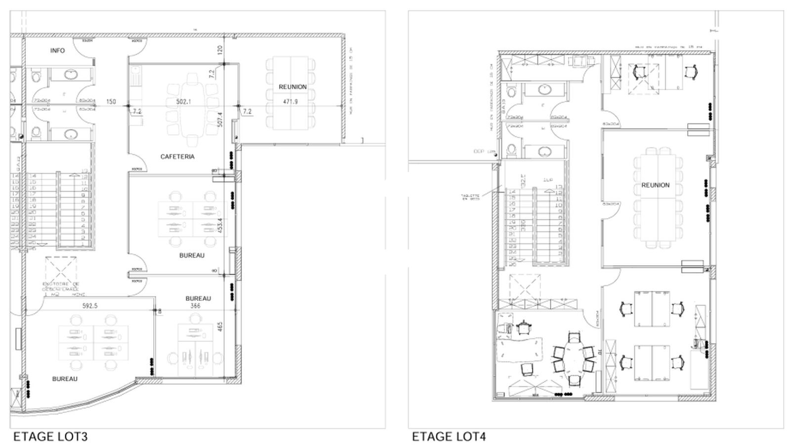
Répartition & surfaces des espaces
Tableau des divisibilités
| Type | Étage | Surface | Loyer (€/m²/an HT HC) |
Charges (€/m²/an HT HC) |
|---|---|---|---|---|
| Parkings | 450.00 | Prix sur demande | ||
| Bureaux | 1er étage | 351 m² | 175.00 | Prix sur demande |
| Activités | RDC | 1 558 m² | 175.00 | Prix sur demande |
| Bureaux | RDC | 335 m² | 175.00 | Prix sur demande |
Performance énergétique du bien (DPE)


Informations non contractuelles
Localisation & accès
Transports en commun à proximité
137
166
Accès routier
A86
A1
Nos nouveaux biens qui pourraient vous intéresser
Activités et Bureaux - 1 000m²
GENNEVILLIERS (92230)
GENNEVILLIERS (92230)
12 083.33€/mois HT HC
Disponibilité : Immédiate
Surface : 1 000 m²
Les entrepreneurs ayant consulté cette offre ont aussi consulté celles ci
Activités et Bureaux - 318.89m² Divisibles à partir de 156 m²
BEZONS (95870)
BEZONS (95870)
1 755.00€/mois HT HC
Disponibilité : Immédiate
Surface : divisibles à partir de 156 m²
Activités et Bureaux - 430m²
MEUDON (92190)
MEUDON (92190)
8 420.83€/mois HT HC
Disponibilité : Immédiate
Surface : 430 m²
Activités et Bureaux - 446m²
BIEVRES (91570)
BIEVRES (91570)
4 460.00€/mois HT HC
Disponibilité : 1er septembre 2026
Surface : 446 m²
Activités et Bureaux - 1 374m² Divisibles à partir de 128 m²
MARCOUSSIS (91460)
MARCOUSSIS (91460)
2 735.72€/mois HT HC
Disponibilité : Immédiate
Surface : divisibles à partir de 128 m²