Retour
Activités et Bureaux - 400m² à Louer
. Bureaux en très bon état d'usage
. Porte sectionnelle
. Cour privative 50 m² pour déchargement ou parking
. Hauteur sous-plafond 5 mètres
. Bonne charge au sol
. Chauffage par aérotherme
. Chaudière au gaz
. Câblage informatique
. Baie de brassage
. Electricité triphasé
. Carrelage ultra résistant dans actis
. Moquette dans bureaux
. Cuisine
. Douche
. Sanitaire
Activités et Bureaux - 400m² à Louer
COURBEVOIE (92400)
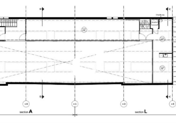
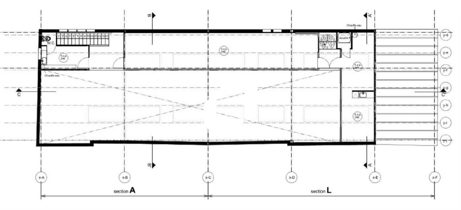
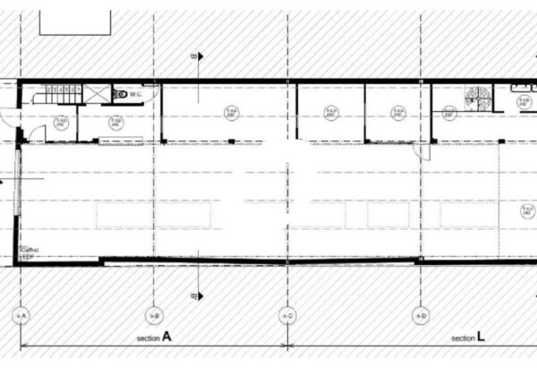
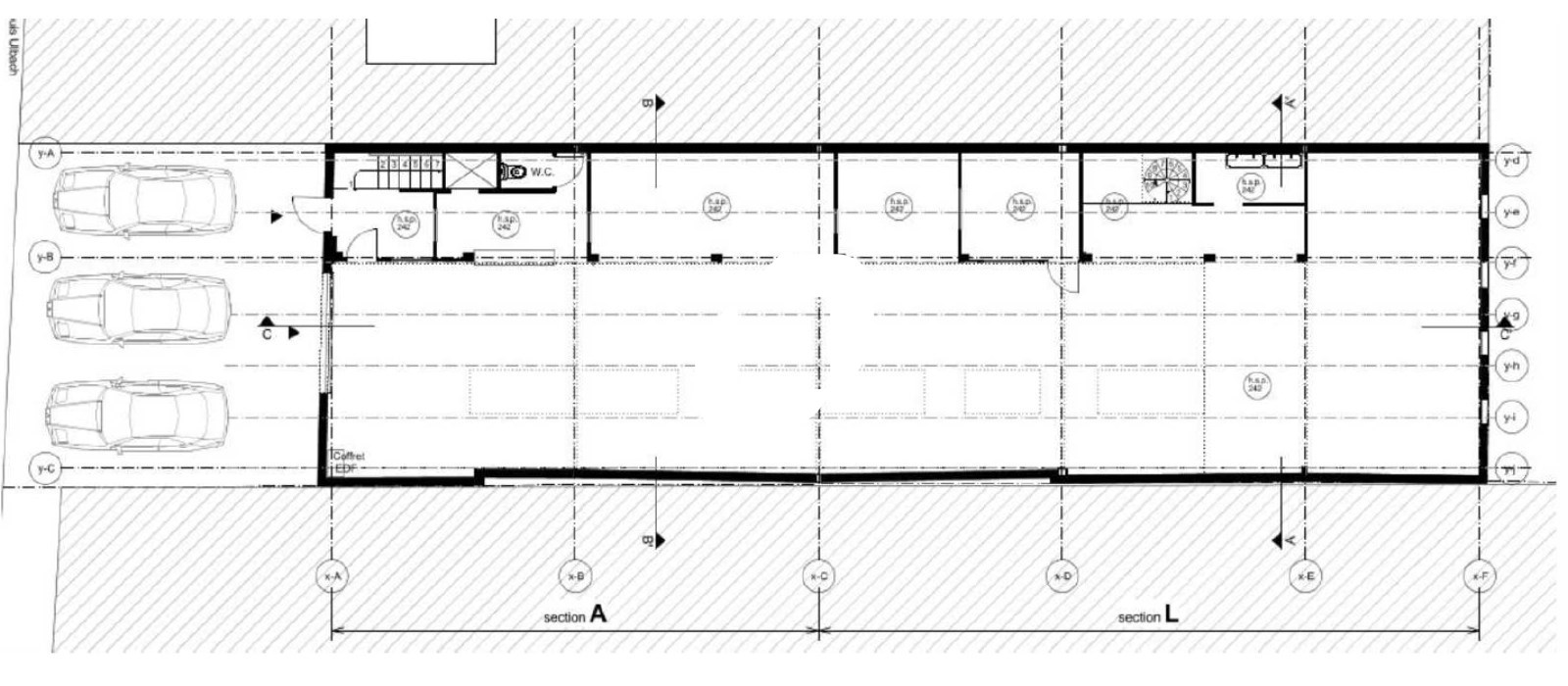
DESCRIPTION
Immprove vous propose un bâtiment indépendant à usage d'activité et bureaux en mezzanine . Idéalement situé à toute proximité de la gare de Bécon les Bruyères.
En savoir plus
. Immeuble récent . Accès piéton. Bureaux en très bon état d'usage
. Porte sectionnelle
. Cour privative 50 m² pour déchargement ou parking
. Hauteur sous-plafond 5 mètres
. Bonne charge au sol
. Chauffage par aérotherme
. Chaudière au gaz
. Câblage informatique
. Baie de brassage
. Electricité triphasé
. Carrelage ultra résistant dans actis
. Moquette dans bureaux
. Cuisine
. Douche
. Sanitaire
Consommations énergétiques


Informations non contractuelles
Tableau des divisibilités
| Type | Étage | Surface | Loyer (€/m²/an HT HC) |
Charges (€/m²/an HT HC) |
|---|---|---|---|---|
| Activités | RDC / R+1 | 400 m² | 200.00 | Prix sur demande |
Caractéristiques
. Bâtiment indépendant, absence de charges
- Surface 400 m²
- Etat des locaux Bon état
Adresses
approximatives
Adresses
précises
Les entrepreneurs ayant consulté cette offre ont aussi consulté celles ci
Les services Immprove
Une gamme complète de services qui facilitent vos démarches et destinée à satisfaire vos attentes