Retour
Disponibilité Février 2026
À Louer Bureaux 271 m² PLACE ROBERT SCHUMAN GRENOBLE (38000)
Ajouter au comparateur
Vous souhaitez faciliter votre recherche ?
Créez un compte
Présentation du bien
IMMPROVE vous propose une opportunité exceptionnelle à Grenoble : des bureaux de 271 m² non divisibles à louer. Idéalement situés, ces espaces offrent un environnement de travail moderne et fonctionnel, parfait pour accueillir votre entreprise.
Surface totale
Nature
Divisibilité
Etat des locaux
271 m²
Bureaux
Non
Bon état
Prix & Conditions
Loyer :
170 € /m²/an (HT/HC)
3 839 € /mois (HT/HC)
46 070 € /an (HT/HC)
Impôt foncier :
39.00
Dépôt de garantie :
1 trimestre HT
Conditions location :
Honoraires de commercialisation : 30%
Prestations & équipements du bien
Le bâtiment
Parties communes de qualité
Les espaces de travail
Fibre optique . Locaux traversant
Faux plafonds
Plinthes périphériques
Prises RJ45
Le confort au quotidien
Climatisation réversible
Locaux lumineux
Double exposition
Climatisation réversibles
Sécurité du site
Contrôle d'accès
Accessibilité
Ascenseur
Prestations spécifiques
Tarif bleu
Honoraires de commercialisation : 30%
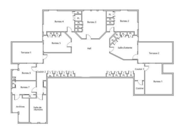
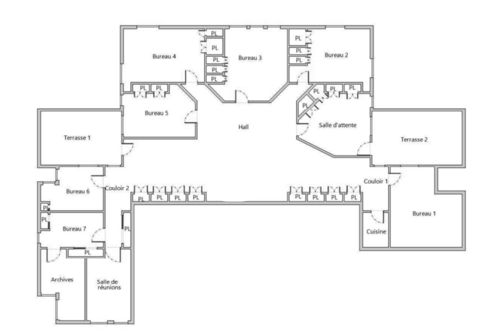
Répartition & surfaces des espaces
Tableau des divisibilités
| Type | Étage | Surface | Loyer (€/m²/an HT HC) |
Charges (€/m²/an HT HC) |
|---|---|---|---|---|
| Bureaux | 8ème étage | 271 m² | 170.00 | 52.00 |
Performance énergétique du bien (DPE)


Informations non contractuelles
Localisation & accès
Adresses
approximatives
Adresses
précises
Nos nouveaux biens qui pourraient vous intéresser
Bureaux - 668m² Divisibles à partir de 334 m²
GRENOBLE (38000)
GRENOBLE (38000)
4 314.17€/mois HT HC
Disponibilité : Immédiate
Surface : divisibles à partir de 334 m²
Bureaux - 4 038.67m² Divisibles à partir de 218.42 m²
GRENOBLE (38100)
GRENOBLE (38100)
2 815.83€/mois HT HC
Disponibilité : Immédiate
Surface : divisibles à partir de 218.42 m²
Les entrepreneurs ayant consulté cette offre ont aussi consulté celles ci
Bureaux et Locaux Commerciaux - 275.40m²
SAINT HERBLAIN (44800)
SAINT HERBLAIN (44800)
3 994.15€/mois HT HC
Disponibilité : 1er janvier 2027
Surface : 275.40 m²
Bureaux - 1 845m² Divisibles à partir de 285 m²
NANTES (44300)
NANTES (44300)
Prix sur demande
Disponibilité : Immédiate
Surface : divisibles à partir de 285 m²
Bureaux - 120m²
SAINT OUEN L'AUMONE (95310)
SAINT OUEN L'AUMONE (95310)
1 100.00€/mois HT HC
Disponibilité : Immédiate
Surface : 120 m²