Retour
Disponibilité Commercialisation sur plan et Bail en Etat Futur d’Achèvement
À Louer Bureaux 931 m² divisibles à partir de 94 m² BASSE GOULAINE (44115)
Ajouter au comparateur
Vous souhaitez faciliter votre recherche ?
Créez un compte
Présentation du bien
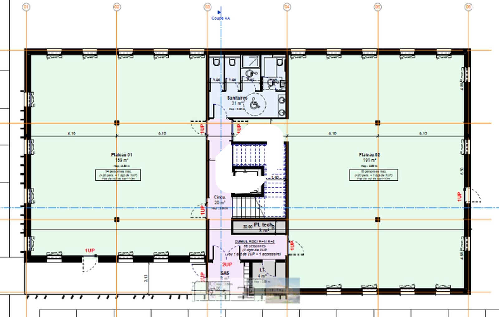
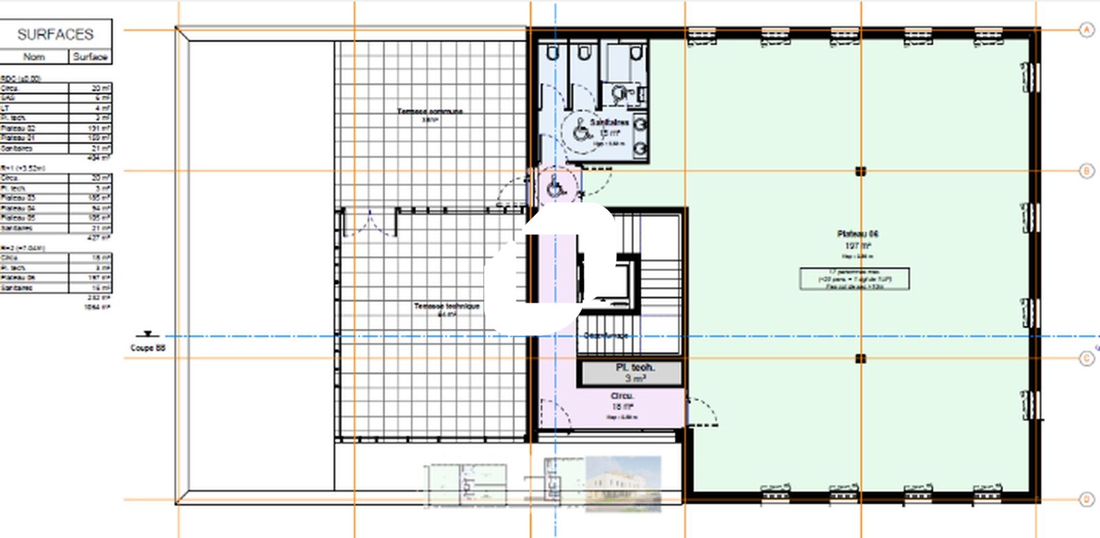
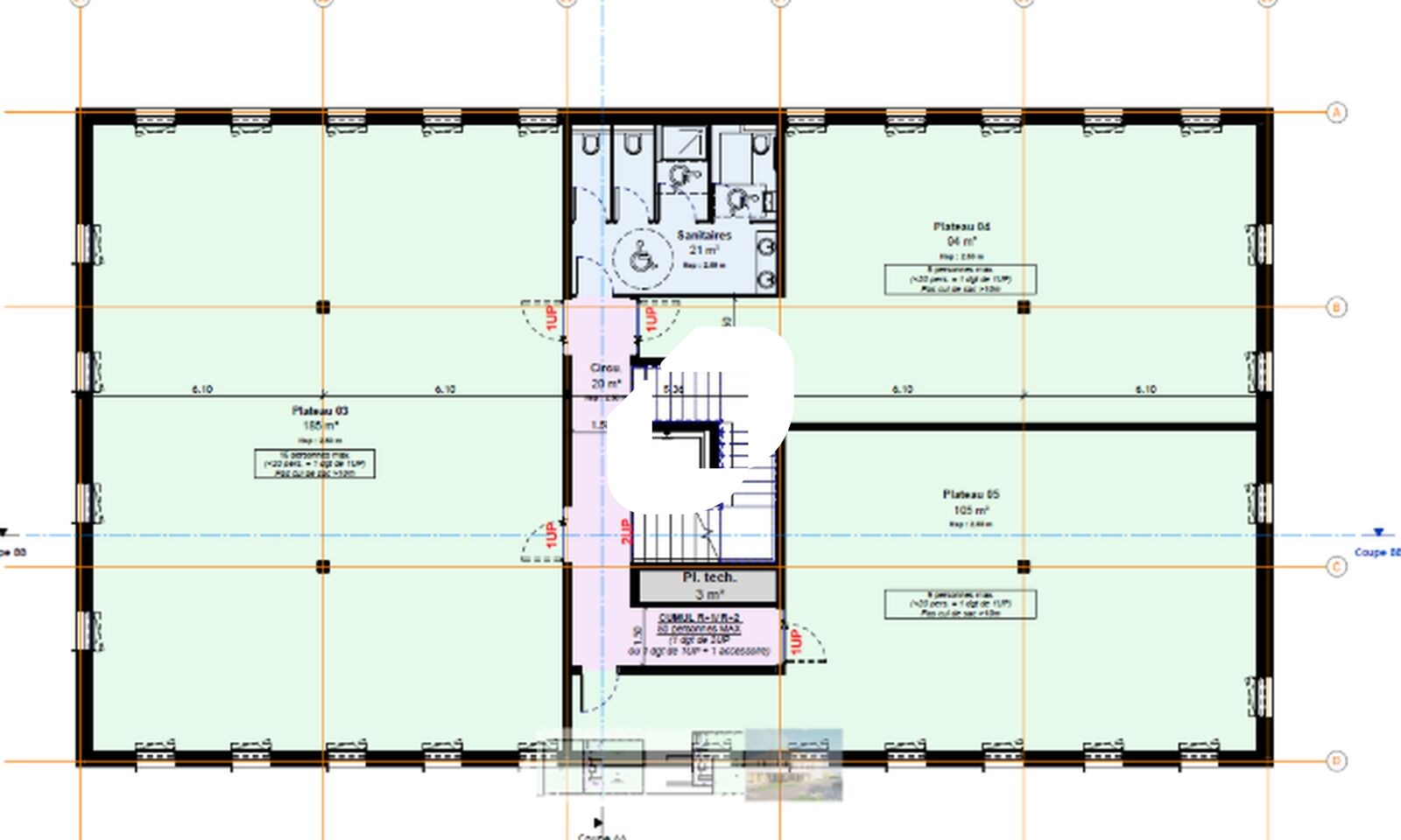
Situé à proximité immédiate des transports en commun, cet immeuble neuf comprend 6 lots disponibles à la location, pouvant être loués en bloc ou séparément, avec des surfaces allant de 94 m² à 931 m².
Répartis sur trois niveaux, les plateaux offrent une grande flexibilité d’aménagement, adaptés aussi bien à un usage en open space qu’en bureaux cloisonnés.
Les locaux bénéficient également de parkings privatifs.
L’immeuble est idéalement desservi par les lignes de bus C9, 102, 112 et 122, situées au pied du bâtiment.
Les bureaux sont livrés non aménagés.
Surface totale
Nature
Divisibilité
Etat des locaux
931 m²
Bureaux
Oui à partir de 94 m²
Neuf
Prix & Conditions
Loyer :
165 € /m²/an (HT/HC)
1 292 € /mois (HT/HC)
15 510 € /an (HT/HC)
Divisibles à partir de 94 m²
Dépôt de garantie :
3 mois de loyer HT HC
Conditions location :
Honoraires de commercialisation : 30% HT du loyer annuel HT/HC.
Prestations & équipements du bien
Les espaces de travail
Neuf
Brut de béton
Honoraires de commercialisation : 30% HT du loyer annuel HT/HC.
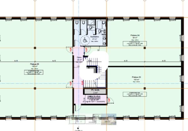
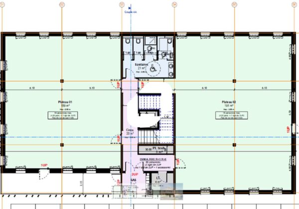
Répartition & surfaces des espaces
Tableau des divisibilités
| Type | Étage | Surface | Loyer (€/m²/an HT HC) |
Charges (€/m²/an HT HC) |
|---|---|---|---|---|
| Parkings | Prix sur demande | Prix sur demande | ||
| Bureaux | Rez-de-Chaussée | 159 m² | 165.00 | Prix sur demande |
| Bureaux | Rez-de-Chaussée | 191 m² | 165.00 | Prix sur demande |
| Bureaux | 1er étage | 94 m² | 165.00 | Prix sur demande |
| Bureaux | 1er étage | 105 m² | 165.00 | Prix sur demande |
| Bureaux | 1er étage | 185 m² | 165.00 | Prix sur demande |
| Bureaux | 2ème étage | 197 m² | 165.00 | Prix sur demande |
Performance énergétique du bien (DPE)


Informations non contractuelles
Localisation & accès
Transports en commun à proximité
Gare de Vertou
102
112
122
Accès routier
Boulevard périphérique D149 - N844
Adresses
approximatives
Adresses
précises
Nos nouveaux biens qui pourraient vous intéresser
Bureaux - 368m² Divisibles à partir de 33 m²
BASSE GOULAINE (44115)
BASSE GOULAINE (44115)
1 450.00€/mois HT HC
Disponibilité : Immédiate
Surface : divisibles à partir de 33 m²
Les entrepreneurs ayant consulté cette offre ont aussi consulté celles ci
Bureaux - 348.02m²
BIEVRES (91570)
BIEVRES (91570)
3 480.00€/mois HT HC
Disponibilité : 1er juillet 2026
Surface : 348.02 m²
Bureaux - 288.28m²
BIEVRES (91570)
BIEVRES (91570)
2 880.00€/mois HT HC
Disponibilité : 1er juillet 2026
Surface : 288.28 m²
Bureaux et Activités - 4 645.22m² Divisibles à partir de 249.90 m²
VILLIERS SUR MARNE (94350)
VILLIERS SUR MARNE (94350)
54 180.00€/mois HT HC
Disponibilité : Immédiate
Surface : divisibles à partir de 249.90 m²
Bureaux - 447m²
MOUSSY LE NEUF (77230)
MOUSSY LE NEUF (77230)
4 097.50€/mois HT HC
Disponibilité : Immédiate
Surface : 447 m²