Retour
Disponibilité Immédiate
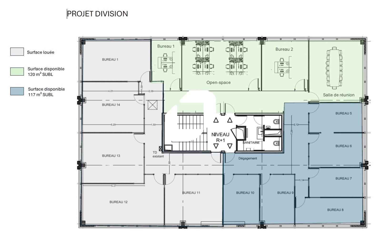
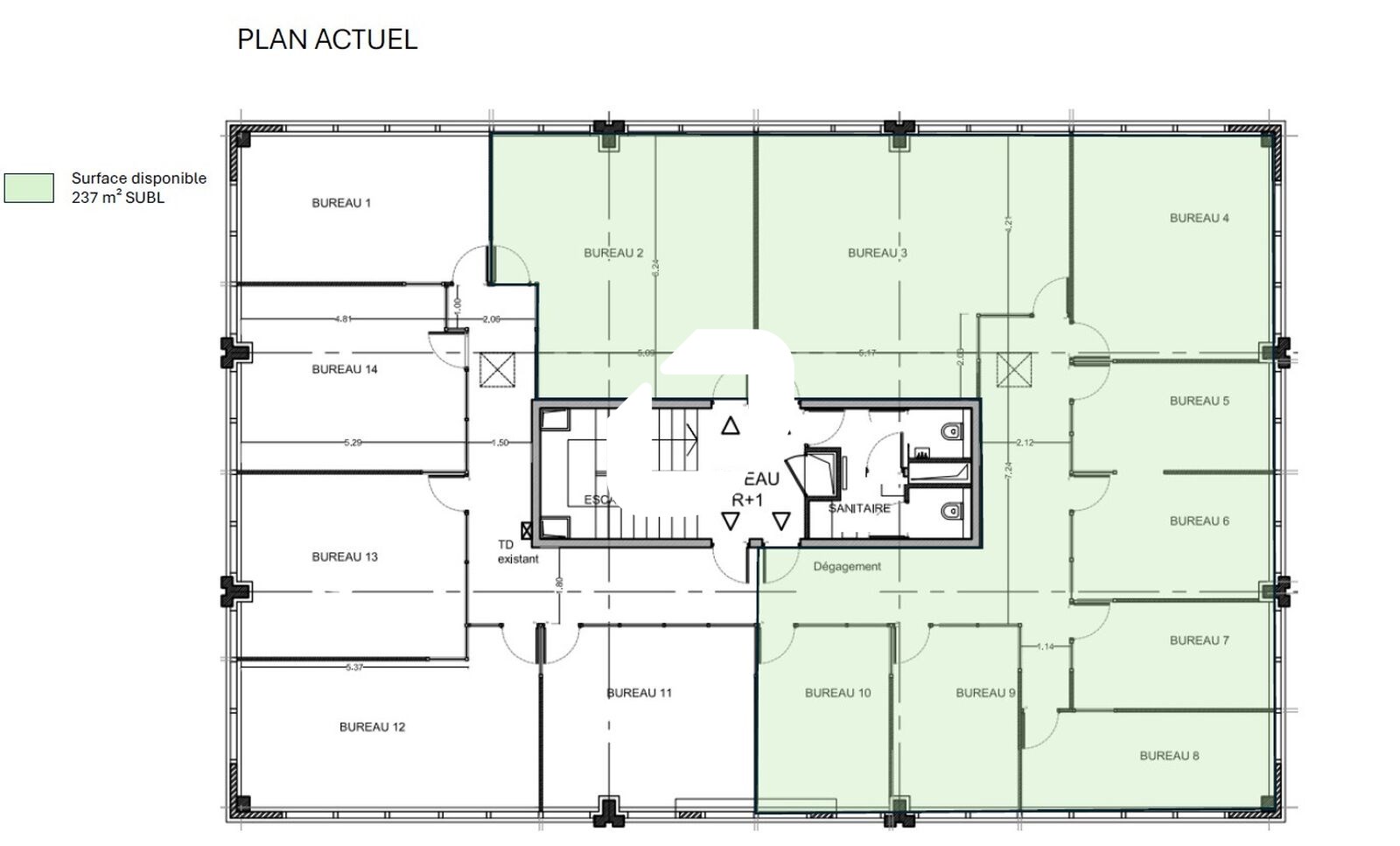
À Louer Bureaux 237 m² divisibles à partir de 117 m² 2 IMPASSE DES TOURMALINES NANTES (44300)
Ajouter au comparateur
Vous souhaitez faciliter votre recherche ?
Créez un compte
Présentation du bien
NANTES EST - Immprove vous propose à la location un plateau de bureaux de 237 m² divisibles selon vos besoins. Situé au cœur d'un parc d'affaires dynamique, dans le Nord-Est de Nantes vous bénéficiez d’un bon ratio parking.
Surface totale
Nature
Divisibilité
Etat des locaux
237 m²
Bureaux
Oui à partir de 117 m²
Rénové
Prix & Conditions
Loyer :
120 € /m²/an (HT/HC)
1 170 € /mois (HT/HC)
14 040 € /an (HT/HC)
Divisibles à partir de 117 m²
Impôt foncier :
21.00
Dépôt de garantie :
3 mois de loyer HT HC
Prestations & équipements du bien
Le bâtiment
Immeuble moderne
Les espaces de travail
Parties communes rénovées
Rénové
Accueil
Espace ouvert
Bureaux cloisonnés
Salle de réunion
Espace détente
Local technique
Cuisine
Décloisonnement possible
Locaux rationnels et modulables
Faux plafonds
Cloisonnement amovible
Plinthes périphériques
Prises RJ45
Eclairage Led
Le confort au quotidien
Jardin paysager
Locaux traversants
Locaux lumineux
Double exposition
Sol PVC
Climatisation réversible
Autres
Sanitaires
Répartition & surfaces des espaces
Tableau des divisibilités
| Type | Étage | Surface | Loyer (€/m²/an HT HC) |
Charges (€/m²/an HT HC) |
|---|---|---|---|---|
| Parkings | Prix sur demande | Prix sur demande | ||
| Bureaux | 1er étage | 117 m² | 120.00 | Prix sur demande |
| Bureaux | 1er étage | 120 m² | 120.00 | Prix sur demande |
Performance énergétique du bien (DPE)


Informations non contractuelles
Localisation & accès
Transports en commun à proximité
77
85
Accès routier
Route de Paris
Adresses
approximatives
Adresses
précises
Nos nouveaux biens qui pourraient vous intéresser
Bureaux - 104.75m²
NANTES (44200)
NANTES (44200)
1 312.50€/mois HT HC
Disponibilité : 1er juillet 2026
Surface : 104.75 m²
Les entrepreneurs ayant consulté cette offre ont aussi consulté celles ci
Bureaux - 348.02m²
BIEVRES (91570)
BIEVRES (91570)
3 480.00€/mois HT HC
Disponibilité : 1er juillet 2026
Surface : 348.02 m²
Bureaux - 288.28m²
BIEVRES (91570)
BIEVRES (91570)
2 880.00€/mois HT HC
Disponibilité : 1er juillet 2026
Surface : 288.28 m²
Bureaux et Activités - 4 645.22m² Divisibles à partir de 249.90 m²
VILLIERS SUR MARNE (94350)
VILLIERS SUR MARNE (94350)
54 180.00€/mois HT HC
Disponibilité : Immédiate
Surface : divisibles à partir de 249.90 m²
Bureaux - 447m²
MOUSSY LE NEUF (77230)
MOUSSY LE NEUF (77230)
4 097.50€/mois HT HC
Disponibilité : Immédiate
Surface : 447 m²