Retour
Disponibilité Immédiate
À Louer Bureaux 310.62 m² divisibles à partir de 19.62 m² CARQUEFOU (44470)
Ajouter au comparateur
Vous souhaitez faciliter votre recherche ?
Créez un compte
Présentation du bien
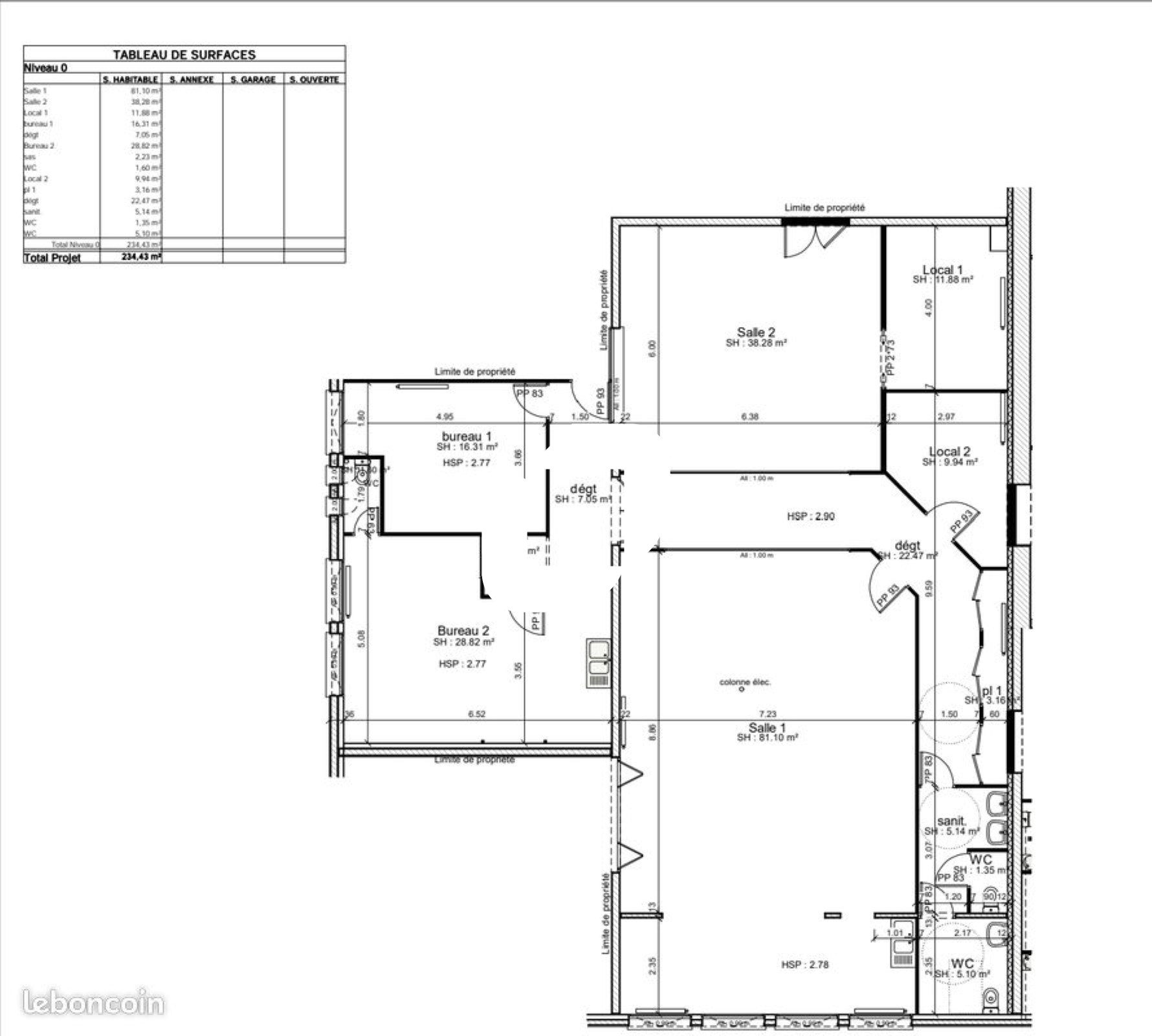
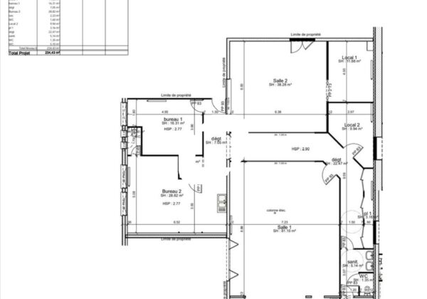
Immprove immobilier vous propose à proximité de la route de Paris, secteur Nantes-Est et situé dans un ensemble de bureaux. 3 bureaux d’une superficie totale de 388m²(environ) situé au 1er étage pour celui de 120m² (environ) et en rdc pour les autres de 30 et 238m² (environ).
Surface totale
Nature
Divisibilité
Etat des locaux
310.62 m²
Bureaux
Oui à partir de 19.62 m²
Bon état
Prix & Conditions
Loyer :
107 € /m²/an (HT/HC)
174 € /mois (HT/HC)
2 099 € /an (HT/HC)
Divisibles à partir de 19.62 m²
Dépôt de garantie :
A déterminer
Prestations & équipements du bien
Le bâtiment
Bâtiment indépendant
Les espaces de travail
Fibre optique . Rénové
Bureaux cloisonnés
Salle de réunion
Espace détente
Local technique
Cuisine
Sanitaires privatifs
Faux plafonds
Les accès
Accès véhicules légers
Portail d'accès
Sécurité du site
Digicode
Site clos
Répartition & surfaces des espaces
Tableau des divisibilités
| Type | Étage | Surface | Loyer (€/m²/an HT HC) |
Charges (€/m²/an HT HC) |
|---|---|---|---|---|
| Bureaux | Rez-de-Chaussée | 20 m² | 107.03 | 80.00 |
| Bureaux | Rez-de-Chaussée | 53 m² | 104.15 | 150.00 |
| Bureaux | Rez-de-Chaussée | 238 m² | 90.76 | Prix sur demande |
Performance énergétique du bien (DPE)


Informations non contractuelles
Localisation & accès
Transports en commun à proximité
Gare de Nantes à 15 minutes
95
Adresses
approximatives
Adresses
précises
Nos nouveaux biens qui pourraient vous intéresser
Bureaux - 515m² Divisibles à partir de 15 m²
CARQUEFOU (44470)
CARQUEFOU (44470)
212.50€/mois HT HC
Disponibilité : Immédiate
Surface : divisibles à partir de 15 m²
Les entrepreneurs ayant consulté cette offre ont aussi consulté celles ci
Bureaux - 348.02m²
BIEVRES (91570)
BIEVRES (91570)
3 480.00€/mois HT HC
Disponibilité : 1er juillet 2026
Surface : 348.02 m²
Bureaux - 288.28m²
BIEVRES (91570)
BIEVRES (91570)
2 880.00€/mois HT HC
Disponibilité : 1er juillet 2026
Surface : 288.28 m²
Bureaux et Activités - 4 645.22m² Divisibles à partir de 249.90 m²
VILLIERS SUR MARNE (94350)
VILLIERS SUR MARNE (94350)
54 180.00€/mois HT HC
Disponibilité : Immédiate
Surface : divisibles à partir de 249.90 m²
Bureaux - 447m²
MOUSSY LE NEUF (77230)
MOUSSY LE NEUF (77230)
4 097.50€/mois HT HC
Disponibilité : Immédiate
Surface : 447 m²