Retour
Disponibilité Immédiate
À Louer Bureaux 110 m² SAINTE LUCE SUR LOIRE (44980)
Ajouter au comparateur
Vous souhaitez faciliter votre recherche ?
Créez un compte
Présentation du bien
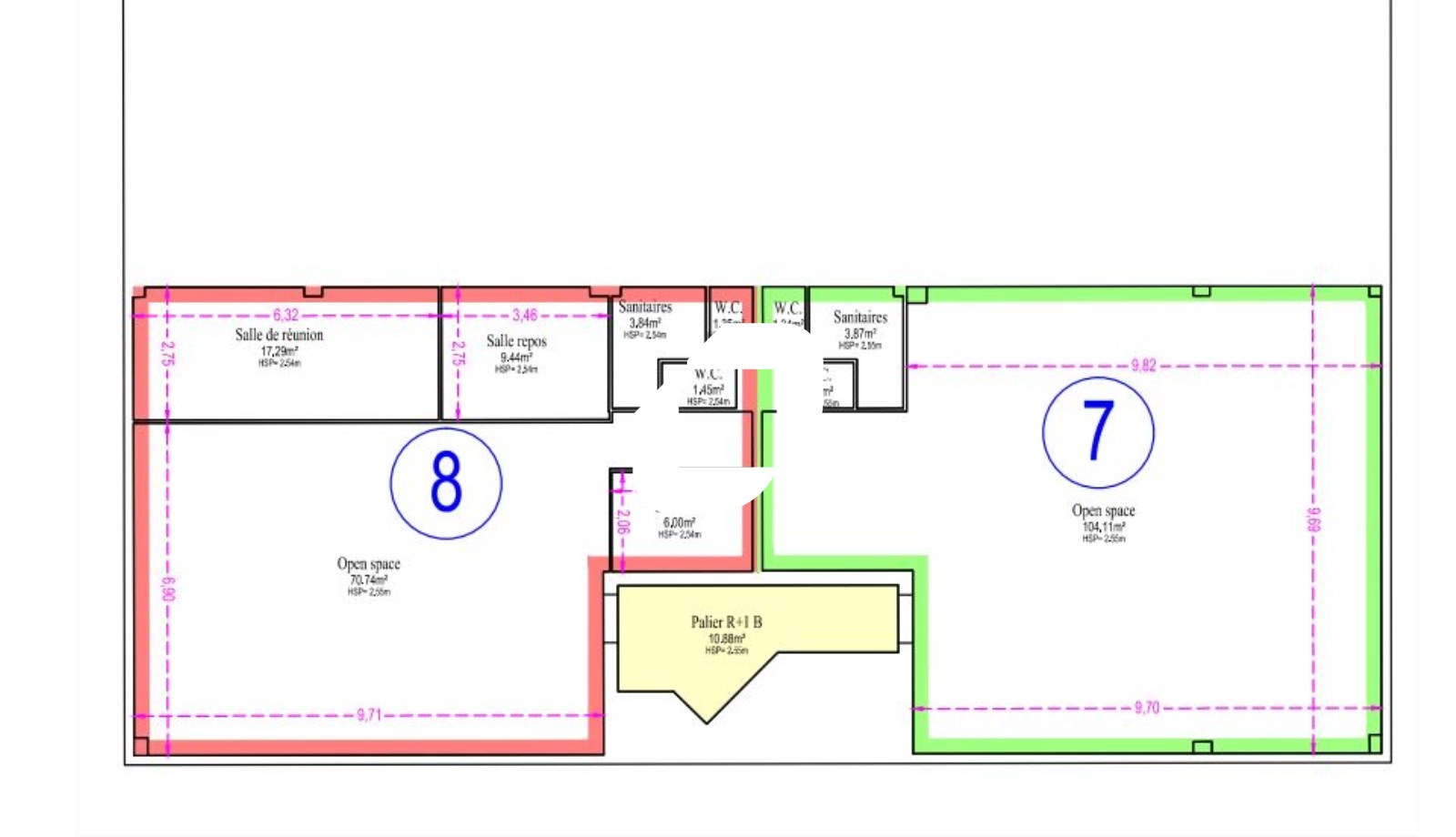
Immprove vous propose des bureaux à la location au 1er étage sur le même palier.
Proche rocade EST route de PARIS (A811), avec 3 places de parkings hors places visiteurs.
Espace ouvert, salle de réunion et salle de repos. Chauffage réversible, coin kitchenette, douche et sanitaire. Immeuble raccordé à la fibre. Travaux à prévoir.
Surface totale
Nature
Divisibilité
Etat des locaux
110 m²
Bureaux
Non
Travaux à prévoir
Prix & Conditions
Loyer :
109 € /m²/an (HT/HC)
999 € /mois (HT/HC)
11 990 € /an (HT/HC)
Dépôt de garantie :
2 mois de loyer
Prestations & équipements du bien
Les espaces de travail
Fibre optique . Travaux à prévoir : Moquette, peinture
Open Space
Sanitaires privatifs
Faux plafonds
Le confort au quotidien
Locaux lumineux
Moquette
Sécurité du site
Accès sécurisé par badge
Prestations spécifiques
Chauffage électrique
Autres
Petite Copropriété de 8 lots
Pièce pour baie de brassage
Prise RJ45
Répartition & surfaces des espaces
Tableau des divisibilités
| Type | Étage | Surface | Loyer (€/m²/an HT HC) |
Charges (€/m²/an HT HC) |
|---|---|---|---|---|
| Bureaux | 110 m² | 109.09 | 100.00 |
Performance énergétique du bien (DPE)


Informations non contractuelles
Localisation & accès
Transports en commun à proximité
75
Accès routier
Rocade Est A811
A11
Adresses
approximatives
Adresses
précises
Nos nouveaux biens qui pourraient vous intéresser
Bureaux - 2 967.60m²
PARIS (75002)
PARIS (75002)
284 337.50€/mois HT HC
Disponibilité : 30 juin 2027
Surface : 2 967.60 m²
Bureaux - 362.35m²
PARIS (75016)
PARIS (75016)
Prix sur demande
Disponibilité : 1 mois après accord
Surface : 362.35 m²
Bureaux - 348.02m²
BIEVRES (91570)
BIEVRES (91570)
3 480.00€/mois HT HC
Disponibilité : 1er juillet 2026
Surface : 348.02 m²
Les entrepreneurs ayant consulté cette offre ont aussi consulté celles ci
Bureaux - 348.02m²
BIEVRES (91570)
BIEVRES (91570)
3 480.00€/mois HT HC
Disponibilité : 1er juillet 2026
Surface : 348.02 m²
Bureaux - 288.28m²
BIEVRES (91570)
BIEVRES (91570)
2 880.00€/mois HT HC
Disponibilité : 1er juillet 2026
Surface : 288.28 m²
Bureaux et Activités - 4 645.22m² Divisibles à partir de 249.90 m²
VILLIERS SUR MARNE (94350)
VILLIERS SUR MARNE (94350)
54 180.00€/mois HT HC
Disponibilité : Immédiate
Surface : divisibles à partir de 249.90 m²
Bureaux - 447m²
MOUSSY LE NEUF (77230)
MOUSSY LE NEUF (77230)
4 097.50€/mois HT HC
Disponibilité : Immédiate
Surface : 447 m²