Retour
Disponibilité Immédiate
À Louer Bureaux 1 678 m² MARCQ EN BAROEUL (59700)
Ajouter au comparateur
Vous souhaitez faciliter votre recherche ?
Créez un compte
Présentation du bien
Immprove vous propose un bâtiment de bureaux indépendant d’environ 1.600 m² à louer, idéalement situé dans le secteur de la Pilaterie. Emplacement stratégique, à proximité immédiate de la Voie Rapide Urbaine et des autoroutes A22, A1 et A23. Gare Lille Flandres en 10 min. Les bureaux, d’environ 1.318 m², disposent de 2 portes sectionnelles, ainsi que d’un entrepôt de 360 m² doté d’une 3ème porte sectionnelle. L’ensemble est situé sur un terrain clôturé de 3.066 m². 32 places de parking. Idéal pour implanter votre showroom dans un secteur regroupant de nombreuses entreprises du bâtiment, très prisé pour le B2B. Disponibilité immédiate.
Surface totale
Nature
Divisibilité
Etat des locaux
1 678 m²
Bureaux
Non
Bon état
Prix & Conditions
Loyer :
95 € /m²/an (HT/HC)
13 284 € /mois (HT/HC)
159 410 € /an (HT/HC)
Impôt foncier :
10.41
Dépôt de garantie :
3 mois de loyer HT HC
Prestations & équipements du bien
Les espaces de travail
Fibre optique . Accueil
Bureaux cloisonnés
Salle de réunion
Espace détente
Cuisine
Locaux rationnels et modulables
Décloisonnement possible
Plinthes périphériques
Câblage informatique et téléphonique
Le confort au quotidien
Climatisation réversible
Locaux lumineux
Moquette
Les accès
Accès PMR
Portail d'accès
Porte sectionnelle
Sécurité du site
Site clos
Interphone
Accès sécurisé par badge
SAS d'entrée
Visiophone
Prestations spécifiques
Chauffage gaz et électrique
Autres
Sanitaires
Possibilités de normes E.R.P.
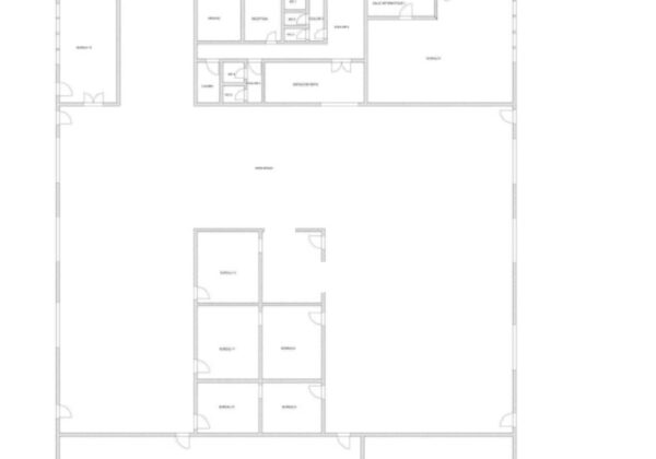
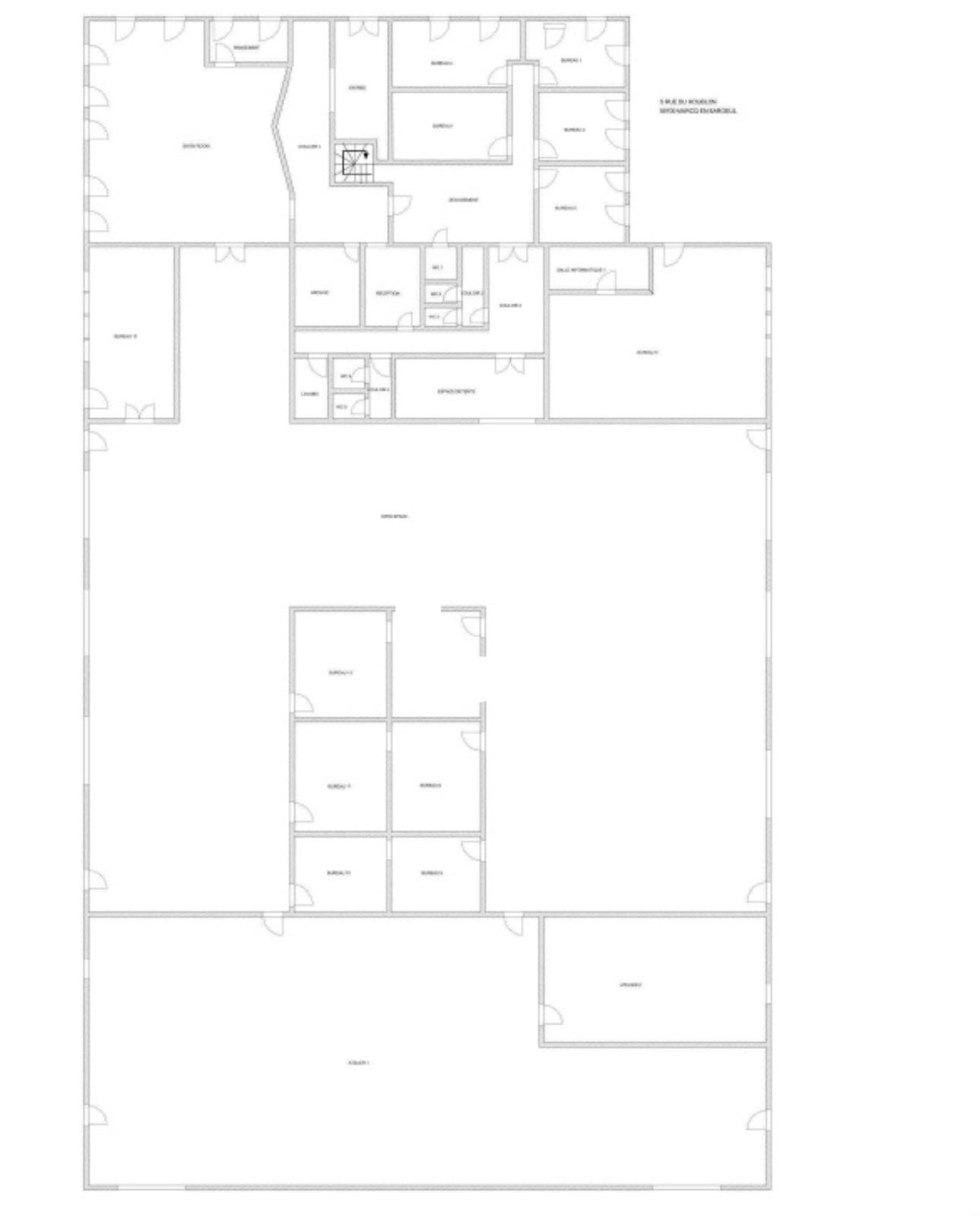
Répartition & surfaces des espaces
Tableau des divisibilités
| Type | Étage | Surface | Loyer (€/m²/an HT HC) |
Charges (€/m²/an HT HC) |
|---|---|---|---|---|
| Bureaux | 1 678 m² | 95.35 | 4.10 |
Performance énergétique du bien (DPE)


Informations non contractuelles
Localisation & accès
Transports en commun à proximité
Gare Lille Flandres à 10 minutes en voiture
15
Accès routier
A22 à proximité immédiate
[@logo439]
Adresses
approximatives
Adresses
précises
Nos nouveaux biens qui pourraient vous intéresser
Bureaux - 849m² Divisibles à partir de 254 m²
MARCQ EN BAROEUL (59700)
MARCQ EN BAROEUL (59700)
3 640.00€/mois HT HC
Disponibilité : Immédiate
Surface : divisibles à partir de 254 m²
Bureaux - 700m² Divisibles à partir de 350 m²
MARCQ EN BAROEUL (59700)
MARCQ EN BAROEUL (59700)
8 458.33€/mois HT HC
Disponibilité : Immédiate
Surface : divisibles à partir de 350 m²
Bureaux - 484m² Divisibles à partir de 134 m²
MARCQ EN BAROEUL (59700)
MARCQ EN BAROEUL (59700)
4 666.67€/mois HT HC
Disponibilité : Immédiate
Surface : divisibles à partir de 134 m²
Bureaux - 210m²
MARCQ EN BAROEUL (59700)
MARCQ EN BAROEUL (59700)
2 362.50€/mois HT HC
Disponibilité : Immédiate
Surface : 210 m²
Les entrepreneurs ayant consulté cette offre ont aussi consulté celles ci
Bureaux - 103m²
NOISY LE GRAND (93160)
NOISY LE GRAND (93160)
1 258.75€/mois HT HC
Disponibilité : Immédiate
Surface : 103 m²
Bureaux - 175m² Divisibles à partir de 68 m²
STRASBOURG (67000)
STRASBOURG (67000)
1 800.01€/mois HT HC
Disponibilité : Immédiate
Surface : divisibles à partir de 68 m²