Retour
Disponibilité Immédiate
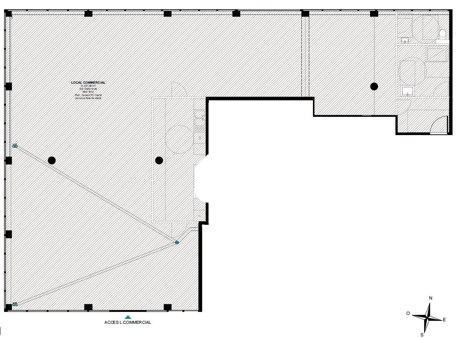
À Acheter ou à Louer Bureaux et Locaux Commerciaux 227.86 m² ROUTE DU PETIT RHIN STRASBOURG (67000)
Ajouter au comparateur
Vous souhaitez faciliter votre recherche ?
Créez un compte
Présentation du bien
IMMPROVE vous propose des bureaux ou locaux commerciaux de 228 m² à louer ou à vendre en rdc à Strasbourg, dans le nouveau quartier Starlette, situé aux Deux Rives à Strasbourg. Les locaux sont livrés bruts fluides en attente et peuvent convenir à des activités de services ou de commerce de proximité. Le secteur est accessible par Tram et longe les quais réaménagés donnant sur des promenades arborées. Le secteur est en fort développement avec de nombreuses constructions en cours.
Surface totale
Nature
Divisibilité
Etat des locaux
227.86 m²
Bureaux et Locaux Commerciaux
Non
Neuf
Prix & Conditions
Loyer :
135 € /m²/an (HT/HC)
2 565 € /mois (HT/HC)
30 780 € /an (HT/HC)
Vente :
500 307 € (HD)
2 195.68 € /m² (HD)
Dépôt de garantie :
3 mois de loyer HT HC
Conditions location :
Loyer progressif possible selon durée d'engagement
Prestations & équipements du bien
Autres
Locaux livrés bruts, fluides en attente
Nombreuses vitrines
Idéal pour professions libérales, commerces de proximité ou services
Loyer progressif possible selon durée d'engagement
Répartition & surfaces des espaces
Tableau des divisibilités
| Type | Étage | Surface | Loyer (€/m²/an HT HC) |
Charges (€/m²/an HT HC) |
Prix achat (€/m² HT HC) |
Charges (achat) (€/m² HT HC) |
|---|---|---|---|---|---|---|
| Locaux Commerciaux | Rez-de-Chaussée | 228 m² | 135.00 | Prix sur demande | 2 194.33 | Prix sur demande |
Performance énergétique du bien (DPE)


Informations non contractuelles
Localisation & accès
Transports en commun à proximité
Ligne G
Accès routier
N4 - Neudorf
Ligne D
Adresses
approximatives
Adresses
précises
Nos nouveaux biens qui pourraient vous intéresser
Bureaux et Locaux Commerciaux - 107.35m²
COIGNIERES (78310)
COIGNIERES (78310)
Prix sur demande
Disponibilité : Immédiate
Surface : 107.35 m²
Bureaux et Locaux Commerciaux - 1 050.82m² Divisibles à partir de 84.79 m²
MEZE (34140)
MEZE (34140)
Prix sur demande
Disponibilité : A convenir
Surface : divisibles à partir de 84.79 m²
Bureaux et Locaux Commerciaux - 1 391m² Divisibles à partir de 1 031 m²
PARIS (75009)
PARIS (75009)
Prix sur demande
Disponibilité : Immédiate
Surface : divisibles à partir de 1 031 m²
Bureaux et Locaux Commerciaux - 330.10m²
PARIS (75005)
PARIS (75005)
Prix sur demande
Disponibilité : Après accord
Surface : 330.10 m²
Les entrepreneurs ayant consulté cette offre ont aussi consulté celles ci
Bureaux et Locaux Commerciaux - 107.35m²
COIGNIERES (78310)
COIGNIERES (78310)
Prix sur demande
Disponibilité : Immédiate
Surface : 107.35 m²
Bureaux et Locaux Commerciaux - 1 050.82m² Divisibles à partir de 84.79 m²
MEZE (34140)
MEZE (34140)
Prix sur demande
Disponibilité : A convenir
Surface : divisibles à partir de 84.79 m²
Bureaux et Locaux Commerciaux - 66.65m²
PARIS (75015)
PARIS (75015)
Prix sur demande
Disponibilité : Immédiate
Surface : 66.65 m²
Bureaux et Locaux Commerciaux - 2 226.41m² Divisibles à partir de 18.33 m²
MERIGNAC (33700)
MERIGNAC (33700)
Prix sur demande
Disponibilité : Immédiate
Surface : divisibles à partir de 18.33 m²