Retour
Disponibilité Immédiate
À Louer Bureaux 850 m² 32 RUE DE L INDUSTRIE ILLKIRCH GRAFFENSTADEN (67400)
Ajouter au comparateur
Vous souhaitez faciliter votre recherche ?
Créez un compte
Présentation du bien
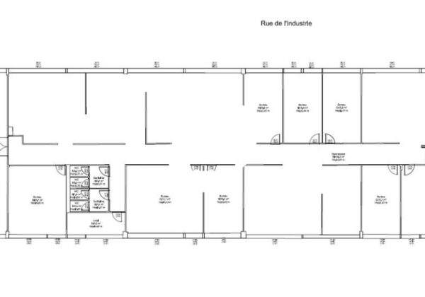
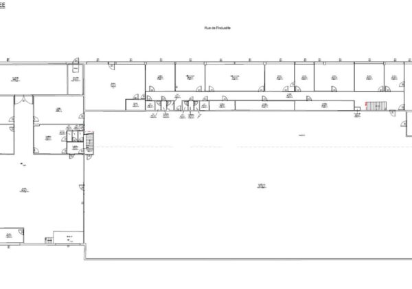
IMMPROVE vous propose à la location à Illkirch Graffenstaden 850 m² de bureaux au 1er étage. Emplacement stratégique, espaces lumineux et modernes, idéal pour votre entreprise. Ces locaux sont idéalement situés sur la rue de l'Industrie à proximité d'un arrêt de tramway.
Surface totale
Nature
Divisibilité
Etat des locaux
850 m²
Bureaux
Non
Bon état
Prix & Conditions
Loyer :
116 € /m²/an (HT/HC)
8 216 € /mois (HT/HC)
98 600 € /an (HT/HC)
Impôt foncier :
8000.00
Dépôt de garantie :
3 mois de loyer HT HC
Prestations & équipements du bien
Les espaces de travail
Bureaux cloisonnés et open space
SAS d'accueil en RDC
Faux plafonds avec luminaires encastrés
Eclairage Leds
Le confort au quotidien
Climatisation réversible + chauffage gaz
Autres
Bâtiment de 2002
Fenêtres à double vitrage avec stores
Goulottes périphériques
Sol béton
Sanitaires hommes & femmes
Répartition & surfaces des espaces
Tableau des divisibilités
| Type | Étage | Surface | Loyer (€/m²/an HT HC) |
Charges (€/m²/an HT HC) |
|---|---|---|---|---|
| Bureaux | 1er étage | 850 m² | 116.47 | 2 500.00 |
Performance énergétique du bien (DPE)


Informations non contractuelles
Localisation & accès
Transports en commun à proximité
2
Accès routier
A35 - Sortie 5 Parc d'Innovation
Ligne A
Adresses
approximatives
Adresses
précises
Nos nouveaux biens qui pourraient vous intéresser
Bureaux - 243m²
ILLKIRCH GRAFFENSTADEN (67400)
ILLKIRCH GRAFFENSTADEN (67400)
1 822.50€/mois HT HC
Disponibilité : Immédiate
Surface : 243 m²
Bureaux - 125m²
ILLKIRCH GRAFFENSTADEN (67400)
ILLKIRCH GRAFFENSTADEN (67400)
1 302.08€/mois HT HC
Disponibilité : Immédiate
Surface : 125 m²
Bureaux - 2 201m²
ILLKIRCH GRAFFENSTADEN (67400)
ILLKIRCH GRAFFENSTADEN (67400)
22 010.00€/mois HT HC
Disponibilité : Immédiate
Surface : 2 201 m²
Bureaux - 3 125m²
ILLKIRCH GRAFFENSTADEN (67400)
ILLKIRCH GRAFFENSTADEN (67400)
28 645.83€/mois HT HC
Disponibilité : Immédiate
Surface : 3 125 m²
Les entrepreneurs ayant consulté cette offre ont aussi consulté celles ci
Bureaux - 348.02m²
BIEVRES (91570)
BIEVRES (91570)
3 480.00€/mois HT HC
Disponibilité : 1er juillet 2026
Surface : 348.02 m²
Bureaux - 288.28m²
BIEVRES (91570)
BIEVRES (91570)
2 880.00€/mois HT HC
Disponibilité : 1er juillet 2026
Surface : 288.28 m²
Bureaux et Activités - 4 645.22m² Divisibles à partir de 249.90 m²
VILLIERS SUR MARNE (94350)
VILLIERS SUR MARNE (94350)
54 180.00€/mois HT HC
Disponibilité : Immédiate
Surface : divisibles à partir de 249.90 m²
Bureaux - 447m²
MOUSSY LE NEUF (77230)
MOUSSY LE NEUF (77230)
4 097.50€/mois HT HC
Disponibilité : Immédiate
Surface : 447 m²