Retour
Bureaux - 1 128.36m² à Louer
. Façade en pierres agrafées
. Accès PMR
. Ascenseur
. PC sécurité
. Refait à neuf (103m²) : sol, moquette, peinture, dalles faux plafond et éclairage LED)
. Espace ouvert
. Bureaux cloisonnés
Bureaux - 1 128.36m² à Louer
LE BRITANNIA - BOULEVARD EUGENE DERUELLE LYON (69003)
DESCRIPTION
Immprove vous propose plusieurs surfaces de bureaux à louer, lumineux, situés dans l'immeuble "Le Britannia" au cœur de la Part-Dieu, 3ème arrondissement de Lyon. Proche des transports en commun (bus, tramway, métro) et de la gare Part-Dieu, ces surfaces offre une accessibilité optimale.
En savoir plus
. Immeuble ancien. Façade en pierres agrafées
. Accès PMR
. Ascenseur
. PC sécurité
. Refait à neuf (103m²) : sol, moquette, peinture, dalles faux plafond et éclairage LED)
. Espace ouvert
. Bureaux cloisonnés
Consommations énergétiques


Informations non contractuelles
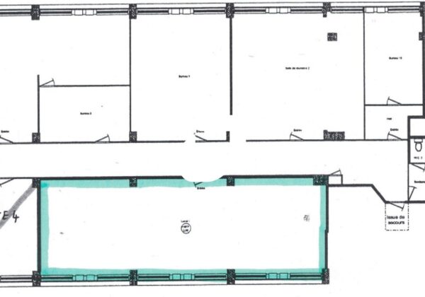
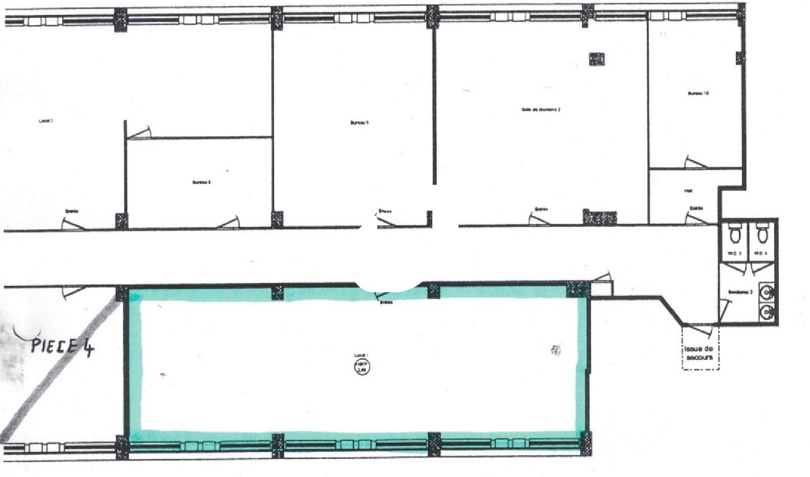
Tableau des divisibilités
| Type | Étage | Surface | Loyer (€/m²/an HT HC) |
Charges (€/m²/an HT HC) |
|---|---|---|---|---|
| Bureaux | 7ème étage | 33 m² | 150.00 | 60.00 |
| Bureaux | 11ème étage | 386 m² | 125.00 | 60.00 |
| Bureaux | 3ème étage | 103 m² | 150.00 | 60.00 |
| Bureaux | 3ème étage | 235 m² | 150.00 | 60.00 |
| Bureaux | 3ème étage | 267 m² | 125.00 | 60.00 |
| Parkings | 1 200.00 | Prix sur demande | ||
| Bureaux | 5ème étage | 104 m² | 150.00 | 65.00 |
Caractéristiques
. Provision taxe foncière parking : 120 €/U/an HT
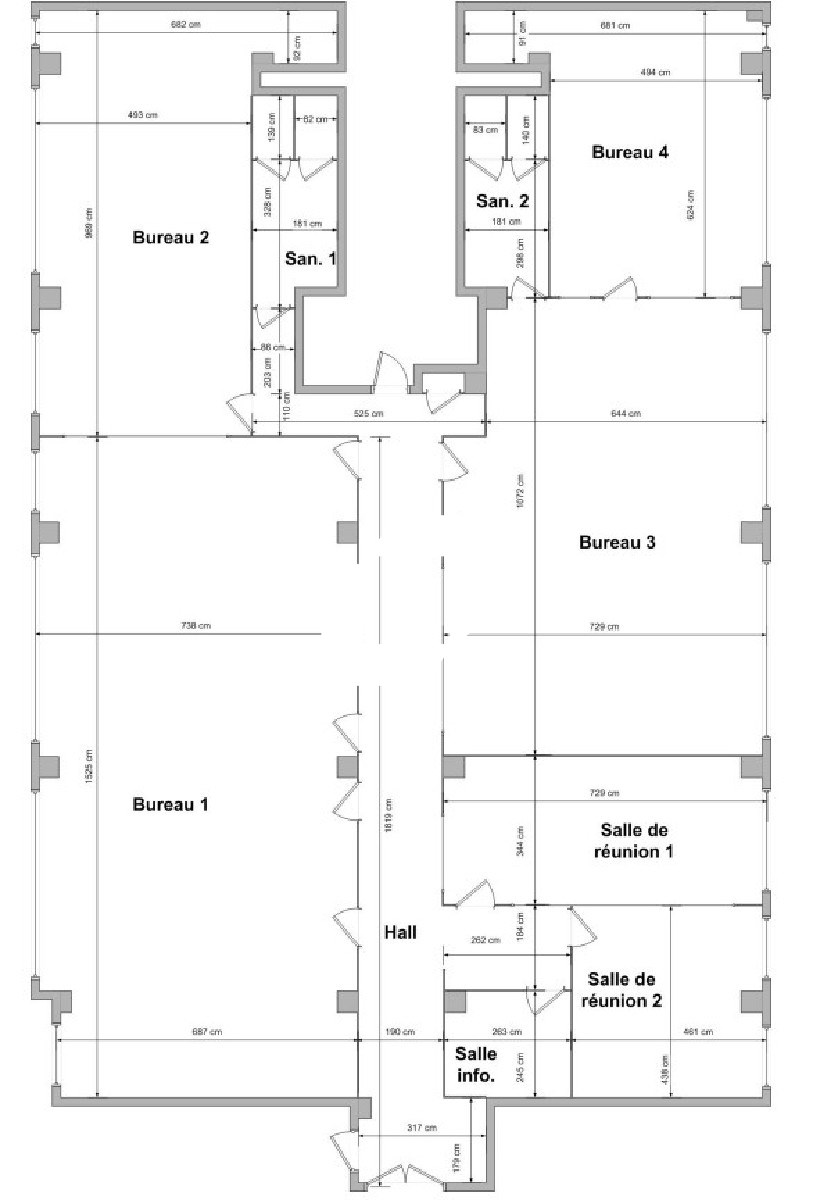
- Surface 1 128.36 m²
- Etat des locaux Bon état
- Nbre Parking 25
Adresses
approximatives
Adresses
précises
Les entrepreneurs ayant consulté cette offre ont aussi consulté celles ci
Les services Immprove
Une gamme complète de services qui facilitent vos démarches et destinée à satisfaire vos attentes