Retour
Bureaux - 2 078m² à Louer
. Relamping LED extérieur
. Installation de mobilier (tables, chaises) sur les espaces verts et dans certains patios
. Création d’un local vélo
. Création d’un nouveau local à déchet pour faciliter le tri
. Réfection des marquages au sol
. Reprise des bordures et de l’enrobé
. Des stationnements libres dans le parc offrant 560 places . Gardiennage
. Vidéosurveillance
. Ascenseur
. Parties communes rénovées récemment
. Espace ouvert
. Locaux lumineux
. Double exposition
. Patio commun rénové
. Sanitaires privatifs selon les lots
. Climatisation réversible
. Faux plafonds
. Sol PVC
. Carrelage
. Plinthes périphériques
. Chauffage/climatisation type gainable (PAC air/air)
Bureaux - 2 078m² à Louer
MILEWAY PARKS - RUE DES VERGERS LIMONEST (69760)
DESCRIPTION
Au sein du parc d’activité MILEWAY d’une superficie d’environ 24 500 m² répartis sur de 6 bâtiments, IMMPROVE vous propose à la location près de 2 078 m² de bureaux divisibles à partir de 154 m². Entièrement rénovés cette année, ces lots offrent un cadre de travail moderne et adapté à vos besoins.
En savoir plus
. Réfection de la signalétique générale. Relamping LED extérieur
. Installation de mobilier (tables, chaises) sur les espaces verts et dans certains patios
. Création d’un local vélo
. Création d’un nouveau local à déchet pour faciliter le tri
. Réfection des marquages au sol
. Reprise des bordures et de l’enrobé
. Des stationnements libres dans le parc offrant 560 places . Gardiennage
. Vidéosurveillance
. Ascenseur
. Parties communes rénovées récemment
. Espace ouvert
. Locaux lumineux
. Double exposition
. Patio commun rénové
. Sanitaires privatifs selon les lots
. Climatisation réversible
. Faux plafonds
. Sol PVC
. Carrelage
. Plinthes périphériques
. Chauffage/climatisation type gainable (PAC air/air)
Consommations énergétiques


Informations non contractuelles
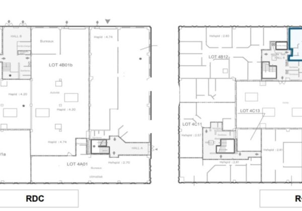
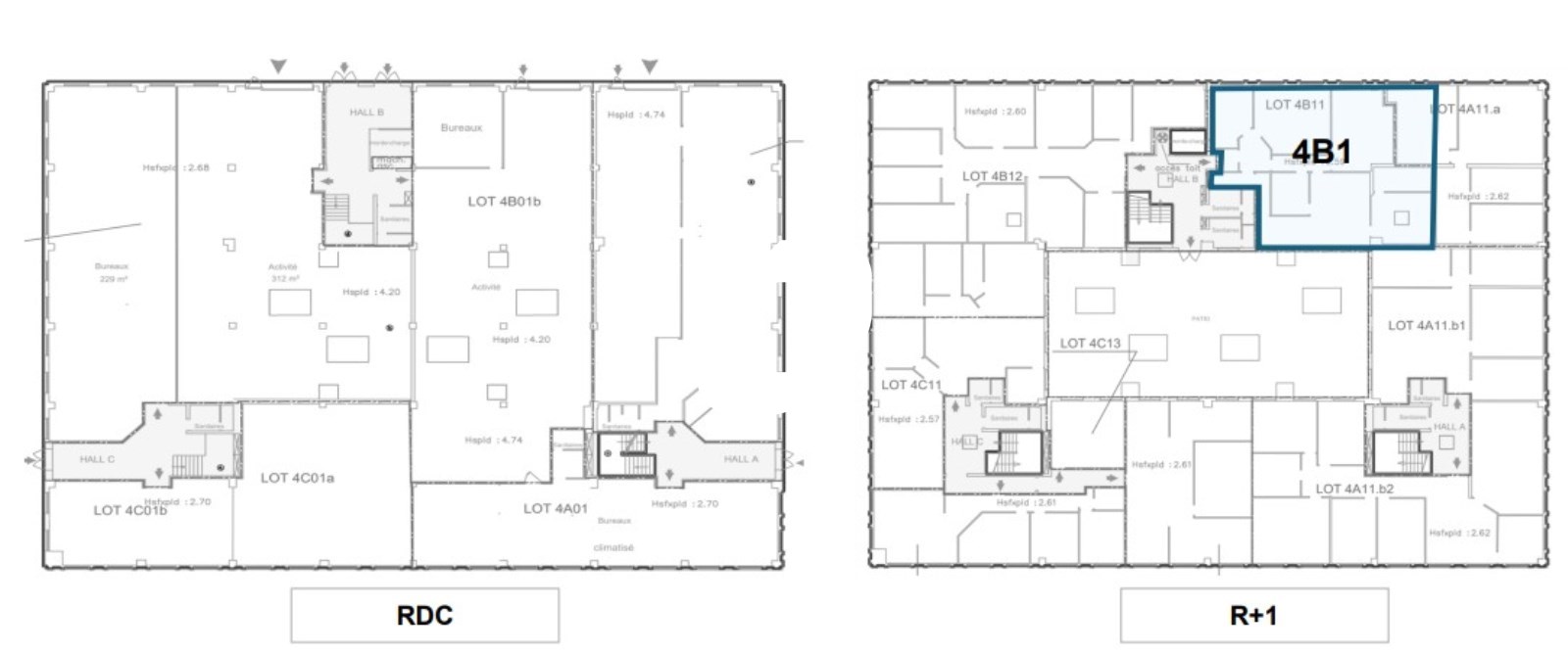
Tableau des divisibilités
| Type | Étage | Surface | Loyer (€/m²/an HT HC) |
Charges (€/m²/an HT HC) |
|---|---|---|---|---|
| Bureaux | 1er étage | 154 m² | 147.00 | 25.91 |
| Bureaux | 1er étage | 225 m² | 147.00 | 25.91 |
| Bureaux | 1er étage | 461 m² | 147.00 | 25.91 |
| Bureaux | 1er étage | 284 m² | 147.00 | 24.28 |
| Bureaux | 1er étage | 229 m² | 147.00 | 24.28 |
| Bureaux | 1er étage | 725 m² | 147.00 | 24.28 |
Caractéristiques
Nombreuses places de parking extérieures en foisonnement en accès libre, incluses dans le loyer des bureaux
- Surface 2 078 m²
- Etat des locaux Rénové
Adresses
approximatives
Adresses
précises
Nos nouveaux biens qui pourraient vous intéresser
Bureaux - 1 082m² Divisibles à partir de 151 m²
à Louer
LIMONEST (69760)
Voir le bien
1 600.00€/mois HT HC
Les entrepreneurs ayant consulté cette offre ont aussi consulté celles ci
Les services Immprove
Une gamme complète de services qui facilitent vos démarches et destinée à satisfaire vos attentes