Retour
Disponibilité Immédiate
À Acheter ou à Louer Bureaux 567 m² PARIS (75010)
Ajouter au comparateur
Vous souhaitez faciliter votre recherche ?
Créez un compte
Présentation du bien
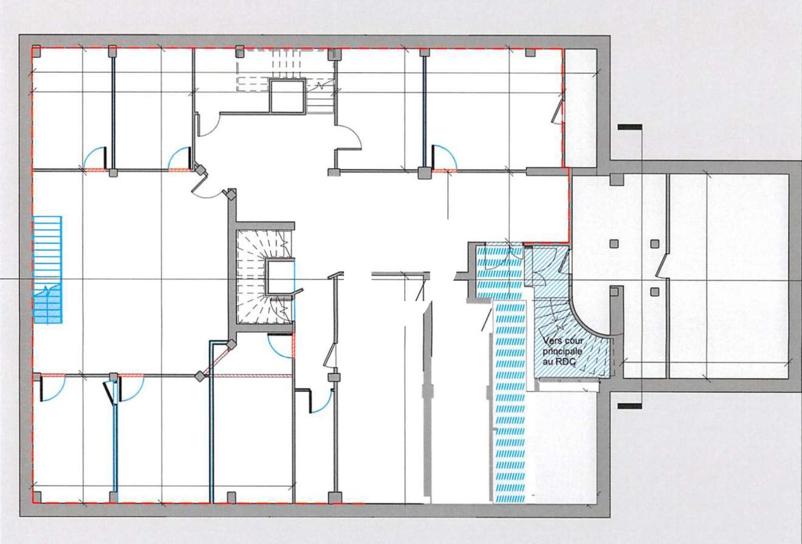
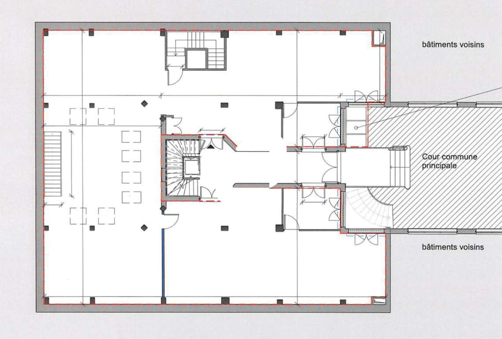
Cœur 10ème - Dans un bel immeuble de bureaux, IMMPROVE vous propose à la location une surface de bureaux de 548 m² répartie en 299 m² au RDC et 251 m² au sous-sol.
Surface totale
Nature
Divisibilité
Etat des locaux
567 m²
Bureaux
Non
Bon état
Prix & Conditions
Loyer :
544 € /m²/an (HT/HC)
25 704 € /mois (HT/HC)
308 448 € /an (HT/HC)
Vente :
4 999 999 € (HD)
8 818.34 € /m² (HD)
Impôt foncier :
11140.00
Taxe bureaux :
14148
Dépôt de garantie :
3 mois de loyer HT HC
Conditions location :
- Caution bancaire : 6 mois
Prestations & équipements du bien
Les espaces de travail
Fibre optique
Câblage informatique . Accueil
Espace ouvert
Bureaux cloisonnés
Salle de réunion
Cuisine
Sécurité du site
Gardien
Contrôle d'accès
Prestations spécifiques
Chauffage électrique
- Caution bancaire : 6 mois
Répartition & surfaces des espaces
Tableau des divisibilités
| Type | Étage | Surface | Loyer (€/m²/an HT HC) |
Charges (€/m²/an HT HC) |
Prix achat (€/m² HT HC) |
Charges (achat) (€/m² HT HC) |
|---|---|---|---|---|---|---|
| Bureaux | Sous-Sol | 268 m² | 544.00 | 65.00 | 8 818.34 | Prix sur demande |
| Bureaux | Rez-de-Chaussée | 299 m² | 544.00 | 65.00 | 8 818.34 | Prix sur demande |
Performance énergétique du bien (DPE)


Informations non contractuelles
Localisation & accès
Transports en commun à proximité
SNCF gare de Paris-Est
Gare de l'Est
Gare du Nord (TRAIN-H, TRAIN-K, TRAIN-RER D, TRAIN-C17, TRAIN-RER B)
26
45
43
39
32
Adresses
approximatives
Adresses
précises
Nos nouveaux biens qui pourraient vous intéresser
Les entrepreneurs ayant consulté cette offre ont aussi consulté celles ci
Bureaux - 168m²
SAINTE FOY LES LYON (69110)
SAINTE FOY LES LYON (69110)
Prix sur demande
Disponibilité : Immédiate
Surface : 168 m²
Bureaux - 380m²
VIGNEUX DE BRETAGNE (44360)
VIGNEUX DE BRETAGNE (44360)
Prix sur demande
Disponibilité : A convenir
Surface : 380 m²
Bureaux - 295m²
BOULOGNE BILLANCOURT (92100)
BOULOGNE BILLANCOURT (92100)
Prix sur demande
Disponibilité : Immédiate
Surface : 295 m²