Retour
Disponibilité JUIN 2026
À Louer Bureaux 570 m² divisibles à partir de 190 m² PARIS (75012)
Ajouter au comparateur
Vous souhaitez faciliter votre recherche ?
Créez un compte
Présentation du bien
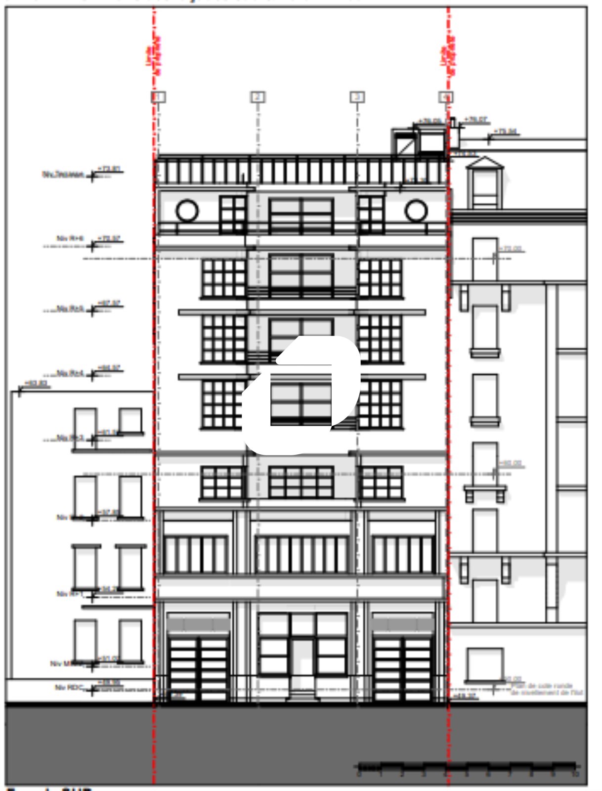
À deux pas de la Place de la Nation, Immprove vous propose à la location un immeuble de bureaux entièrement rénové.
Chaque plateau d’environ 190 m² bénéficie d’une terrasse privative idéale pour les moments de détente ou les échanges informels entre collaborateurs.
L’immeuble, récemment surélevé, offre des espaces de travail neufs, lumineux et modulables.
Disponibles courant 2026, ces bureaux représentent une opportunité unique sur ce secteur particulièrement recherché.
Surface totale
Nature
Divisibilité
Etat des locaux
570 m²
Bureaux
Oui à partir de 190 m²
Neuf
Prix & Conditions
Loyer :
570 € /m²/an (HT/HC)
9 025 € /mois (HT/HC)
108 300 € /an (HT/HC)
Divisibles à partir de 190 m²
Taxe bureaux :
23
Dépôt de garantie :
3 mois de loyer HT HC
Prestations & équipements du bien
Les espaces de travail
Immeuble récemment rénové et surélevé
Neuf sur la partie surélevée
Rénové sur l'ensemble du reste de l'immeuble
Open Space
Bureaux cloisonnés
Salle de réunion
Espace détente
Local technique
Pré-câblage informatique et téléphonique
Cuisine
Le confort au quotidien
Climatisation réversible
Locaux traversants et lumineux
Terrasse privative
Balcons aux 3, 4 et 5
Sortie de secours aux 3,4,5
Sécurité du site
Digicode / Interphone
Accessibilité
Ascenseur PMR
Ascenseur privatif au 4eme
Ascenseur commun
Autres
1 accès sur rue dédié aux bureaux
Suspicion d' ERP
3 Sanitaires par étage
Répartition & surfaces des espaces
Tableau des divisibilités
| Type | Étage | Surface | Loyer (€/m²/an HT HC) |
Charges (€/m²/an HT HC) |
|---|---|---|---|---|
| Bureaux | 3ème étage | 190 m² | 570.00 | Prix sur demande |
| Bureaux | 4ème étage | 190 m² | 570.00 | Prix sur demande |
| Bureaux | 5ème étage | 190 m² | 570.00 | Prix sur demande |
Performance énergétique du bien (DPE)


Informations non contractuelles
Localisation & accès
Transports en commun à proximité
29
71
26
56
86
215
351
57
46
Adresses
approximatives
Adresses
précises
Nos nouveaux biens qui pourraient vous intéresser
Bureaux - 761m² Divisibles à partir de 165 m²
PARIS (75010)
PARIS (75010)
8 338.00€/mois HT HC
Disponibilité : Après accord
Surface : divisibles à partir de 165 m²
Les entrepreneurs ayant consulté cette offre ont aussi consulté celles ci
Bureaux - 348.02m²
BIEVRES (91570)
BIEVRES (91570)
3 480.00€/mois HT HC
Disponibilité : 1er juillet 2026
Surface : 348.02 m²
Bureaux - 288.28m²
BIEVRES (91570)
BIEVRES (91570)
2 880.00€/mois HT HC
Disponibilité : 1er juillet 2026
Surface : 288.28 m²
Bureaux et Activités - 4 645.22m² Divisibles à partir de 249.90 m²
VILLIERS SUR MARNE (94350)
VILLIERS SUR MARNE (94350)
54 180.00€/mois HT HC
Disponibilité : Immédiate
Surface : divisibles à partir de 249.90 m²
Bureaux - 447m²
MOUSSY LE NEUF (77230)
MOUSSY LE NEUF (77230)
4 097.50€/mois HT HC
Disponibilité : Immédiate
Surface : 447 m²