Retour
Disponibilité Début mai
À Louer Bureaux 471 m² PARIS (75013)
Ajouter au comparateur
Vous souhaitez faciliter votre recherche ?
Créez un compte
Présentation du bien
A proximité du métro Glacière, Immprove vous propose à la location 2 belles surfaces de bureaux situées au sein d’un immeuble moderne aux prestations rares.
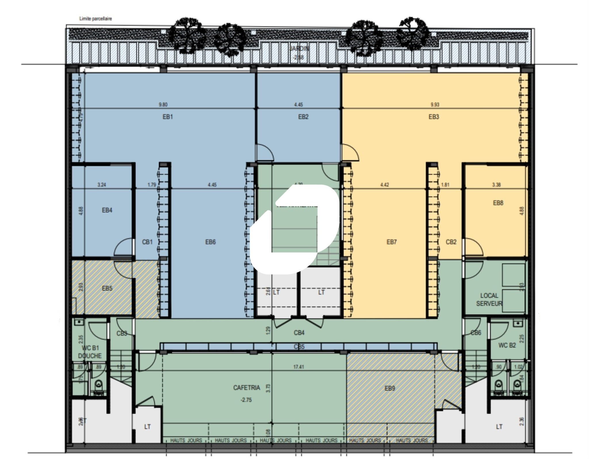
Le plateau de 471m² offre 290m² d’espaces privatifs et une quotepart de 181m² d’espaces partagés (terrasse Rooftop, cuisine, sanitaires, amphithéâtre, salles de réunion…). Proposant un cadre de travail calme, lumineux et arboré, ces bureaux sauront vous offrir un confort optimal. A visiter dès maintenant.
Surface totale
Nature
Divisibilité
Etat des locaux
471 m²
Bureaux
Non
Neuf
Prix & Conditions
Loyer :
436 € /m²/an (HT/HC)
17 113 € /mois (HT/HC)
205 356 € /an (HT/HC)
Taxe bureaux :
21.99
Dépôt de garantie :
3 mois de loyer HT HC
Prestations & équipements du bien
Le bâtiment
Immeuble moderne
Parties communes de qualité
Les espaces de travail
Fibre optique
Terrasse commune de 300m² . Neuf/Restructuré
Espace ouvert
Cuisine
Sanitaires privatifs
Câblage informatique et téléphonique
Le confort au quotidien
Climatisation
Locaux lumineux
Les accès
Accès PMR
Sécurité du site
Contrôle d'accès
Télésurveillance
Prestations spécifiques
Chauffage immeuble gaz
Autres
Sol béton ciré
Répartition & surfaces des espaces
Tableau des divisibilités
| Type | Étage | Surface | Loyer (€/m²/an HT HC) |
Charges (€/m²/an HT HC) |
|---|---|---|---|---|
| Bureaux | Rez-de-Jardin | 471 m² | 436.00 | 70.00 |
Performance énergétique du bien (DPE)


Informations non contractuelles
Localisation & accès
Transports en commun à proximité
21
64
59
83
57
67
Adresses
approximatives
Adresses
précises
Nos nouveaux biens qui pourraient vous intéresser
Bureaux - 362.35m²
PARIS (75016)
PARIS (75016)
Prix sur demande
Disponibilité : 1 mois après accord
Surface : 362.35 m²
Bureaux - 5 412m² Divisibles à partir de 500 m²
PARIS (75020)
PARIS (75020)
9 583.33€/mois HT HC
Disponibilité : Immédiate
Surface : divisibles à partir de 500 m²
Bureaux - 412m²
PARIS (75002)
PARIS (75002)
18 196.67€/mois HT HC
Disponibilité : 1er septembre 2026
Surface : 412 m²
Les entrepreneurs ayant consulté cette offre ont aussi consulté celles ci
Bureaux - 348.02m²
BIEVRES (91570)
BIEVRES (91570)
3 480.00€/mois HT HC
Disponibilité : 1er juillet 2026
Surface : 348.02 m²
Bureaux - 288.28m²
BIEVRES (91570)
BIEVRES (91570)
2 880.00€/mois HT HC
Disponibilité : 1er juillet 2026
Surface : 288.28 m²
Bureaux et Activités - 4 645.22m² Divisibles à partir de 249.90 m²
VILLIERS SUR MARNE (94350)
VILLIERS SUR MARNE (94350)
54 180.00€/mois HT HC
Disponibilité : Immédiate
Surface : divisibles à partir de 249.90 m²
Bureaux - 447m²
MOUSSY LE NEUF (77230)
MOUSSY LE NEUF (77230)
4 097.50€/mois HT HC
Disponibilité : Immédiate
Surface : 447 m²