Retour
Disponibilité Immédiate
À Louer Bureaux 546.30 m² HELIOS PARC ARIANE GUYANCOURT (78280)
Ajouter au comparateur
Vous souhaitez faciliter votre recherche ?
Créez un compte
Présentation du bien
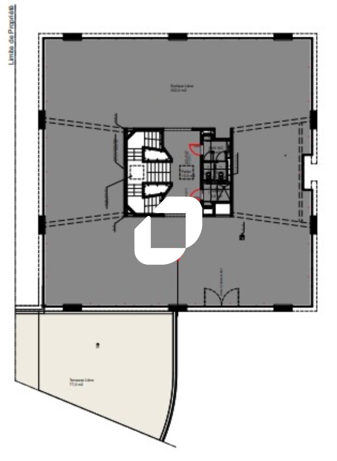
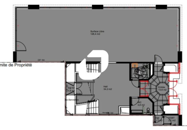
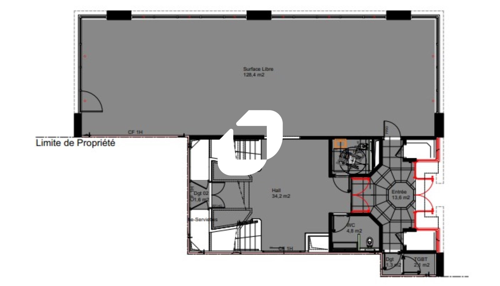
IMMPROVE vous propose à la location des locaux avec accès indépendants et terrasse privative, entièrement rénovés répartis entre le RDC et le 1er étage d’un immeuble mixte. Le RDC peut servir pour de l’activité légère ou du petit stockage.
Surface totale
Nature
Divisibilité
Etat des locaux
546.30 m²
Bureaux
Non
Rénové
Prix & Conditions
Loyer :
160 € /m²/an (HT/HC)
7 280 € /mois (HT/HC)
87 360 € /an (HT/HC)
Impôt foncier :
22.24
Taxe bureaux :
5.82
Dépôt de garantie :
3 mois de loyer HT HC
Prestations & équipements du bien
Le bâtiment
Immeuble moderne
Les espaces de travail
Fibre optique . Locaux rénovés
Accueil
Espace ouvert
Locaux rationnels et modulables
Sanitaires privatifs
Faux plafonds
Luminaires Led
Le confort au quotidien
Climatisation réversible
Locaux traversants et lumineux
Terrasse privative
Climatisation réversible
Les accès
Accès véhicules légers
Accès PMR
Accès privatif
Autres
Douche
Répartition & surfaces des espaces
Tableau des divisibilités
| Type | Étage | Surface | Loyer (€/m²/an HT HC) |
Charges (€/m²/an HT HC) |
|---|---|---|---|---|
| Parkings | 380.00 | Prix sur demande | ||
| Bureaux | Rez-de-Chaussée | 190 m² | 160.00 | 16.66 |
| Bureaux | 1er étage | 356 m² | 160.00 | 16.66 |
Performance énergétique du bien (DPE)


Informations non contractuelles
Localisation & accès
Transports en commun à proximité
Gare de Saint Quentin en Yvelines
Lignes 5151 et 6254
Accès routier
Autoroute A12
Nationales N10 et N12
Adresses
approximatives
Adresses
précises
Nos nouveaux biens qui pourraient vous intéresser
Bureaux - 1 731m² Divisibles à partir de 577 m²
GUYANCOURT (78280)
GUYANCOURT (78280)
7 933.75€/mois HT HC
Disponibilité : Immédiate
Surface : divisibles à partir de 577 m²
Bureaux - 1 700m² Divisibles à partir de 500 m²
GUYANCOURT (78280)
GUYANCOURT (78280)
28 000.00€/mois HT HC
Disponibilité : Immédiate
Surface : divisibles à partir de 500 m²
Les entrepreneurs ayant consulté cette offre ont aussi consulté celles ci
Bureaux - 105m²
SAINT JEAN DE VEDAS (34430)
SAINT JEAN DE VEDAS (34430)
1 458.36€/mois HT HC
Disponibilité : Immédiate
Surface : 105 m²
Bureaux - 330.50m²
PARIS (75013)
PARIS (75013)
10 642.50€/mois HT HC
Disponibilité : Immédiate
Surface : 330.50 m²