Retour
Disponibilité Immédiate
À Louer Bureaux 98 m² divisibles à partir de 12 m² RUE DE LA CROIX DE L'ORME MORAINVILLIERS (78630)
Ajouter au comparateur
Vous souhaitez faciliter votre recherche ?
Créez un compte
Présentation du bien
Immprove vous propose des bureaux entièrement rénovés dans un cadre verdoyant à la sortie de l’A13 et A14.
Surface totale
Nature
Divisibilité
Etat des locaux
98 m²
Bureaux
Oui à partir de 12 m²
Rénové
Prix & Conditions
Loyer :
312 € /m²/an (HT/HC)
312 € /mois (HT/HC)
3 744 € /an (HT/HC)
Divisibles à partir de 12 m²
Impôt foncier :
6.58
Taxe bureaux :
11.37
Dépôt de garantie :
3 mois de loyer HT HC
Conditions location :
EDF compris dans les charges
Prestations & équipements du bien
Le bâtiment
Immeuble moderne
Façade en bardage
Parties communes de qualité
Les espaces de travail
Locaux refaits à neuf
Bureaux cloisonnés
Salle de réunion
Le confort au quotidien
Sol PVC
Les accès
Accès privatif sur rue
Rampe de plain-pied
Prestations spécifiques
Chauffage électrique
Autres
Sanitaires
EDF compris dans les charges
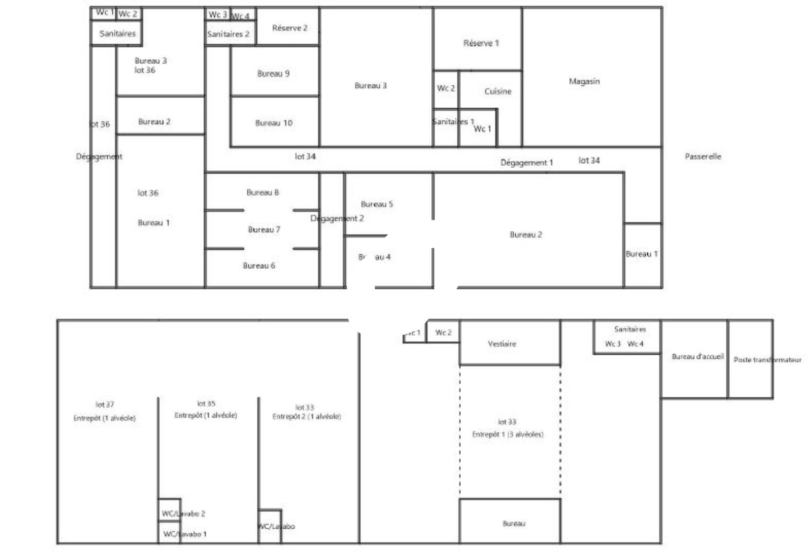
Répartition & surfaces des espaces
Tableau des divisibilités
| Type | Étage | Surface | Loyer (€/m²/an HT HC) |
Charges (€/m²/an HT HC) |
|---|---|---|---|---|
| Bureaux | 1er étage | 12 m² | 312.21 | 30.80 |
| Bureaux | 1er étage | 38 m² | 106.43 | 30.61 |
| Bureaux | 1er étage | 49 m² | 123.71 | 30.63 |
Performance énergétique du bien (DPE)


Informations non contractuelles
Localisation & accès
Transports en commun à proximité
A
Accès routier
Autoroutes A13 et A14
Nationale N13
Adresses
approximatives
Adresses
précises
Nos nouveaux biens qui pourraient vous intéresser
Bureaux - 125m²
MORAINVILLIERS (78630)
MORAINVILLIERS (78630)
937.50€/mois HT HC
Disponibilité : Immédiate
Surface : 125 m²
Les entrepreneurs ayant consulté cette offre ont aussi consulté celles ci
Bureaux - 83.60m²
BUSSY SAINT GEORGES (77600)
BUSSY SAINT GEORGES (77600)
1 288.00€/mois HT HC
Disponibilité : Immédiate
Surface : 83.60 m²
Bureaux - 6 934m² Divisibles à partir de 173 m²
LYON (69009)
LYON (69009)
Prix sur demande
Disponibilité : Selon les lots – nous consulter
Surface : divisibles à partir de 173 m²