Retour
Disponibilité Immédiate
À Acheter Bureaux et Activités 791.22 m² divisibles à partir de 251.93 m² RUE AMBROISE CROIZAT PALAISEAU (91120)
Ajouter au comparateur
Vous souhaitez faciliter votre recherche ?
Créez un compte
Présentation du bien
À 10 minutes de la gare RER et TGV de Massy-Palaiseau par liaison bus, dans un immeuble de 1989 en R+4 avec ascenseur, Immprove vous propose plusieurs surfaces de bureaux à partir de 264m² et une surface d'activité de 512m² à la vente. Certaines surfaces sont climatisées, bénéficies de sanitaires privatifs ou commun.
Surface totale
Nature
Divisibilité
Etat des locaux
791.22 m²
Bureaux et Activités
Oui à partir de 251.93 m²
Etat d’usage
Prix & Conditions
Vente :
1 700.00 € (HD)
1 700.00 € /m² (HD)
Divisibles à partir de 251.93 m²
Impôt foncier :
22.24
Taxe bureaux :
12.03
Prestations & équipements du bien
Les espaces de travail
Fibre optique . Interphone + digicode
Hall d'accueil
Mix de cloisonnement amovible et cloisons pleines
Le confort au quotidien
Façade en mur rideau et parement carrelage
Climatisation
Les accès
Site clos avec fermeture par 2 portails automatiques
Accessibilité
Ascenseur
Extérieur
27 parkings au total
Autres
Immeuble en structure béton
Faux plafond
Convecteurs électriques d'appoint
Locaux de stockage léger en RDJ
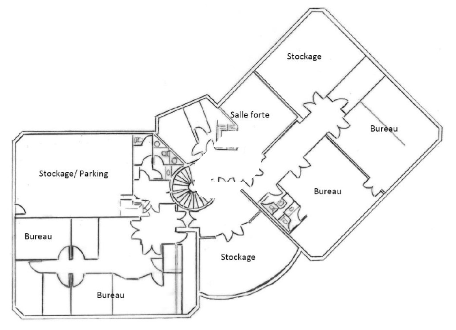
Répartition & surfaces des espaces
Tableau des divisibilités
| Type | Étage | Surface | Prix achat (€/m² HT HC) |
Charges (achat) (€/m² HT HC) |
|---|---|---|---|---|
| Activités | Rez-de-Jardin | 287 m² | 1 700.00 | Prix sur demande |
| Bureaux | 1er étage | 252 m² | 1 700.00 | Prix sur demande |
| Bureaux | 1er étage | 252 m² | 1 700.00 | Prix sur demande |
Performance énergétique du bien (DPE)


Informations non contractuelles
Localisation & accès
Transports en commun à proximité
199
Accès routier
Nationale N20 et N118
Autoroute A6 et A10
Adresses
approximatives
Adresses
précises
Nos nouveaux biens qui pourraient vous intéresser
Bureaux et Activités - 1 002m²
SAINT PATHUS (77178)
SAINT PATHUS (77178)
1 549 993.80€ HT HC
Disponibilité : Immédiate
Surface : 1 002 m²
Bureaux et Activités - 2 720m² Divisibles à partir de 316 m²
MORET LOING ET ORVANNE (77250)
MORET LOING ET ORVANNE (77250)
455 988.00€ HT HC
Disponibilité : 1er mars 2027
Surface : divisibles à partir de 316 m²
Bureaux et Activités - 6 900m²
REUIL EN BRIE (77260)
REUIL EN BRIE (77260)
0.00€ HT HC
Disponibilité : Immédiate
Surface : 6 900 m²
Bureaux et Activités - 1 447m²
CLICHY (92110)
CLICHY (92110)
Prix sur demande
Disponibilité : Nous consulter
Surface : 1 447 m²
Les entrepreneurs ayant consulté cette offre ont aussi consulté celles ci
Bureaux et Activités - 1 002m²
SAINT PATHUS (77178)
SAINT PATHUS (77178)
1 549 993.80€ HT HC
Disponibilité : Immédiate
Surface : 1 002 m²
Bureaux et Activités - 128m²
VOISINS LE BRETONNEUX (78960)
VOISINS LE BRETONNEUX (78960)
Prix sur demande
Disponibilité : Immédiate
Surface : 128 m²
Bureaux et Activités - 2 720m² Divisibles à partir de 316 m²
MORET LOING ET ORVANNE (77250)
MORET LOING ET ORVANNE (77250)
455 988.00€ HT HC
Disponibilité : 1er mars 2027
Surface : divisibles à partir de 316 m²
Bureaux et Activités - 6 900m²
REUIL EN BRIE (77260)
REUIL EN BRIE (77260)
0.00€ HT HC
Disponibilité : Immédiate
Surface : 6 900 m²