Retour
Disponibilité Immédiate
À Louer Bureaux 456 m² NANTERRE (92000)
Ajouter au comparateur
Vous souhaitez faciliter votre recherche ?
Créez un compte
Présentation du bien
Bâtiment indépendant atypique de 456m² alliant bureaux et zone stockage ou petite activité. A proximité immédiate de Puteaux /La Défense , dans un
quartier en pleine mutation, proche du Transilien (L et U) et du tram T2. Rénové récemment avec goût, lumineux et fonctionnel. Parkings disponibles en sus. Disponibilité immédiate !
Surface totale
Nature
Divisibilité
Etat des locaux
456 m²
Bureaux
Non
Bon état
Prix & Conditions
Loyer :
211 € /m²/an (HT/HC)
1 242 € /mois (HT/HC)
14 910 € /an (HT/HC)
Impôt foncier :
5380.00
Taxe bureaux :
16
Dépôt de garantie :
3 mois de loyer HT HC
Prestations & équipements du bien
Les espaces de travail
Accueil
Locaux en bon état
Salle de réunion
Prestations spécifiques
Chauffage électrique
Autres
Accès indépendant
Contrôle d’accès
Poêle bois
Configuration mixte
Cloisonnement
Faux plafond
Câblage RJ45 cat 5
Plancher chêne massif
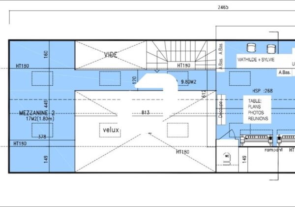
Répartition & surfaces des espaces
Tableau des divisibilités
| Type | Étage | Surface | Loyer (€/m²/an HT HC) |
Charges (€/m²/an HT HC) |
|---|---|---|---|---|
| Parkings | 960.00 | Prix sur demande | ||
| Activités | Rez-de-Chaussée | 71 m² | 210.52 | 10.00 |
| Bureaux | Rez-de-Chaussée | 261 m² | 210.52 | 10.00 |
| Bureaux | Mezzanine | 124 m² | 210.52 | 10.00 |
Performance énergétique du bien (DPE)


Informations non contractuelles
Localisation & accès
Transports en commun à proximité
SNCF gare de Puteaux (TRAIN)
SNCF gare de Puteaux
258
158
141
360
BUS
Adresses
approximatives
Adresses
précises
Nos nouveaux biens qui pourraient vous intéresser
Bureaux - 1 258.65m² Divisibles à partir de 419.11 m²
NANTERRE (92000)
NANTERRE (92000)
9 625.00€/mois HT HC
Disponibilité : Immédiate
Surface : divisibles à partir de 419.11 m²
Bureaux - 2 758m² Divisibles à partir de 543 m²
NANTERRE (92000)
NANTERRE (92000)
17 647.50€/mois HT HC
Disponibilité : Immédiate
Surface : divisibles à partir de 543 m²
Bureaux - 5 395.40m² Divisibles à partir de 515.60 m²
NANTERRE (92000)
NANTERRE (92000)
7 525.00€/mois HT HC
Disponibilité : Immédiate
Surface : divisibles à partir de 515.60 m²
Les entrepreneurs ayant consulté cette offre ont aussi consulté celles ci
Bureaux - 348.02m²
BIEVRES (91570)
BIEVRES (91570)
3 480.00€/mois HT HC
Disponibilité : 1er juillet 2026
Surface : 348.02 m²
Bureaux - 288.28m²
BIEVRES (91570)
BIEVRES (91570)
2 880.00€/mois HT HC
Disponibilité : 1er juillet 2026
Surface : 288.28 m²
Bureaux et Activités - 4 645.22m² Divisibles à partir de 249.90 m²
VILLIERS SUR MARNE (94350)
VILLIERS SUR MARNE (94350)
9 870.00€/mois HT HC
Disponibilité : Immédiate
Surface : divisibles à partir de 249.90 m²
Bureaux - 447m²
MOUSSY LE NEUF (77230)
MOUSSY LE NEUF (77230)
4 097.50€/mois HT HC
Disponibilité : Immédiate
Surface : 447 m²