À Louer Bureaux 772.10 m² divisibles à partir de 335.10 m² 47 - 49 RUE DE LA VANNE MONTROUGE (92120)
Présentation du bien
Prix & Conditions
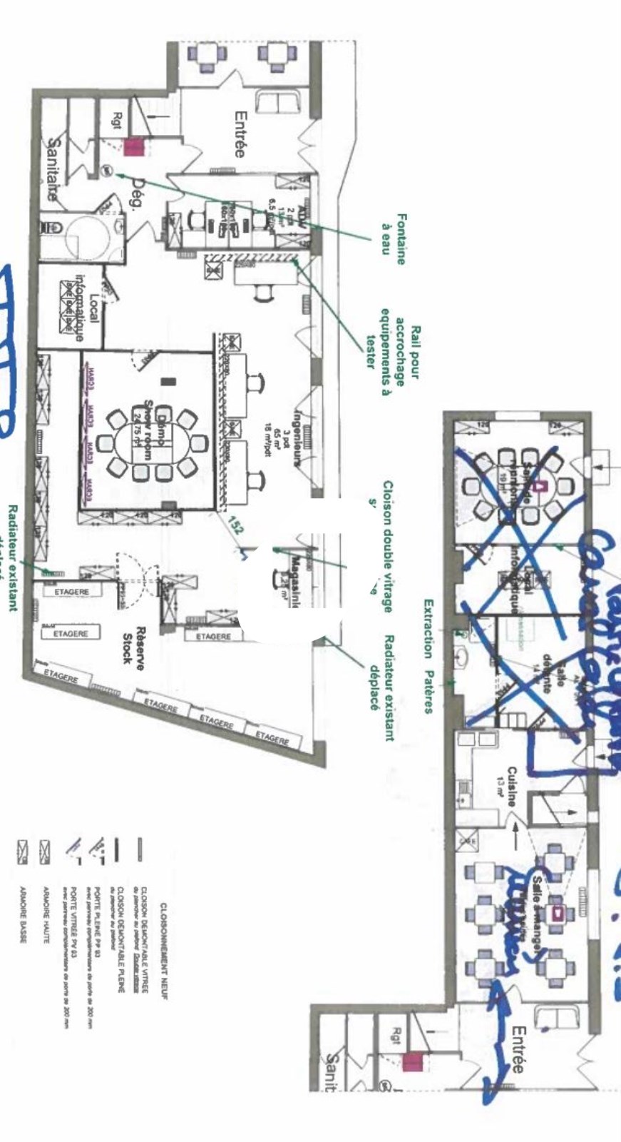
Prestations & équipements du bien
Immeuble restructuré de bureaux indépendants
Fibre optique
Cuisine et espace détente aménagé
Cloisonnement amovible
Sanitaires privatifs, dont un accessible aux PMR en rez de chaussée
Pré- câblage informatique
Cloisonnement amovible de type loft
Cuisine aménagée
Sol PVC imitation parquet
Climatisation réversible
Climatisation réversible en faux plafond
Sol parquet
terrasse privative d'une cinquantaine m²
Accès livraisons de plain pied par porte sectionnelle
Interphone / Digicode. Bâtiment D : RDC / 1er étage et Sous- sol de 493m² de surface utile pondérée
Bâtiment A sur rue : 335,1m² de bureaux au 3ème étage et dernier étage avec ascenseur
Parkings sous sol
Façade en pierre de taille
Entrée privative et sécurisée
Rez de chaussée à usage d'activité tertiaire
Faux plafond
Bureaux en excellent état
Sanitaires en parties privatives.
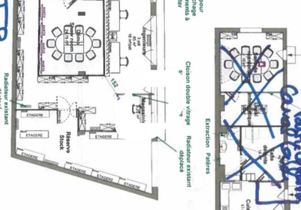
Répartition & surfaces des espaces
Tableau des divisibilités
| Type | Étage | Surface | Loyer (€/m²/an HT HC) |
Charges (€/m²/an HT HC) |
|---|---|---|---|---|
| Bureaux | 3ème étage | 335 m² | 284.32 | 35.81 |
| Bureaux | 437 m² | 185.52 | 24.54 | |
| Parkings | 1 200.00 | Prix sur demande |
Performance énergétique du bien (DPE)


Informations non contractuelles
Localisation & accès
Transports en commun à proximité
Adresses
approximatives
Adresses
précises
Nos nouveaux biens qui pourraient vous intéresser
MONTROUGE (92120)
MONTROUGE (92120)
MONTROUGE (92120)
Les entrepreneurs ayant consulté cette offre ont aussi consulté celles ci
BUSSY SAINT GEORGES (77600)
LYON (69009)