Retour
Disponibilité Immédiate
À Louer Bureaux 97 m² ISSY LES MOULINEAUX (92130)
Ajouter au comparateur
Vous souhaitez faciliter votre recherche ?
Créez un compte
Présentation du bien
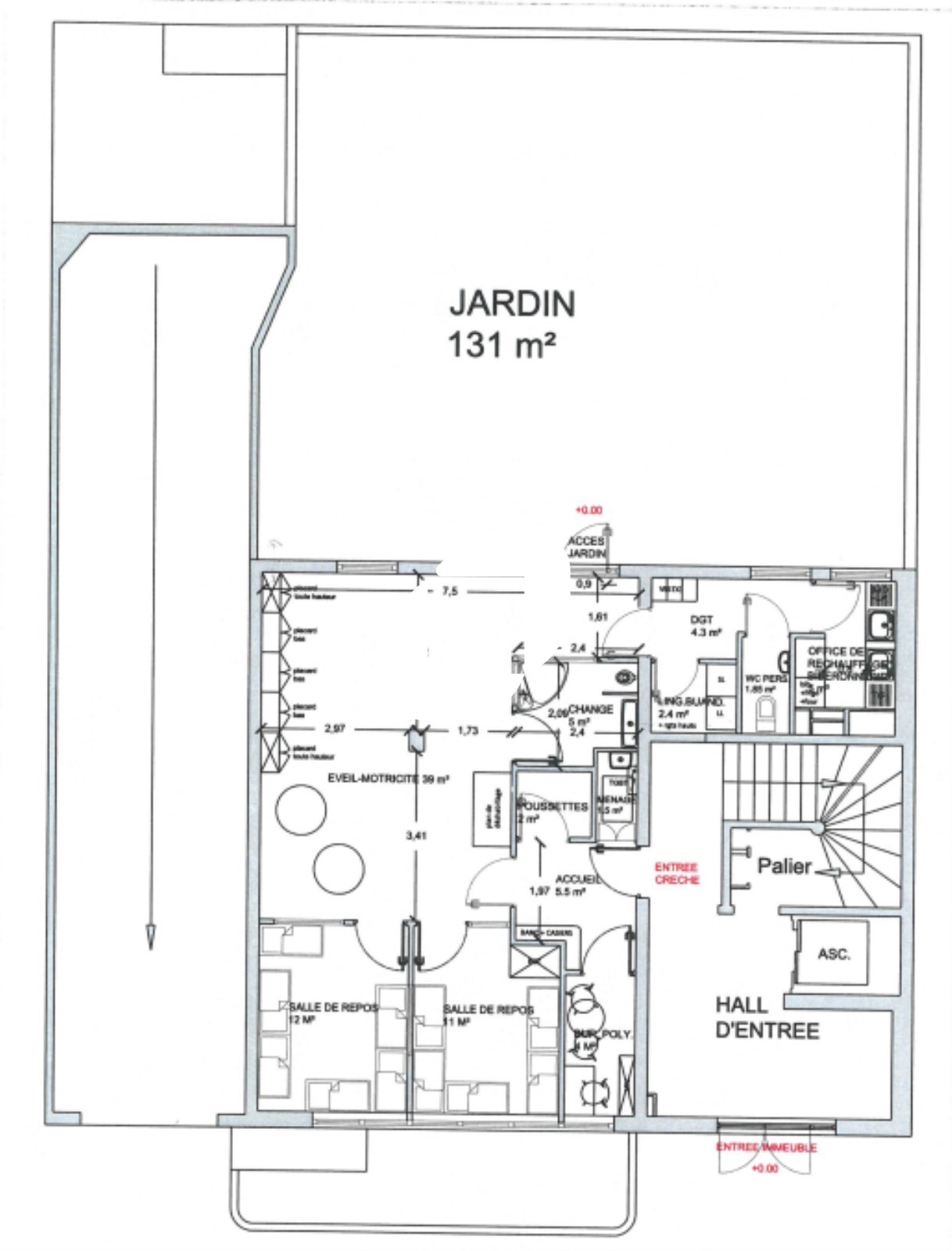
À proximité du RER A, dans un immeuble tertiaire moderne, IMMPROVE vous propose des bureaux ERP en RDC bénéficiant d'un accès à un grand jardin privatif. Des parkings sont disponibles.
Surface totale
Nature
Divisibilité
Etat des locaux
97 m²
Bureaux
Non
Rénové
Prix & Conditions
Loyer :
235 € /m²/an (HT/HC)
1 899 € /mois (HT/HC)
22 795 € /an (HT/HC)
Impôt foncier :
37.60
Taxe bureaux :
26.3
Dépôt de garantie :
3 mois de loyer HT HC
Conditions location :
Charges assurance 0.5€ u/ an HT
Prestations & équipements du bien
Le bâtiment
Immeuble moderne
Parties communes de bon standing
Les espaces de travail
Fibre optique - Bureaux en bon état anciennement loué à une crèche
Le confort au quotidien
Grand jardin privatif
Sécurité du site
Visiophone - Digicode
Accès sécurisé par badge
Accessibilité
Ascenseur
Autres
Environnement calme
ERP
Charges assurance 0.5€ u/ an HT
Répartition & surfaces des espaces
Tableau des divisibilités
| Type | Étage | Surface | Loyer (€/m²/an HT HC) |
Charges (€/m²/an HT HC) |
|---|---|---|---|---|
| Parkings | Sous-Sol | 1 200.00 | Prix sur demande | |
| Bureaux | Rez-de-Chaussée | 97 m² | 235.00 | 70.00 |
Performance énergétique du bien (DPE)


Informations non contractuelles
Localisation & accès
Transports en commun à proximité
C
Henry Lartigue
123
Adresses
approximatives
Adresses
précises
Nos nouveaux biens qui pourraient vous intéresser
Bureaux - 83m²
ISSY LES MOULINEAUX (92130)
ISSY LES MOULINEAUX (92130)
1 799.99€/mois HT HC
Disponibilité : Immédiate
Surface : 83 m²
Bureaux - 3 017.40m² Divisibles à partir de 116.30 m²
ISSY LES MOULINEAUX (92130)
ISSY LES MOULINEAUX (92130)
3 286.67€/mois HT HC
Disponibilité : Immédiate
Surface : divisibles à partir de 116.30 m²
Bureaux - 619.15m² Divisibles à partir de 91.59 m²
ISSY LES MOULINEAUX (92130)
ISSY LES MOULINEAUX (92130)
4 253.33€/mois HT HC
Disponibilité : Immédiate
Surface : divisibles à partir de 91.59 m²
Bureaux - 80m²
ISSY LES MOULINEAUX (92130)
ISSY LES MOULINEAUX (92130)
1 666.67€/mois HT HC
Disponibilité : Immédiate
Surface : 80 m²
Les entrepreneurs ayant consulté cette offre ont aussi consulté celles ci
Bureaux - 83.60m²
BUSSY SAINT GEORGES (77600)
BUSSY SAINT GEORGES (77600)
1 288.00€/mois HT HC
Disponibilité : Immédiate
Surface : 83.60 m²
Bureaux - 6 934m² Divisibles à partir de 173 m²
LYON (69009)
LYON (69009)
Prix sur demande
Disponibilité : Selon les lots – nous consulter
Surface : divisibles à partir de 173 m²