Retour
Disponibilité Immédiate
À Acheter ou à Louer Bureaux 2 052 m² divisibles à partir de 350 m² LEVALLOIS PERRET (92300)
Ajouter au comparateur
Vous souhaitez faciliter votre recherche ?
Créez un compte
Présentation du bien
À proximité de la gare "Clichy-Levallois", sur l'axe Victor Hugo, Immprove propose à la location des surfaces de bureaux rénovés dans un immeuble moderne et de bon standing. Cet emplacement stratégique, alliant accessibilité et confort, est idéal pour les entreprises recherchant un cadre de travail de qualité.
Surface totale
Nature
Divisibilité
Etat des locaux
2 052 m²
Bureaux
Oui à partir de 350 m²
Rénové
Prix & Conditions
Loyer :
310 € /m²/an (HT/HC)
9 041 € /mois (HT/HC)
108 500 € /an (HT/HC)
Divisibles à partir de 350 m²
Vente :
Prix sur demande
Divisibles à partir de 350 m²
Impôt foncier :
32.00
Taxe bureaux :
26.11
Conditions location :
Taxe additionnelle sur les parkings: 4,50 euros/m²/HT
Provisions pour travaux prévisionnels 20 euros/m²/HT
Provisions pour travaux prévisionnels 20 euros/m²/HT
Prestations & équipements du bien
Le bâtiment
Immeuble moderne
Les espaces de travail
Hall et parties communes rénovés en 2016
Fibre optique
Plateaux rénovés
Open space
Bureaux cloisonnés
Le confort au quotidien
Climatisation double flux neuve
Moquette
Sécurité du site
Accès sécurisé
Accessibilité
Trois batteries d'ascenseurs
Extérieur
Parkings en sous sol
Autres
Accès P.M.R.
Espace de restauration et de co-working au RDC
Surfaces lumineuses
Souplesse d'aménagement
Possibilité de diviser le 1er étage
Faux plafond
Sanitaires
Taxe additionnelle sur les parkings: 4,50 euros/m²/HT
Provisions pour travaux prévisionnels 20 euros/m²/HT
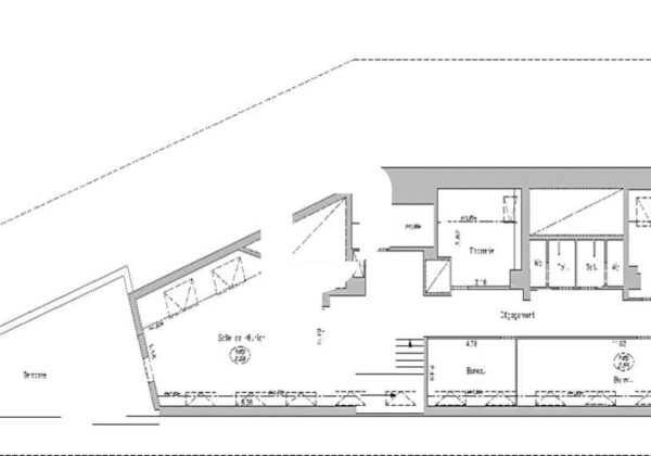
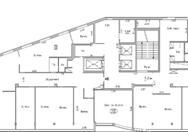
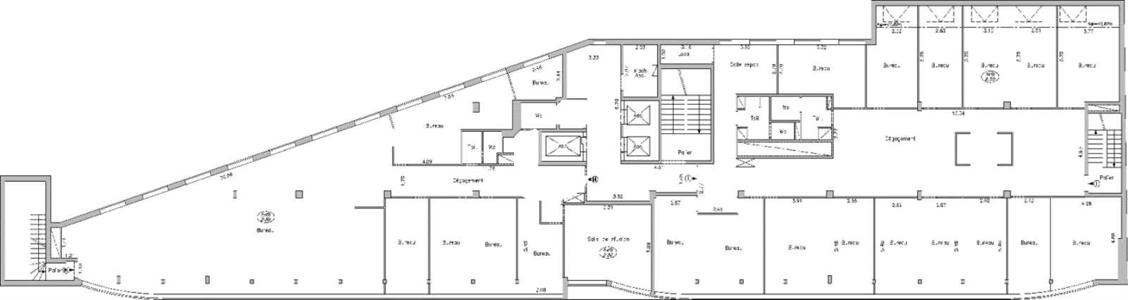
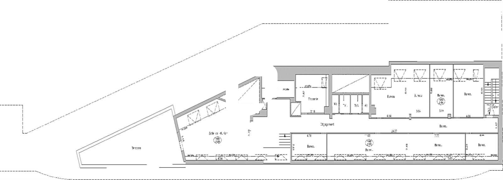
Répartition & surfaces des espaces
Tableau des divisibilités
| Type | Étage | Surface | Loyer (€/m²/an HT HC) |
Charges (€/m²/an HT HC) |
Prix achat (€/m² HT HC) |
Charges (achat) (€/m² HT HC) |
|---|---|---|---|---|---|---|
| Parkings | Sous-Sol | 1 200.00 | Prix sur demande | Prix sur demande | Prix sur demande | |
| Bureaux | 1er étage | 854 m² | 310.00 | 41.00 | Prix sur demande | Prix sur demande |
| Bureaux | 3ème étage | 476 m² | 310.00 | 41.00 | Prix sur demande | Prix sur demande |
| Bureaux | 4ème étage | 350 m² | 310.00 | 41.00 | Prix sur demande | Prix sur demande |
| Bureaux | 4ème étage | 372 m² | 310.00 | 41.00 | Prix sur demande | Prix sur demande |
Performance énergétique du bien (DPE)


Informations non contractuelles
Localisation & accès
Transports en commun à proximité
SNCF gare de Asnières-sur-Seine (TRAIN-L), Clichy - Levallois (TRAIN-L)
SNCF gare de Clichy-Levallois
274
165
Adresses
approximatives
Adresses
précises
Nos nouveaux biens qui pourraient vous intéresser
Bureaux - 100m²
LEVALLOIS PERRET (92300)
LEVALLOIS PERRET (92300)
Prix sur demande
Disponibilité : Immédiate
Surface : 100 m²
Bureaux - 723m² Divisibles à partir de 233 m²
LEVALLOIS PERRET (92300)
LEVALLOIS PERRET (92300)
Prix sur demande
Disponibilité : Immédiate
Surface : divisibles à partir de 233 m²
Bureaux - 166m²
LEVALLOIS PERRET (92300)
LEVALLOIS PERRET (92300)
Prix sur demande
Disponibilité : Immédiate
Surface : 166 m²
Bureaux - 681m² Divisibles à partir de 107 m²
LEVALLOIS PERRET (92300)
LEVALLOIS PERRET (92300)
Prix sur demande
Disponibilité : Immédiate
Surface : divisibles à partir de 107 m²
Les entrepreneurs ayant consulté cette offre ont aussi consulté celles ci
Bureaux - 168m²
SAINTE FOY LES LYON (69110)
SAINTE FOY LES LYON (69110)
Prix sur demande
Disponibilité : Immédiate
Surface : 168 m²
Bureaux - 380m²
VIGNEUX DE BRETAGNE (44360)
VIGNEUX DE BRETAGNE (44360)
Prix sur demande
Disponibilité : A convenir
Surface : 380 m²
Bureaux - 295m²
BOULOGNE BILLANCOURT (92100)
BOULOGNE BILLANCOURT (92100)
Prix sur demande
Disponibilité : Immédiate
Surface : 295 m²