Retour
15
Disponibilité Immédiate
À Louer Bureaux 1 262 m² divisibles à partir de 36 m² SEVRES (92310)
Ajouter au comparateur
Vous souhaitez faciliter votre recherche ?
Créez un compte
Présentation du bien
A proximité du Tram et du métro "Pont de Sèvres", IMMPROVE vous propose à la location des bureaux avec vue sur la Seine au sein d'un immeuble tertiaire de qualité. Les parties communes ont été rénovées et modernisées. Elles disposent d'une terrasse ainsi que de douches et vestiaires.
Surface totale
Nature
Divisibilité
Etat des locaux
1 262 m²
Bureaux
Oui à partir de 36 m²
Rénové
Prix & Conditions
Loyer :
215 € /m²/an (HT/HC)
645 € /mois (HT/HC)
7 740 € /an (HT/HC)
Divisibles à partir de 36 m²
Impôt foncier :
45.50
Taxe bureaux :
27.9
Quote-part RIE :
15.0000
Dépôt de garantie :
3 mois de loyer HT HC
Conditions location :
. Charges bureaux : hors fluide et assurance
. Taxe stationnement : 2,79 €/U/an
. Taxe stationnement : 2,79 €/U/an
Prestations & équipements du bien
Le bâtiment
Immeuble moderne et BREAM in USE
Les espaces de travail
Accueil venant de faire l'objet d'une rénovation
Fibre optique
Le confort au quotidien
Climatisation
Douches communes et vestiaires en cours de rénovation
Sécurité du site
Accès sécurisés
Accès sécurisé par badge/ interphone
Accessibilité
Triple batterie d'ascenseur
Prestations spécifiques
Chauffage
Extérieur
Parkings en sous-sol
Terrasse commune au RDC
Parking vélo (2 raques)
Parkings disponibles
Autres
Superviseur
Double vitrage
RIE à proximité
Capacitaire de 100 pers/niveau . Aménagement flexible
Convecteurs électriques
Faux plancher technique
Faux plafond
HSP de dalle à dalle de 2m90 / HSP du plancher technique au faux plafond de 2m48
Profondeur plateau de 18 m
. Charges bureaux : hors fluide et assurance
. Taxe stationnement : 2,79 €/U/an
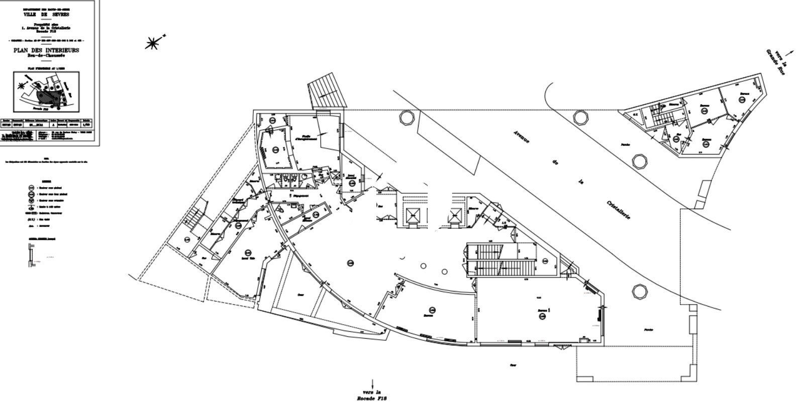
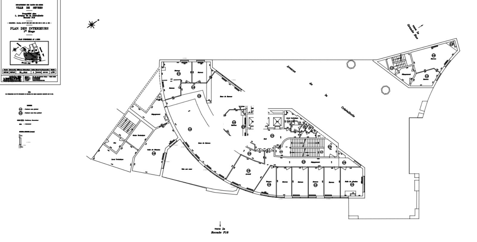
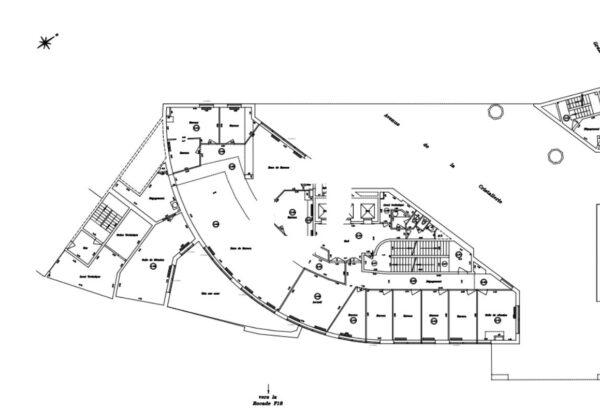
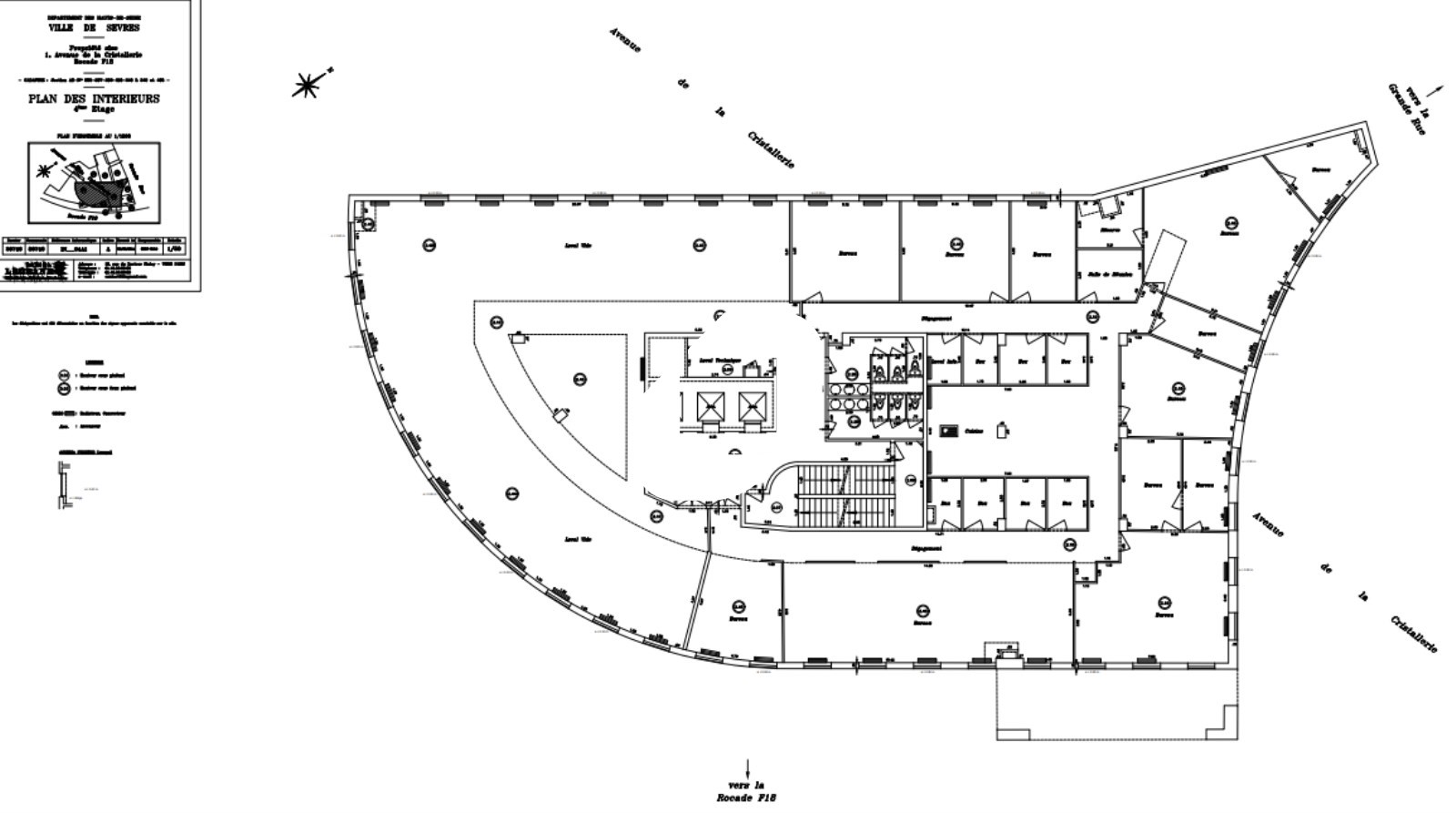
Répartition & surfaces des espaces
Tableau des divisibilités
| Type | Étage | Surface | Loyer (€/m²/an HT HC) |
Charges (€/m²/an HT HC) |
|---|---|---|---|---|
| Archives | Sous-Sol | 50 m² | 100.00 | Prix sur demande |
| Parkings | Sous-Sol | 1 000.00 | 22.00 | |
| Bureaux | Rez-de-Chaussée | 36 m² | 215.00 | 55.31 |
| Bureaux | 1er étage | 349 m² | 215.00 | 55.31 |
| Bureaux | 3ème étage | 877 m² | 215.00 | 55.31 |
Performance énergétique du bien (DPE)


Informations non contractuelles
Localisation & accès
Transports en commun à proximité
Accès routier
N10 et N118
Adresses
approximatives
Adresses
précises
Nos nouveaux biens qui pourraient vous intéresser
Bureaux - 187m² Divisibles à partir de 60 m²
SEVRES (92310)
SEVRES (92310)
663.45€/mois HT HC
Disponibilité : Immédiate
Surface : divisibles à partir de 60 m²
Les entrepreneurs ayant consulté cette offre ont aussi consulté celles ci
Bureaux - 348.02m²
BIEVRES (91570)
BIEVRES (91570)
3 480.00€/mois HT HC
Disponibilité : 1er juillet 2026
Surface : 348.02 m²
Bureaux - 288.28m²
BIEVRES (91570)
BIEVRES (91570)
2 880.00€/mois HT HC
Disponibilité : 1er juillet 2026
Surface : 288.28 m²
Bureaux et Activités - 4 645.22m² Divisibles à partir de 249.90 m²
VILLIERS SUR MARNE (94350)
VILLIERS SUR MARNE (94350)
9 870.00€/mois HT HC
Disponibilité : Immédiate
Surface : divisibles à partir de 249.90 m²
Bureaux - 447m²
MOUSSY LE NEUF (77230)
MOUSSY LE NEUF (77230)
4 097.50€/mois HT HC
Disponibilité : Immédiate
Surface : 447 m²