Retour
Disponibilité Immédiate
À Louer Bureaux 225 m² COURBEVOIE (92400)
Ajouter au comparateur
Vous souhaitez faciliter votre recherche ?
Créez un compte
Présentation du bien
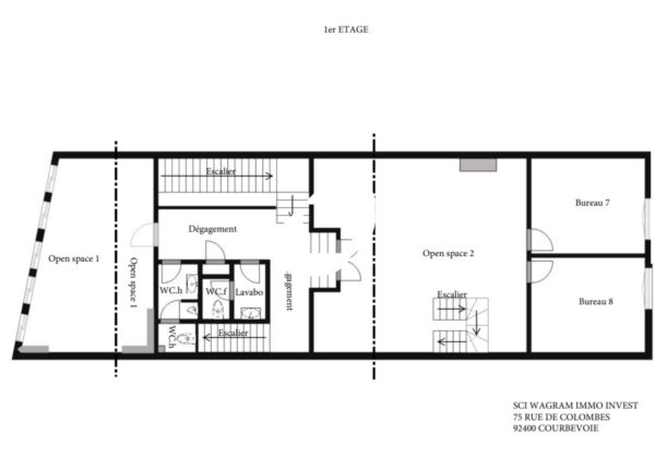
Rare sur Courbevoie ! IMMPROVE vous propose, 134 m² de bureaux à louer + espace de stockage en sous-sol ! Au sein d’un immeuble à taille humaine situé entre la gare de Bécon et celle de Courbevoie, plateau de bureaux disposé en open-space + 2 bureaux cloisonnés avec belle hauteur sous plafond. L’aménagement est modulable à votre convenance. En sous-sol accessible aux petites camionnettes, une surface de stockage saine et sécurisée. Disponible de suite !
Surface totale
Nature
Divisibilité
Etat des locaux
225 m²
Bureaux
Non
Bon état
Prix & Conditions
Loyer :
234 € /m²/an (HT/HC)
2 613 € /mois (HT/HC)
31 356 € /an (HT/HC)
Impôt foncier :
22.69
Taxe bureaux :
26.11
Dépôt de garantie :
3 mois de loyer HT HC
Conditions location :
espace de stockage/acti en sus en sous-sol accessible par camionnette de 91m² à 683€/mois HT
Prestations & équipements du bien
Le bâtiment
Immeuble récent
Les espaces de travail
Fibre optique
Bon état
Espace ouvert
Bureaux cloisonnés
Décloisonnement possible
Sécurité du site
Digicode
Interphone
Prestations spécifiques
Chauffage électrique
Autres
80 m² de stockage en sous-sol en sus. Accès camionnette possible
espace de stockage/acti en sus en sous-sol accessible par camionnette de 91m² à 683€/mois HT
Répartition & surfaces des espaces
Tableau des divisibilités
| Type | Étage | Surface | Loyer (€/m²/an HT HC) |
Charges (€/m²/an HT HC) |
|---|---|---|---|---|
| Parkings | Sous-Sol | 1 200.00 | Prix sur demande | |
| Stockage | Sous-Sol | 91 m² | 90.06 | Prix sur demande |
| Bureaux | R + 1 | 134 m² | 234.00 | 17.91 |
Performance énergétique du bien (DPE)


Informations non contractuelles
Localisation & accès
Transports en commun à proximité
SNCF gare de Courbevoie (TRAIN-L)
SNCF gare de Courbevoie
178
278
163
164
N152
Adresses
approximatives
Adresses
précises
Nos nouveaux biens qui pourraient vous intéresser
Bureaux - 500m² Divisibles à partir de 200 m²
COURBEVOIE (92400)
COURBEVOIE (92400)
5 166.67€/mois HT HC
Disponibilité : Immédiate
Surface : divisibles à partir de 200 m²
Bureaux - 500.10m² Divisibles à partir de 234.20 m²
COURBEVOIE (92400)
COURBEVOIE (92400)
5 829.83€/mois HT HC
Disponibilité : Immédiate
Surface : divisibles à partir de 234.20 m²
Les entrepreneurs ayant consulté cette offre ont aussi consulté celles ci
Bureaux - 83.60m²
BUSSY SAINT GEORGES (77600)
BUSSY SAINT GEORGES (77600)
1 288.00€/mois HT HC
Disponibilité : Immédiate
Surface : 83.60 m²
Bureaux - 6 934m² Divisibles à partir de 173 m²
LYON (69009)
LYON (69009)
Prix sur demande
Disponibilité : Selon les lots – nous consulter
Surface : divisibles à partir de 173 m²