Retour
Disponibilité Immédiate
À Louer Bureaux 100 m² COLOMBES (92700)
Ajouter au comparateur
Vous souhaitez faciliter votre recherche ?
Créez un compte
Présentation du bien
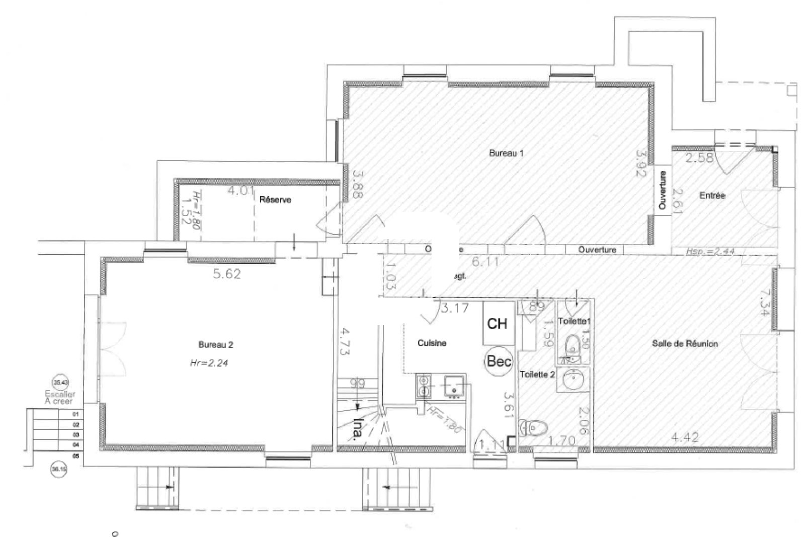
100m² de bureaux rénovés à louer proche de la Gare de Colombes (ligne J). En rez-de-chaussée avec double accès indépendant et sécurisés, la surface dispose d'un accueil, open space, coin kitchenette, possibilité de créer des bureaux cloisonnés. Jardin arboré accessible ainsi que deux places de parkings en sous sol.
Espace rationnel et efficace, accès P.M.R. envisageables. Le loyer est exonéré de TVA et faibles charges.
Surface totale
Nature
Divisibilité
Etat des locaux
100 m²
Bureaux
Non
Rénové
Prix & Conditions
Loyer :
250 € /m²/an (HT/HC)
2 083 € /mois (HT/HC)
24 999 € /an (HT/HC)
Impôt foncier :
15.00
Dépôt de garantie :
3 mois de loyer HT HC
Conditions location :
chauffage + électricité inclus dans les charges
Place parking en enfilade
Place parking en enfilade
Prestations & équipements du bien
Les espaces de travail
Rénové
Accueil
Espace ouvert
Locaux rationnels et modulables
Prises RJ45
Cuisine
Sanitaires privatifs
Le confort au quotidien
Locaux traversants
Prestations spécifiques
Chauffage central
Autres
Béton ciré
chauffage + électricité inclus dans les charges
Place parking en enfilade
Répartition & surfaces des espaces
Tableau des divisibilités
| Type | Étage | Surface | Loyer (€/m²/an HT HC) |
Charges (€/m²/an HT HC) |
|---|---|---|---|---|
| Parkings | Sous-Sol | 2 000.00 | Prix sur demande | |
| Bureaux | Rez-de-Chaussée | 100 m² | 250.00 | 20.00 |
Performance énergétique du bien (DPE)


Informations non contractuelles
Localisation & accès
Transports en commun à proximité
SNCF gare de Colombes (Ligne L), Les Vallées (Ligne L)
SNCF gare de Colombes
566
167
Adresses
approximatives
Adresses
précises
Nos nouveaux biens qui pourraient vous intéresser
Bureaux - 237m² Divisibles à partir de 87 m²
COLOMBES (92700)
COLOMBES (92700)
1 377.50€/mois HT HC
Disponibilité : Immédiate
Surface : divisibles à partir de 87 m²
Les entrepreneurs ayant consulté cette offre ont aussi consulté celles ci
Bureaux - 348.02m²
BIEVRES (91570)
BIEVRES (91570)
3 480.00€/mois HT HC
Disponibilité : 1er juillet 2026
Surface : 348.02 m²
Bureaux - 288.28m²
BIEVRES (91570)
BIEVRES (91570)
2 880.00€/mois HT HC
Disponibilité : 1er juillet 2026
Surface : 288.28 m²
Bureaux et Activités - 4 645.22m² Divisibles à partir de 249.90 m²
VILLIERS SUR MARNE (94350)
VILLIERS SUR MARNE (94350)
9 870.00€/mois HT HC
Disponibilité : Immédiate
Surface : divisibles à partir de 249.90 m²
Bureaux - 447m²
MOUSSY LE NEUF (77230)
MOUSSY LE NEUF (77230)
4 097.50€/mois HT HC
Disponibilité : Immédiate
Surface : 447 m²