Retour
Bureaux - 2 882m²
Bureaux - 2 882m²
à Louer
@WORK - 6 RUE AMPERE SAINT DENIS (93200)
DESCRIPTION
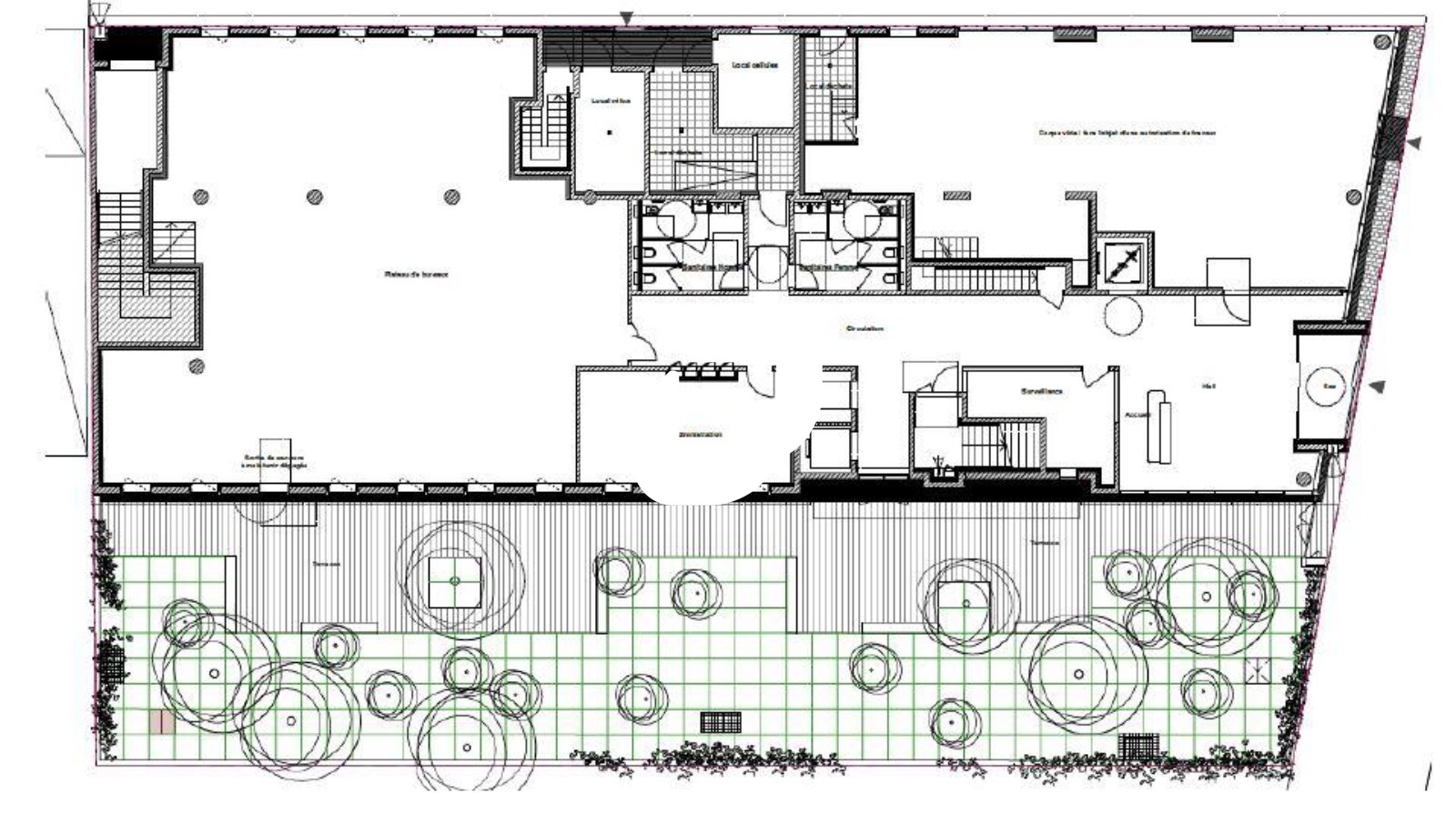
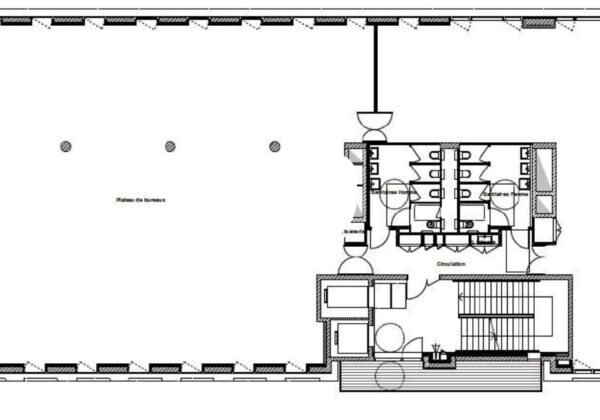
A proximité immédiate du hub de transports de St Denis Pleyel (Lignes 14,13, 15,16; 17 et RER D),Immprove vous propose à la location des surfaces de bureaux neuves de 890 m² divisibles à partir de 312 m². L'Immeuble @WORK, est labellisé BREEAM et Wiredscore , et propose une surface commerciale en pied d'immeuble de 199 m²
En savoir plus
. Immeuble neuf . Immeuble labellisé BREEAM Very Good / Wiredscore / RT2012
. Hall double hauteur
. PC Sécurité
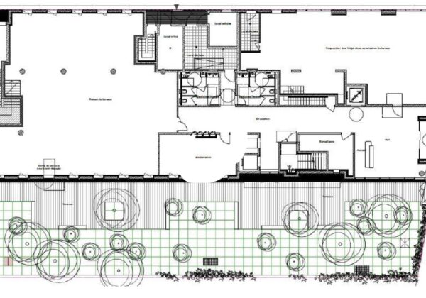
. Surface commerciale en rdc (mesures conservatoire restauration)
. Visibilité A86/A1
. Batterie double d’ascenseurs
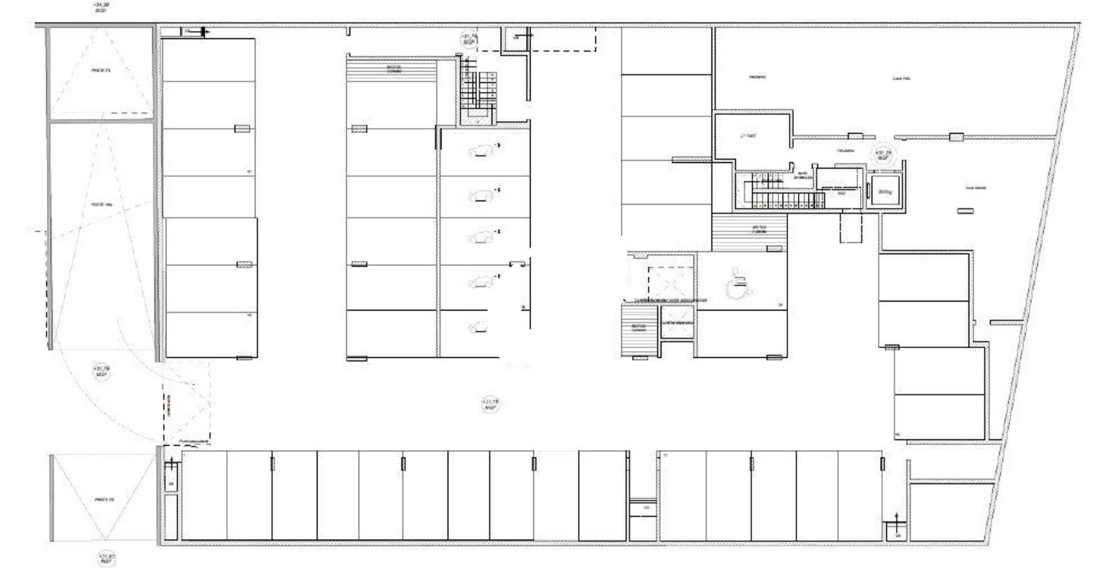
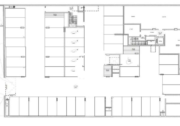
. Parkings mobilités douces
. Parkings en sous-sol : équipés de la technologie IZIX (ratio 1/150m² environ)
. Places équipées de recharges électriques
. Appli immeuble
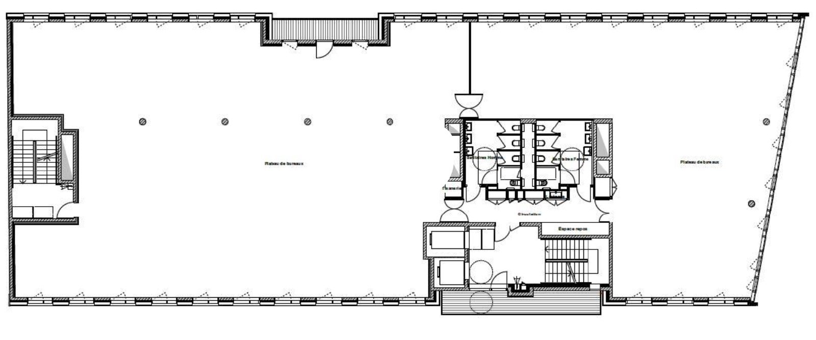
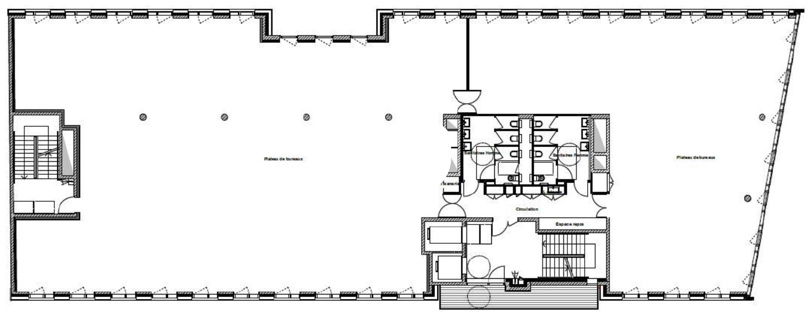
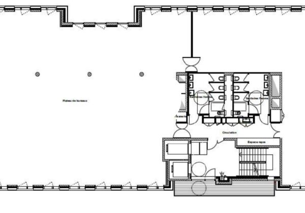
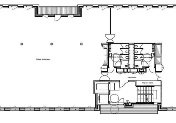
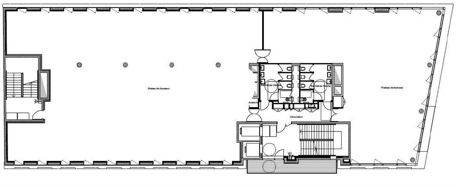
. Grand local vélo équipé d’un vestiaire avec douches . Surfaces en open spaces
. Capacitaire : 80 personnes par plateaux
. Cloisonnement possible
. Double exposition
. Eclairage Led
. Balcons et terrasses
. Faux plancher technique
. Sanitaires PMR
. Hauteur libre de 2,90m
. Climatisation
. Chauffage gaz naturel
. Vue dégagée
Consommations énergétiques


Informations non contractuelles
Locaux Commerciaux à partir de
260 € /m²/an (HT/HC)
Divisibles à partir de 312 m²
À partir de
6 760 € /mois (HT/HC)
Divisibles à partir de 312 m²
À partir de
81 120 € /an (HT/HC)
Divisibles à partir de 312 m²
Tableau des divisibilités
| Type | Étage | Surface | Loyer (€/m²/an HT HC) |
Charges (€/m²/an HT HC) |
|---|---|---|---|---|
| Parkings | 885 m² | 1 350.00 | Prix sur demande | |
| Locaux Commerciaux | Rez-de-Chaussée | 199 m² | 260.00 | 55.00 |
| Bureaux | 5ème étage | 312 m² | 260.00 | 55.00 |
| Bureaux | 5ème étage | 582 m² | 260.00 | 55.00 |
| Bureaux | 6ème étage | 313 m² | 260.00 | 55.00 |
| Bureaux | 6ème étage | 582 m² | 260.00 | 55.00 |
| Bureaux | 7ème étage | 312 m² | 260.00 | 55.00 |
| Bureaux | 7ème étage | 582 m² | 260.00 | 55.00 |
Caractéristiques
- Surface 2 882 m²
- Etat des locaux Neuf
- Nbre Parking 25
Adresses
approximatives
Adresses
précises
Nos nouveaux biens qui pourraient vous intéresser
Bureaux - 1 127m² Divisibles à partir de 251 m²
à Louer
SAINT DENIS (93210)
Voir le bien
12 760.42€/mois HT HC
Bureaux - 749m² Divisibles à partir de 326 m²
à Louer
SAINT DENIS (93210)
Voir le bien
5 976.67€/mois HT HC
Bureaux - 21 763m² Divisibles à partir de 336 m²
à Louer
SAINT DENIS (93200)
Voir le bien
6 016.67€/mois HT HC
Les entrepreneurs ayant consulté cette offre ont aussi consulté celles ci
Les services Immprove
Une gamme complète de services qui facilitent vos démarches et destinée à satisfaire vos attentes