Retour
Disponibilité Immédiate
À Louer Bureaux 281 m² 44 AVENUE RASPAIL GENTILLY (94250)
Ajouter au comparateur
Vous souhaitez faciliter votre recherche ?
Créez un compte
Présentation du bien
IMMPROVE vous propose à la location une surface en rez-de-chaussée d’environ 281 m² en plein cœur de la ville de Gentilly et proche des transports en commun. Ce local est donc idéal pour une société de formation ou une activité médicale.
Surface totale
Nature
Divisibilité
Etat des locaux
281 m²
Bureaux
Non
Bon état
Prix & Conditions
Loyer :
220 € /m²/an (HT/HC)
5 151 € /mois (HT/HC)
61 819 € /an (HT/HC)
Impôt foncier :
40.54
Taxe bureaux :
5.73
Dépôt de garantie :
3 mois de loyer HT HC
Prestations & équipements du bien
Le bâtiment
Immeuble restructuré
Parties communes de bon standing
Les espaces de travail
Fibre optique
Bon état
Accueil
Espace ouvert
Bureaux cloisonnés
Salle de réunion
Espace détente
Local technique
Cuisine
Locaux rationnels et modulables
Faux plafonds
Pré-câblage informatique et téléphonique
Prises RJ45
Sanitaires privatifs
Le confort au quotidien
Climatisation
Climatisation réversible
Jardin paysager
Cour privative
Belle hauteur sous plafond
Locaux lumineux
Cour privative
Sol PVC
Les accès
Accès véhicules légers
Accès PMR
Accès privatif sur rue
Sécurité du site
Digicode
Interphone
Accès sécurisé par badge
Accessibilité
Ascenseur PMR
Prestations spécifiques
Chauffage électrique
Autres
Possibilité de normes E.R.P.
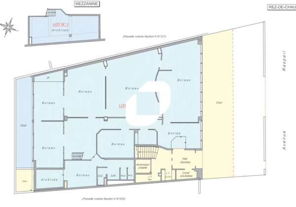
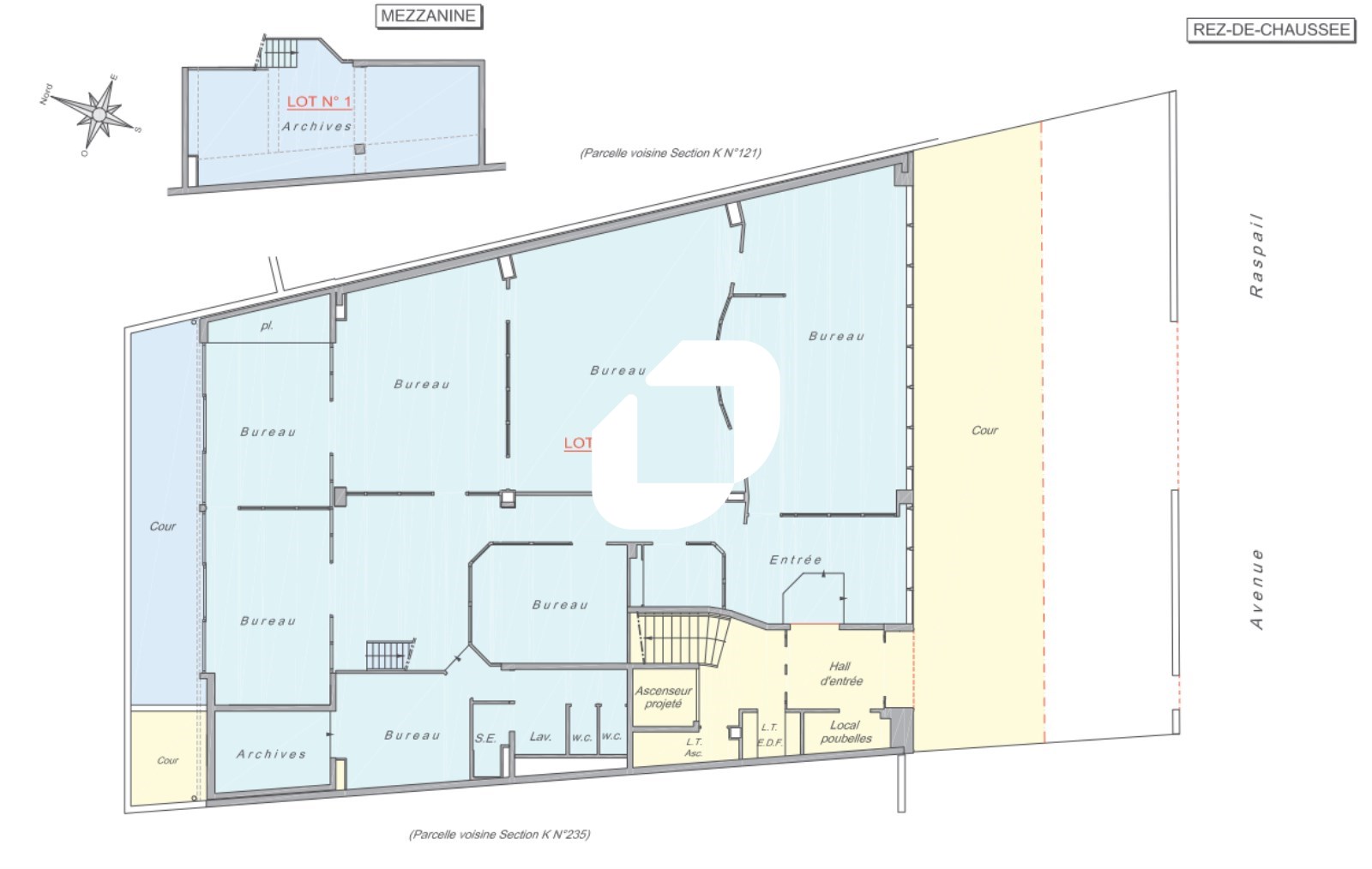
Répartition & surfaces des espaces
Tableau des divisibilités
| Type | Étage | Surface | Loyer (€/m²/an HT HC) |
Charges (€/m²/an HT HC) |
|---|---|---|---|---|
| Bureaux | Rez-de-Chaussée | 281 m² | 220.00 | 16.79 |
Performance énergétique du bien (DPE)


Informations non contractuelles
Localisation & accès
Transports en commun à proximité
SNCF gare de Gentilly (TRAIN)
TTRAMWAY
125
184
57
V5
Adresses
approximatives
Adresses
précises
Nos nouveaux biens qui pourraient vous intéresser
Bureaux - 3 290.88m² Divisibles à partir de 40.62 m²
GENTILLY (94250)
GENTILLY (94250)
4 773.33€/mois HT HC
Disponibilité : Immédiate
Surface : divisibles à partir de 40.62 m²
Bureaux - 1 161m² Divisibles à partir de 179 m²
GENTILLY (94250)
GENTILLY (94250)
5 083.33€/mois HT HC
Disponibilité : Immédiate
Surface : divisibles à partir de 179 m²
Bureaux - 19 326m² Divisibles à partir de 830 m²
GENTILLY (94250)
GENTILLY (94250)
40 837.50€/mois HT HC
Disponibilité : Immédiate
Surface : divisibles à partir de 830 m²
Les entrepreneurs ayant consulté cette offre ont aussi consulté celles ci
Bureaux - 330.50m²
PARIS (75013)
PARIS (75013)
10 642.50€/mois HT HC
Disponibilité : Immédiate
Surface : 330.50 m²