Retour
Bureaux et Locaux Commerciaux - 120m² à Louer
. Possibilité d'apposer une enseigne à l'entrée des locaux
. Locaux bénéficiant d'un accès indépendant sur rue permettant les livraisons
. Accès sécurisé par un rideau de fer
. Locaux bénéficiant de 2 entrées ce qui permet d'envisager des activités amenées à recevoir du public
. Immeuble mixte
. Surface cloisonnée
. Chauffage par convecteurs électriques
Bureaux et Locaux Commerciaux - 120m² à Louer
ISSY LES MOULINEAUX (92130)
DESCRIPTION
Accès indépendant ! Immprove vous propose des locaux en RDC parfaitement agencés pour de l'activité légère, un petit commerce ou encore des bureaux. Le bien, proche des transports et des commerces, se situe dans un quartier dynamique. A visiter dès que possible !
En savoir plus
. Immeuble idéalement situé, proche des transports et des commerces. Possibilité d'apposer une enseigne à l'entrée des locaux
. Locaux bénéficiant d'un accès indépendant sur rue permettant les livraisons
. Accès sécurisé par un rideau de fer
. Locaux bénéficiant de 2 entrées ce qui permet d'envisager des activités amenées à recevoir du public
. Immeuble mixte
. Surface cloisonnée
. Chauffage par convecteurs électriques
Consommations énergétiques


Informations non contractuelles
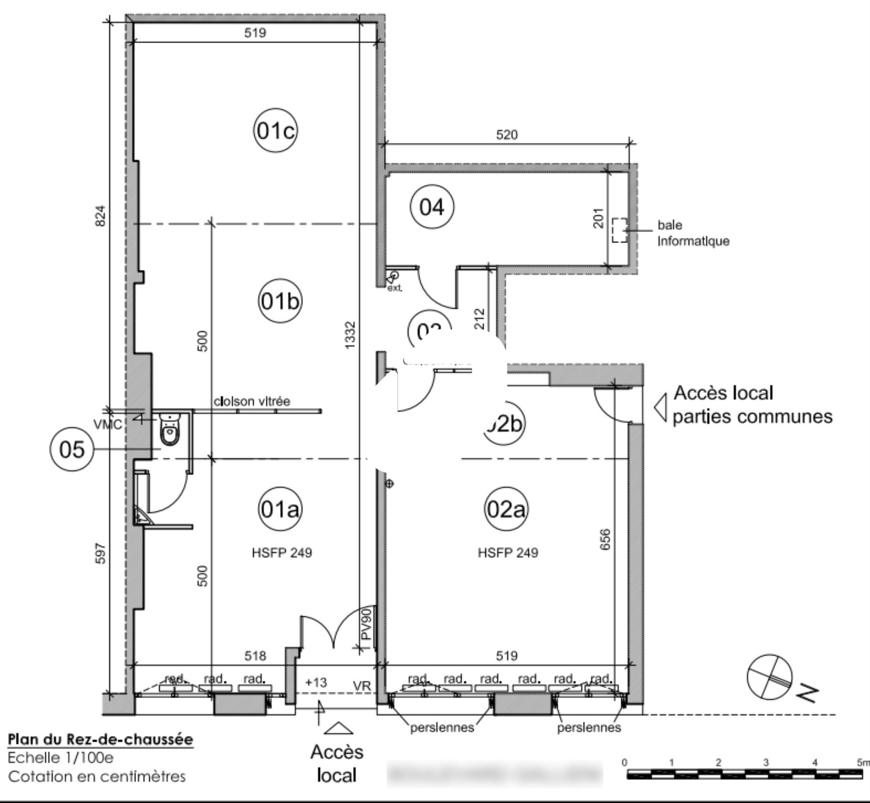
Tableau des divisibilités
| Type | Étage | Surface | Loyer (€/m²/an HT HC) |
Charges (€/m²/an HT HC) |
|---|---|---|---|---|
| Locaux Commerciaux | Rez-de-Chaussée | 120 m² | 230.00 | Prix sur demande |
Caractéristiques
- Surface 120 m²
- Etat des locaux Bon état
Adresses
approximatives
Adresses
précises
Les entrepreneurs ayant consulté cette offre ont aussi consulté celles ci
Les services Immprove
Une gamme complète de services qui facilitent vos démarches et destinée à satisfaire vos attentes