Retour
Disponibilité Immédiate
À Louer Locaux Commerciaux 320 m² PARIS (75011)
Ajouter au comparateur
Vous souhaitez faciliter votre recherche ?
Créez un compte
Présentation du bien
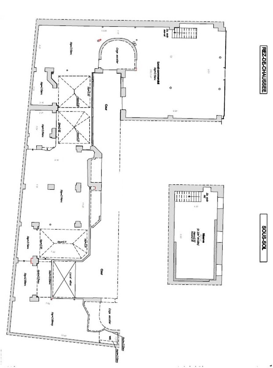
Immprove vous propose à la location un beau local commercial livré brut d'une surface de 320 m², avec 280 m² en rdc et 40 m² en sous-sol accessible par 1 escalier intérieur. Excellent emplacement sur axe passant au cœur du 11ème arrondissement.
Façade de 9,5 ml - Belle hauteur sous plafond - Présence de verrières. Idéal pour enseigne spécialisée dans l’équipement de la maison ou de la personne pharmacie, concept indoor. Loyer mensuel: 15.000€ HC HT.
Egalement disponible à la vente.
Surface totale
Nature
Divisibilité
Etat des locaux
320 m²
Locaux Commerciaux
Non
Brut de béton
Prix & Conditions
Loyer :
Prix sur demande
Prix sur demande
Prix sur demande
Impôt foncier :
12.35
Dépôt de garantie :
3 mois de loyer HT HC
Conditions location :
. GAPD de 6 mois de loyer TTC
Prestations & équipements du bien
Le bâtiment
Immeuble ancien . Brut de béton
Les espaces de travail
Accueil
Espace ouvert
Local technique
Sanitaires privatifs
Le confort au quotidien
Belle hauteur sous plafond
Autres
Façade 9.5 ml
Verrières
. GAPD de 6 mois de loyer TTC
Répartition & surfaces des espaces
Tableau des divisibilités
| Type | Étage | Surface | Loyer (€/m²/an HT HC) |
Charges (€/m²/an HT HC) |
|---|---|---|---|---|
| Locaux Commerciaux | Sous-Sol | 40 m² | Prix sur demande | 8 000.00 |
| Locaux Commerciaux | Rez-de-Chaussée | 280 m² | Prix sur demande | 8 000.00 |
Performance énergétique du bien (DPE)


Informations non contractuelles
Localisation & accès
Transports en commun à proximité
Gare de l'Est (TER)
56
91
96
Adresses
approximatives
Adresses
précises
Nos nouveaux biens qui pourraient vous intéresser
Locaux Commerciaux - 314.40m²
PARIS (75010)
PARIS (75010)
10 466.67€/mois HT HC
Disponibilité : Après accord
Surface : 314.40 m²
Locaux Commerciaux - 289m²
PARIS (75010)
PARIS (75010)
0.00€/mois HT HC
Disponibilité : Immédiate
Surface : 289 m²
Locaux Commerciaux - 400m²
PARIS (75009)
PARIS (75009)
0.00€/mois HT HC
Disponibilité : Immédiate
Surface : 400 m²
Locaux Commerciaux - 311m²
PARIS (75012)
PARIS (75012)
0.00€/mois HT HC
Disponibilité : Après accord
Surface : 311 m²
Les entrepreneurs ayant consulté cette offre ont aussi consulté celles ci
Locaux Commerciaux - 100m²
BISCHHEIM (67800)
BISCHHEIM (67800)
1 100.00€/mois HT HC
Disponibilité : Immédiate
Surface : 100 m²
Locaux Commerciaux - 300m²
SAINT HERBLAIN (44800)
SAINT HERBLAIN (44800)
6 000.00€/mois HT HC
Disponibilité : Immédiate
Surface : 300 m²