Retour
Locaux Commerciaux - 162m² à Louer
. À terme, 12 000 habitants (à compter de 2030).
. À proximité de crèches, pharmacies, supermarchés, etc.
Locaux Commerciaux - 162m² à Louer
NEUILLY SUR MARNE (93330)
DESCRIPTION
IMMPROVE vous propose dans un tout nouveau quartier de Neuilly-sur-Marne, plusieurs cellules commerciales livrées brut de béton, fluides en attente, vitrines posées. Idéal commerce de proximité : cordonnerie, laverie, salon de coiffure etc. Possibilité de diviser plusieurs cellules. Extraction présente sur certaines cellules. Compteur EDF tarif bleu. Loyer de 336€ht/hc/m²/an, DG de 3 mois, GAPD de 3 mois suivant dossier de candidature. Honoraires agence de 30% HT du loyer annuel.
En savoir plus
. Nombreux quartiers.. À terme, 12 000 habitants (à compter de 2030).
. À proximité de crèches, pharmacies, supermarchés, etc.
Consommations énergétiques


Informations non contractuelles
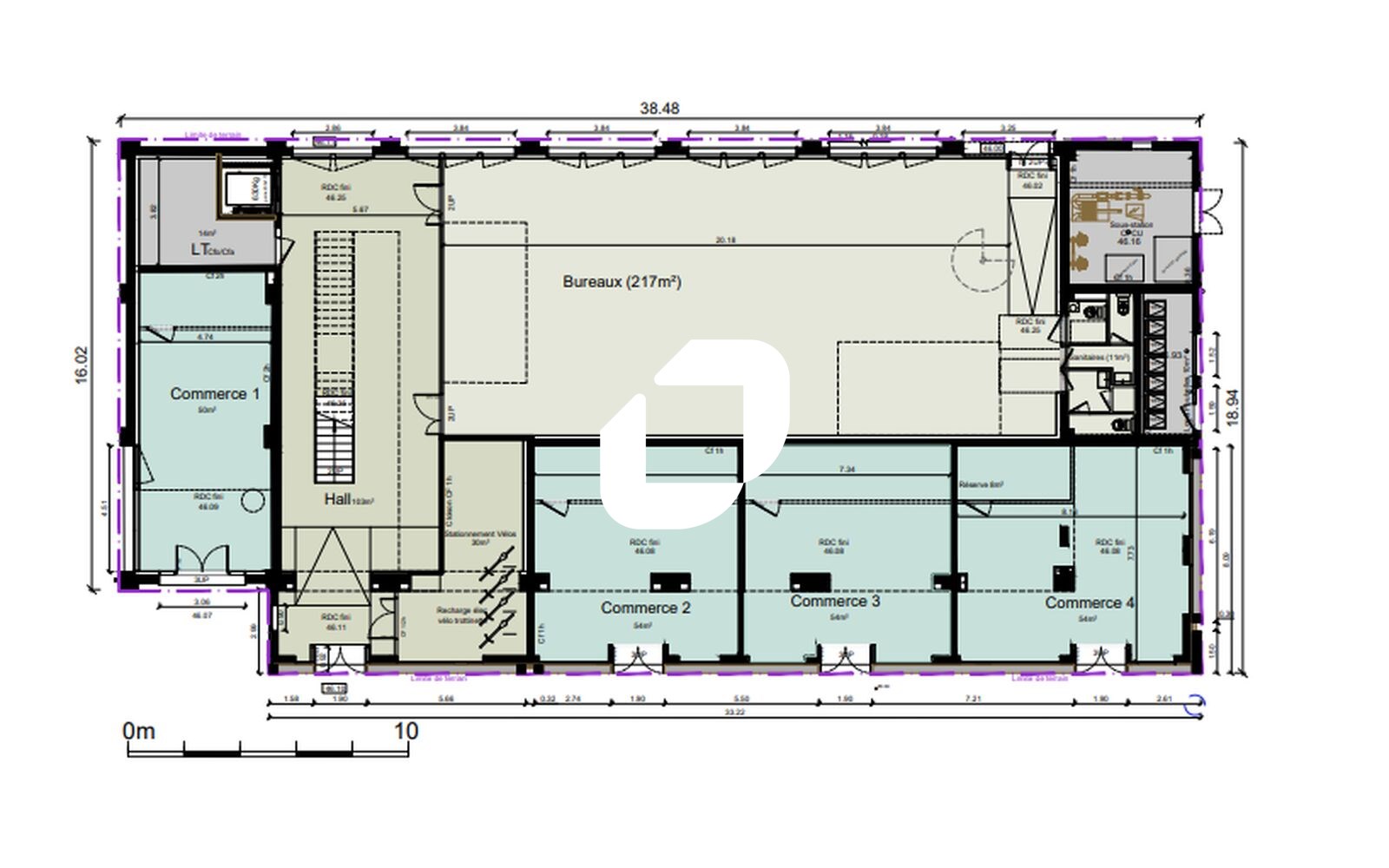
Tableau des divisibilités
| Type | Étage | Surface | Loyer (€/m²/an HT HC) |
Charges (€/m²/an HT HC) |
|---|---|---|---|---|
| Locaux Commerciaux | Rez-de-Chaussée | 162 m² | 336.00 | Prix sur demande |
Caractéristiques
- Surface 162 m²
- Etat des locaux Bon état
Adresses
approximatives
Adresses
précises
Les entrepreneurs ayant consulté cette offre ont aussi consulté celles ci
Les services Immprove
Une gamme complète de services qui facilitent vos démarches et destinée à satisfaire vos attentes