Retour
Disponibilité Immédiate
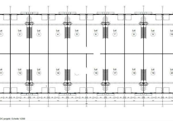
À Louer Locaux d'Activités 7 560 m² divisibles à partir de 378 m² 20 RUE GUSTAVE EIFFEL BONDOUFLE (91070)
Ajouter au comparateur
Vous souhaitez faciliter votre recherche ?
Créez un compte
Présentation du bien
Situé à Bondoufle dans la zone de la marinière, Immprove vous propose un programme neuf de locaux d’activités à louer, issue de la démolition/reconstruction d’un ancien site tertiaire. Idéalement placé le long de N104 et de l’A6, le parc offre 20 cellules de 378 m² chacune. Accès camion de plain-pied, bureaux au 1er étage, hall d’accueil indépendant. Plusieurs cellules peuvent être réunies.
Surface totale
Nature
Divisibilité
Etat des locaux
7 560 m²
Locaux d'Activités
Oui à partir de 378 m²
Neuf
Prix & Conditions
Loyer :
128 € /m²/an (HT/HC)
4 032 € /mois (HT/HC)
48 384 € /an (HT/HC)
Divisibles à partir de 378 m²
Impôt foncier :
11.00
Dépôt de garantie :
3 mois de loyer HT HC
Prestations & équipements du bien
Les espaces de travail
Immeuble neuf de 2023/2024
Fibre optique . Sanitaires PMR en RDC
Plinthes périphériques avec courant fort
Le confort au quotidien
Balcon privatif
Climatisation réversible
Les accès
Site clos par 2 portails
Autres
Bureaux en mezzanine
Répartition & surfaces des espaces
Tableau des divisibilités
| Type | Étage | Surface | Loyer (€/m²/an HT HC) |
Charges (€/m²/an HT HC) |
|---|---|---|---|---|
| Activités | 378 m² | 128.00 | 10.00 | |
| Activités | 378 m² | 128.00 | 10.00 | |
| Activités | 378 m² | 128.00 | 10.00 | |
| Activités | 378 m² | 128.00 | 10.00 | |
| Activités | 378 m² | 128.00 | 10.00 | |
| Activités | 378 m² | 128.00 | 10.00 | |
| Activités | 378 m² | 128.00 | 10.00 | |
| Activités | 378 m² | 128.00 | 10.00 | |
| Activités | 378 m² | 128.00 | 10.00 | |
| Activités | 378 m² | 128.00 | 10.00 | |
| Activités | 378 m² | 124.00 | 10.00 | |
| Activités | 378 m² | 124.00 | 10.00 | |
| Activités | 378 m² | 124.00 | 10.00 | |
| Activités | 378 m² | 124.00 | 10.00 | |
| Activités | 378 m² | 124.00 | 10.00 | |
| Activités | 378 m² | 124.00 | 10.00 | |
| Activités | 378 m² | 124.00 | 10.00 | |
| Activités | 378 m² | 124.00 | 10.00 | |
| Activités | 378 m² | 124.00 | 10.00 | |
| Activités | 378 m² | 124.00 | 10.00 |
Performance énergétique du bien (DPE)


Informations non contractuelles
Localisation & accès
Transports en commun à proximité
Réseau TICE n°401, 409, 413 : Arrêt Les Closeaux St Spire
Accès routier
N104
A6
Adresses
approximatives
Adresses
précises
Nos nouveaux biens qui pourraient vous intéresser
Locaux d'Activités - 815m² Divisibles à partir de 380 m²
BONDOUFLE (91070)
BONDOUFLE (91070)
3 325.00€/mois HT HC
Disponibilité : Immédiate
Surface : divisibles à partir de 380 m²
Locaux d'Activités - 818m² Divisibles à partir de 368 m²
BONDOUFLE (91070)
BONDOUFLE (91070)
3 750.00€/mois HT HC
Disponibilité : Immédiate
Surface : divisibles à partir de 368 m²
Les entrepreneurs ayant consulté cette offre ont aussi consulté celles ci
Locaux d'Activités - 220m²
TREILLIERES (44119)
TREILLIERES (44119)
1 558.33€/mois HT HC
Disponibilité : 1er janvier 2027
Surface : 220 m²
Locaux d'Activités - 200m²
ROUBAIX (59100)
ROUBAIX (59100)
900.00€/mois HT HC
Disponibilité : Immédiate
Surface : 200 m²
Locaux d'Activités - 288m²
SAINT JEAN DE VEDAS (34430)
SAINT JEAN DE VEDAS (34430)
2 448.00€/mois HT HC
Disponibilité : Immédiate
Surface : 288 m²
Locaux d'Activités - 110.82m²
SAINT GEORGES D'ORQUES (34680)
SAINT GEORGES D'ORQUES (34680)
1 017.50€/mois HT HC
Disponibilité : 8 mai 2026
Surface : 110.82 m²