Retour
Disponibilité Immédiate
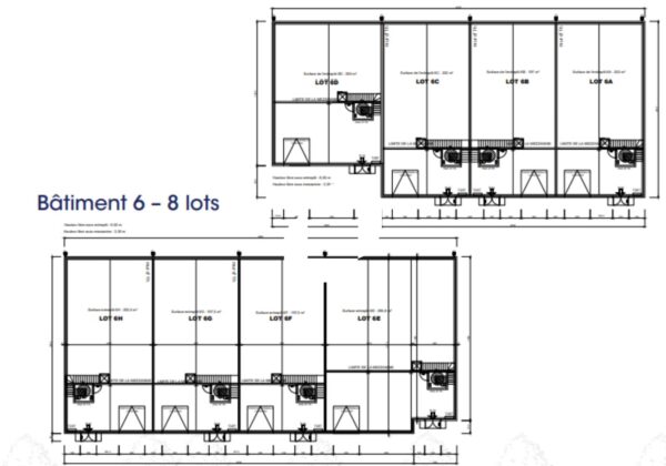
À Louer Locaux d'Activités 840.50 m² divisibles à partir de 254.90 m² RUE SEBASTIENNE GUYOT MARCOUSSIS (91460)
Ajouter au comparateur
Vous souhaitez faciliter votre recherche ?
Créez un compte
Présentation du bien
Situées à Marcoussis dans le Parc d’activité de la Fontaine de Jouvence II, Immprove vous propose des surfaces d’activités neuves à louer à partir de 254 m² divisibles. Ces bâtiments à la pointe de la technologie et respectueux de l’environnement proposent des surfaces rares sur le secteur.
Surface totale
Nature
Divisibilité
Etat des locaux
840.50 m²
Locaux d'Activités
Oui à partir de 254.90 m²
Neuf
Prix & Conditions
Loyer :
130 € /m²/an (HT/HC)
2 761 € /mois (HT/HC)
33 137 € /an (HT/HC)
Divisibles à partir de 254.90 m²
Impôt foncier :
8.50
Frais de gestion :
3% du loyer annuel HC HT
Dépôt de garantie :
3 mois de loyer HT HC
Conditions location :
. Parking inclus dans le loyer
Prestations & équipements du bien
Les espaces de travail
Faux plafonds
Eclairage LED
Plinthes périphériques
Câblage informatique et téléphonique
Prises RJ45
Le confort au quotidien
Climatisation réversible et individuelle
Prestations spécifiques
Chauffage et rafraichissement
Autres
Gestion à distance du bâtiment :
Eclairage intérieur
Contrôle d’accès et téléphonie
Caméra intérieure et visualisation à distance
Sol en Vinyle
Bureaux aménagés
Sanitaires PMR
Trappes de désenfumage
. Parking inclus dans le loyer
Répartition & surfaces des espaces
Tableau des divisibilités
| Type | Étage | Surface | Loyer (€/m²/an HT HC) |
Charges (€/m²/an HT HC) |
|---|---|---|---|---|
| Activités | 255 m² | 130.00 | 4.00 | |
| Activités | 299 m² | 130.00 | 4.00 | |
| Activités | 287 m² | 130.00 | 4.00 |
Performance énergétique du bien (DPE)


Informations non contractuelles
Localisation & accès
Adresses
approximatives
Adresses
précises
Nos nouveaux biens qui pourraient vous intéresser
Locaux d'Activités - 176.20m²
MARCOUSSIS (91460)
MARCOUSSIS (91460)
1 833.33€/mois HT HC
Disponibilité : Immédiate
Surface : 176.20 m²
Les entrepreneurs ayant consulté cette offre ont aussi consulté celles ci
Locaux d'Activités - 220m²
TREILLIERES (44119)
TREILLIERES (44119)
1 558.33€/mois HT HC
Disponibilité : 1er janvier 2027
Surface : 220 m²
Locaux d'Activités - 200m²
ROUBAIX (59100)
ROUBAIX (59100)
900.00€/mois HT HC
Disponibilité : Immédiate
Surface : 200 m²
Locaux d'Activités - 288m²
SAINT JEAN DE VEDAS (34430)
SAINT JEAN DE VEDAS (34430)
2 448.00€/mois HT HC
Disponibilité : Immédiate
Surface : 288 m²
Locaux d'Activités - 110.82m²
SAINT GEORGES D'ORQUES (34680)
SAINT GEORGES D'ORQUES (34680)
1 017.50€/mois HT HC
Disponibilité : 8 mai 2026
Surface : 110.82 m²