Retour
Disponibilité Immédiate
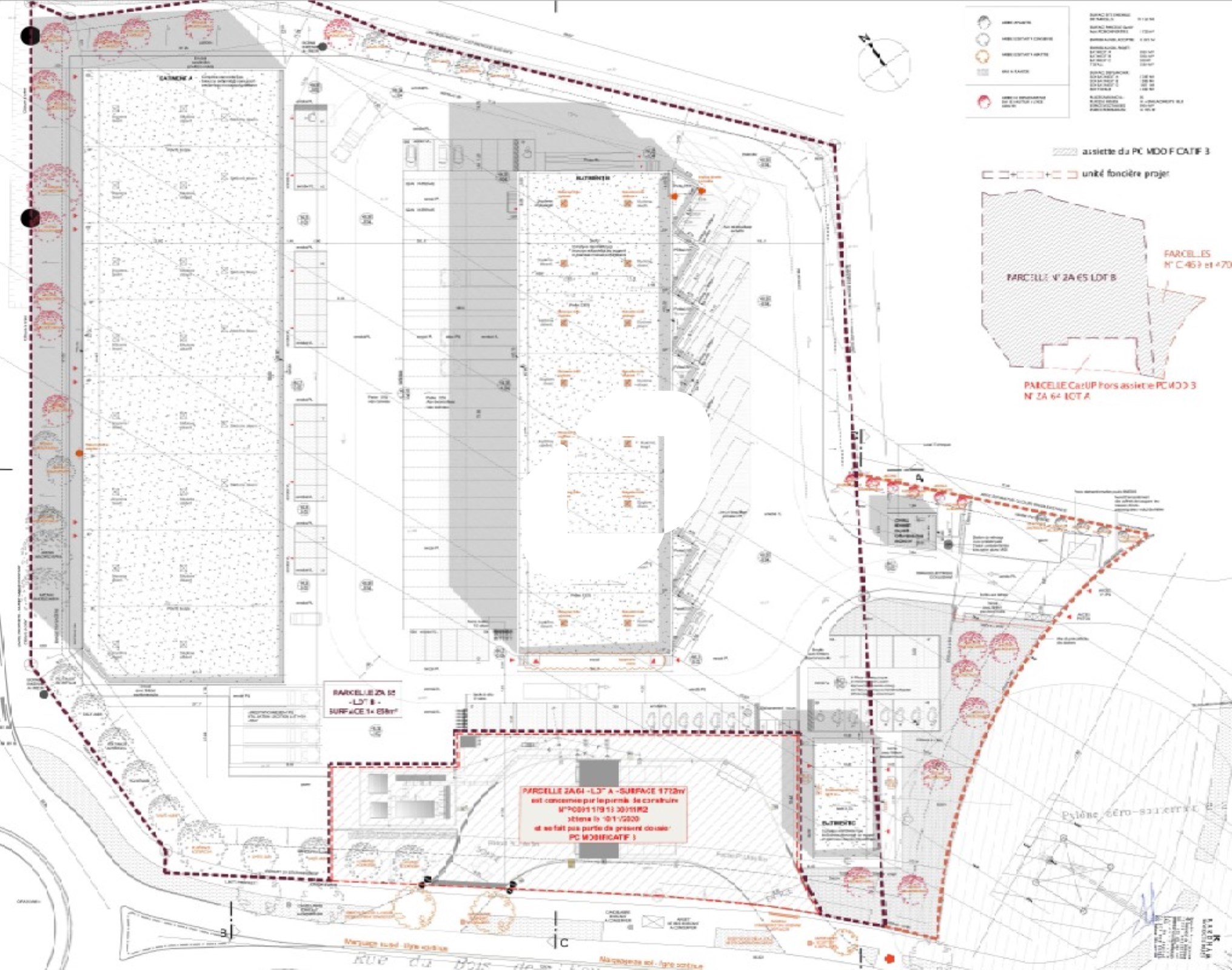
À Louer Locaux d'Activités 3 452 m² divisibles à partir de 180 m² 2 RUE DES VERTS BUISSONS LE COUDRAY MONTCEAUX (91830)
Ajouter au comparateur
Vous souhaitez faciliter votre recherche ?
Créez un compte
Présentation du bien
Au cœur d'une zone logistique le long de l'autoroute A6, Immprove vous propose des cellules d'activités à louer d'environ 430 m² dans un parc dédié aux transports et à la logistique du dernier km.
Surface totale
Nature
Divisibilité
Etat des locaux
3 452 m²
Locaux d'Activités
Oui à partir de 180 m²
Neuf
Prix & Conditions
Loyer :
100 € /m²/an (HT/HC)
1 500 € /mois (HT/HC)
18 000 € /an (HT/HC)
Divisibles à partir de 180 m²
Impôt foncier :
20.00
Dépôt de garantie :
3 mois de loyer HT HC
Prestations & équipements du bien
Les espaces de travail
Faux plafonds
Le confort au quotidien
Revêtement de sol moquette
Autres
Parc mixte composé d'un bâtiment d’activités, d'un bâtiment de Cross-Docking, d’un pôle de restauration / snacking ainsi qu’une station-service à gaz naturel comprimé
Architecture moderne et soignée Bureaux :
Hauteur 2.7m
Peinture sur cloisons
Double sanitaires PMR au RDC
Répartition & surfaces des espaces
Tableau des divisibilités
| Type | Étage | Surface | Loyer (€/m²/an HT HC) |
Charges (€/m²/an HT HC) |
|---|---|---|---|---|
| Activités | Rez-de-Chaussée | 436 m² | 100.00 | 12.34 |
| Activités | Rez-de-Chaussée | 876 m² | 100.00 | 12.34 |
| Activités | Rez-de-Chaussée | 1 960 m² | 105.00 | 12.34 |
| Locaux Commerciaux | Rez-de-Chaussée | 180 m² | 130.00 | 17.26 |
Performance énergétique du bien (DPE)


Informations non contractuelles
Localisation & accès
Transports en commun à proximité
301
Accès routier
A6
Adresses
approximatives
Adresses
précises
Nos nouveaux biens qui pourraient vous intéresser
Locaux d'Activités - 220m²
TREILLIERES (44119)
TREILLIERES (44119)
1 558.33€/mois HT HC
Disponibilité : 1er janvier 2027
Surface : 220 m²
Locaux d'Activités - 200m²
ROUBAIX (59100)
ROUBAIX (59100)
900.00€/mois HT HC
Disponibilité : Immédiate
Surface : 200 m²
Locaux d'Activités - 288m²
SAINT JEAN DE VEDAS (34430)
SAINT JEAN DE VEDAS (34430)
2 448.00€/mois HT HC
Disponibilité : Immédiate
Surface : 288 m²
Locaux d'Activités - 110.82m²
SAINT GEORGES D'ORQUES (34680)
SAINT GEORGES D'ORQUES (34680)
1 017.50€/mois HT HC
Disponibilité : 8 mai 2026
Surface : 110.82 m²
Les entrepreneurs ayant consulté cette offre ont aussi consulté celles ci
Locaux d'Activités - 220m²
TREILLIERES (44119)
TREILLIERES (44119)
1 558.33€/mois HT HC
Disponibilité : 1er janvier 2027
Surface : 220 m²
Locaux d'Activités - 200m²
ROUBAIX (59100)
ROUBAIX (59100)
900.00€/mois HT HC
Disponibilité : Immédiate
Surface : 200 m²
Locaux d'Activités - 288m²
SAINT JEAN DE VEDAS (34430)
SAINT JEAN DE VEDAS (34430)
2 448.00€/mois HT HC
Disponibilité : Immédiate
Surface : 288 m²
Locaux d'Activités - 110.82m²
SAINT GEORGES D'ORQUES (34680)
SAINT GEORGES D'ORQUES (34680)
1 017.50€/mois HT HC
Disponibilité : 8 mai 2026
Surface : 110.82 m²