Retour
Disponibilité Avril 2026
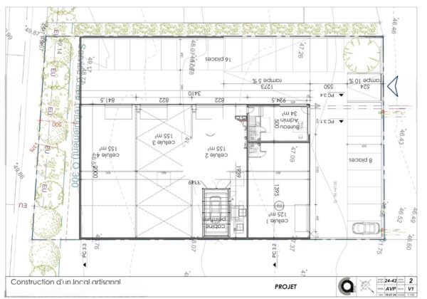
À Acheter ou à Louer Locaux d'Activités 280 m² divisibles à partir de 125 m² CASSON (44390)
Ajouter au comparateur
Vous souhaitez faciliter votre recherche ?
Créez un compte
Présentation du bien
IMMPROVE vous propose à Casson (44390), 2 cellules d’activités neuves à vendre, disponibles avril 2026.
Cellule 1 de 125m² avec 5 places de parking et cellule 2 de 155m² avec 3 places de parking.
Locaux parfaitement adaptés pour les artisans, jeunes entreprises, activités de services et stockage.
Activités automobiles non autorisées. Zone Ue. ATTENTION reliquat de TVA.
Surface totale
Nature
Divisibilité
Etat des locaux
280 m²
Locaux d'Activités
Oui à partir de 125 m²
Neuf
Prix & Conditions
Loyer :
72 € /m²/an (HT/HC)
750 € /mois (HT/HC)
9 000 € /an (HT/HC)
Divisibles à partir de 125 m²
Vente :
156 250 € (HD)
558.04 € /m² (HD)
Divisibles à partir de 125 m²
Dépôt de garantie :
3 mois de loyer HT HC
Conditions vente :
RELIQUAT DE TVA
Prestations & équipements du bien
Le bâtiment
Façade en bardage
Façade en bardage
Les accès
Porte sectionnelle de plain-pied :
Dimensions porte : 3,50 (H) x 4 (L) m
Sécurité du site
Site clos . Hauteur libre : 6,10 m
Site clos et sécurisé
Autres
Menuiserie Alu
Menuiserie Alu
Sanitaires
Menuiseries alu double vitrage
RELIQUAT DE TVA
Répartition & surfaces des espaces
Tableau des divisibilités
| Type | Étage | Surface | Loyer (€/m²/an HT HC) |
Charges (€/m²/an HT HC) |
Prix achat (€/m² HT HC) |
Charges (achat) (€/m² HT HC) |
|---|---|---|---|---|---|---|
| Activités | Rez-de-Chaussée | 125 m² | 72.00 | Prix sur demande | 1 250.00 | Prix sur demande |
| Activités | Rez-de-Chaussée | 155 m² | 65.81 | Prix sur demande | 1 250.00 | Prix sur demande |
Performance énergétique du bien (DPE)


Informations non contractuelles
Localisation & accès
Transports en commun à proximité
SNCF gare de A 30 minutes
347
Accès routier
D37 Sucé sur Erdre/Nort sur Erdre
12 minutes N137 - Zone de l’Erette 44810 Héric
Adresses
approximatives
Adresses
précises
Nos nouveaux biens qui pourraient vous intéresser
Locaux d'Activités - 507.70m²
SCHWEIGHOUSE SUR MODER (67590)
SCHWEIGHOUSE SUR MODER (67590)
Prix sur demande
Disponibilité : Immédiate
Surface : 507.70 m²
Locaux d'Activités - 253.85m²
SCHWEIGHOUSE SUR MODER (67590)
SCHWEIGHOUSE SUR MODER (67590)
Prix sur demande
Disponibilité : Immédiate
Surface : 253.85 m²
Locaux d'Activités - 1 650m²
PONT A MARCQ (59710)
PONT A MARCQ (59710)
Prix sur demande
Disponibilité : Immédiate
Surface : 1 650 m²
Locaux d'Activités - 644.61m²
JOUY EN JOSAS (78350)
JOUY EN JOSAS (78350)
Prix sur demande
Disponibilité : Immédiate
Surface : 644.61 m²
Les entrepreneurs ayant consulté cette offre ont aussi consulté celles ci
Locaux d'Activités - 507.70m²
SCHWEIGHOUSE SUR MODER (67590)
SCHWEIGHOUSE SUR MODER (67590)
Prix sur demande
Disponibilité : Immédiate
Surface : 507.70 m²
Locaux d'Activités - 253.85m²
SCHWEIGHOUSE SUR MODER (67590)
SCHWEIGHOUSE SUR MODER (67590)
Prix sur demande
Disponibilité : Immédiate
Surface : 253.85 m²
Locaux d'Activités - 1 650m²
PONT A MARCQ (59710)
PONT A MARCQ (59710)
Prix sur demande
Disponibilité : Immédiate
Surface : 1 650 m²
Locaux d'Activités - 644.61m²
JOUY EN JOSAS (78350)
JOUY EN JOSAS (78350)
Prix sur demande
Disponibilité : Immédiate
Surface : 644.61 m²